Version: 8.22.4Navigation überspringen
10 €
Immowelt logo

Laden zur Miete
10 Euro pro Quadratmeter

Gewerbefläche in der Invalidenstraße verfügbar!

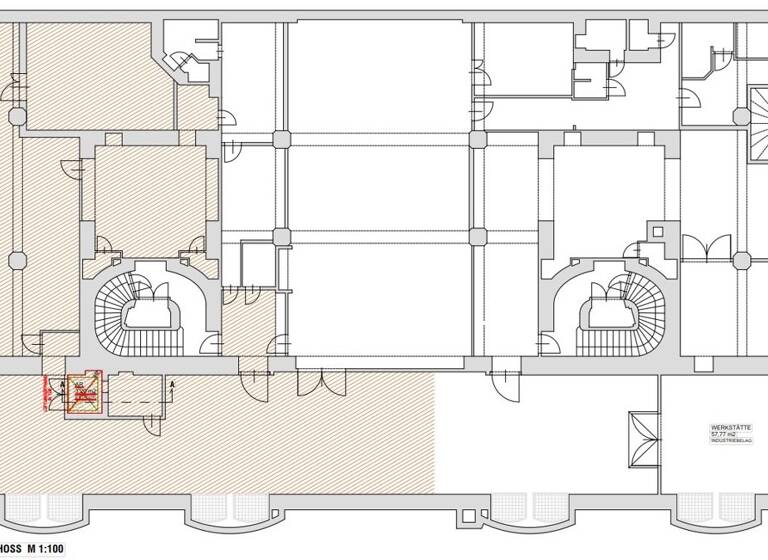
Zur Vermietung gelangt eine großzügige Untergeschoßfläche mit ca. 396?m² Nutzfläche, die durch ihre attraktive Raumhöhe von bis zu 3,60?m ein vielseitiges Nutzungspotenzial bietet. Ein Antritt über das Erdgeschoß ist möglich. Die Fläche befindet sich in einem gepflegten Gebäude in urbaner Lage und eignet sich hervorragend für Lager- oder Archivzwecke, Produktion im Kleingewerbe, Ateliers, Showroom-Konzepte oder kreative Arbeitsräume.

Der gut geschnittene Grundriss erlaubt eine flexible Raumaufteilung - ob in offene Arbeitsbereiche, abgetrennte Funktionsräume oder als großzügige Lagerfläche. Dank der hohen Decken wirkt das Untergeschoß hell und luftig, wodurch auch arbeitsintensive oder publikumsbezogene Nutzungen denkbar sind (z.?B. Studios, Werkstätten, Fitnesskonzepte oder Ausstellungsräume).

Ein getrennter Zugang sowie die ebenerdige Anlieferungsmöglichkeit sorgen für hohe Funktionalität und eine unkomplizierte Erschließung. Je nach Objektgegebenheiten besteht außerdem die Möglichkeit zur technischen Aufrüstung (z.?B. Strom, Belüftung, Heizung) in Absprache mit dem Eigentümer.

Grundrisse

Grundrisse
1 / 2

Realisiere Dein Projekt

Bausubstanz und Energie

Der Anbieter hat keine Informationen zu Energieverbrauch oder Zustand der Immobilie bereit gestellt.
Immowelt logo

Mietkosten

Gesamtmiete
5.556,88 €
Nettokaltmiete
10 €/m²
3.888,10 €
Betriebskosten
742,63 €
Provision für Mieter
3 Bruttomonatsmieten zzgl. 20% USt.
Kaution
4 BMM
Weitere Preisinformationen
Nettokaltmiete: 3.888,10 EUR

Lage

address-icon
Wien (1030)
Der Anbieter hat die genaue Adresse nicht freigegeben
Die Geschäftsfläche befindet sich in ausgezeichneter innerstädtischer Lage im 3. Wiener Gemeindebezirk, in der Invalidenstraße - einer ruhigen und dennoch hervorragend angebundenen Adresse. Besonders hervorzuheben ist die Nähe zu Wien Mitte, einem der wichtigsten Verkehrs- und Geschäftsstandorte Wiens, der in wenigen Minuten erreichbar ist. Wien Mitte - The Mall, Wiens größtes innerstädtisches Einkaufszentrum, bietet eine Vielzahl an Shops, Restaurants, Cafés und Dienstleistungsbetrieben, sowie den direkten Anschluss an die U-Bahn-Linien U3 und U4, zahlreiche S-Bahn-Verbindungen (darunter die CAT - City Airport Train) sowie diverse Straßenbahn- und Buslinien.

Weitere Informationen

Sonstiges Hinweis gemäß Energieausweisvorlagegesetz: Ein Energieausweis wurde vom Eigentümer bzw. Verkäufer, nach unserer Aufklärung über die ab 1.12.2012 geltende generelle Vorlagepflicht, sowie Aufforderung zu seiner Erstellung noch nicht vorgelegt. Daher gilt zumindest eine dem Alter und der Art des Gebäudes entsprechende Gesamtenergieeffizienz als vereinbart. Wir übernehmen keinerlei Gewähr oder Haftung für die tatsächliche Energieeffizienz der angebotenen Immobilie.

Wir weisen darauf hin, dass zwischen dem Vermittler und dem Auftraggeber ein wirtschaftliches Naheverhältnis besteht. Der Vermittler ist als Doppelmakler tätig. Stichworte Nutzfläche: 388,81 m², Bundesland: Wien

Weitere Services

Lust auf eine Besichtigung?
Eine Frage zur Immobilie?
Nachricht hinzufügen
Mit der Nutzung der oben angegebenen Telefonnummer oder durch Klicken auf „Kontaktieren“ akzeptierst Du die Allgemeinen Nutzungsbedingungen, denen Du jederzeit widersprechen kannst. Weitere Informationen zum Datenschutz

Über den Anbieter

Prinz-Eugen-Strasse 8-10, 1040 WIEN
partner badge
Partnerschaft
Frau Franziska Patay, MScDein Kontakt
Online-ID: 2k3ag5w
Referenznummer: R2501235
EHL Gewerbeimmobilien GmbH
Nachricht hinzufügen
Mit der Nutzung der oben angegebenen Telefonnummer oder durch Klicken auf „Kontaktieren“ akzeptierst Du die Allgemeinen Nutzungsbedingungen, denen Du jederzeit widersprechen kannst. Weitere Informationen zum Datenschutz
Wie zufrieden bist du mit dieser Seite (nicht mit der Immobilie selbst)?