

Kraft Immobilien
Herrn Korbinian Kraft
085 ···
Nr. anzeigenPreise & Kosten
Kaution
3.150 €
Warum sehe ich diese Anzeige? – Du siehst diese Anzeige basierend auf Ihrer Navigation auf unserer Website und den Suchkriterien, die du verwendet hast.
Lage
Die Wohnung befindet sich in einem modernen Neubau, im beliebten Passauer Stadtteil Hacklberg. Die Lage zeichnet sich durch eine ruhige Wohnatmosphäre im Grünen aus, kombiniert mit der Nähe zur Altstadt von Passau, die nur wenige Minuten mit dem Auto oder dem Fahrrad entfernt liegt. Einkaufsmöglichkeiten für den täglichen...
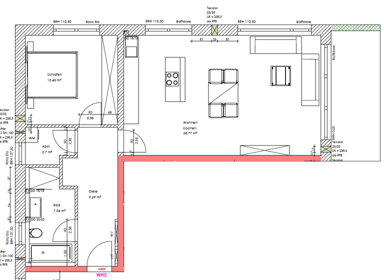
Die Wohnung
Wohnungslage
1. Geschoss
Bezug
01.02.2026
Wohnanlage
Energie & Heizung
Warum sehe ich diese Anzeige? – Du siehst diese Anzeige basierend auf Ihrer Navigation auf unserer Website und den Suchkriterien, die du verwendet hast.
Energieausweistyp
Bedarfsausweis
Gebäudetyp
Wohngebäude
Wesentliche Energieträger
Luftwärmepumpe
Gültigkeit
26.11.2024 bis 25.11.2034
Endenergiebedarf
6,60 kWh/(m²·a)
Weitere Energiedaten
Heizungsart
Luft-/Wasser-Wärmepumpe, Zentralheizung
Details
Objektbeschreibung
- KfW 40 Klimafreundlicher und energieeffizienter Neubau! -
Diese energieeffizienten Neubauwohnungen überzeugen durch moderne Architektur, eine durchdachte Raumaufteilung und hochwertige Ausstattung. Die Wohnanlage besteht aus mehreren kleinen Häusern, die ein hohes Maß an Privatsphäre und ein angenehmes Wohnumfeld...
Ausstattung
- KfW 40 Klimafreundlicher Neubau
- Dezentrales Lüftungssystem mit Wärmerückgewinnung
- 3-Scheiben Isolierverglasung
- Fußbodenheizung in allen Räumen
- moderne Einbauküche mit Elektrogeräten bereits im Mietpreis inklusive
- praktischer Abstellraum in der Wohnung
- elektrische Raffstores
- offener...
Weitere Informationen
Sonstiges
Haben wir Ihr Interesse geweckt? Dann nutzen Sie bitte das Kontaktformular in der Anzeige und schreiben uns darüber eine E-Mail. Ein ausführliches Exposé senden wir Ihnen gerne nach vollständiger Kontaktanfrage.
Alle Angaben in diesem Exposé wurden sorgfältig und so vollständig wie möglich erstellt. Die...
Anbieter der Immobilie
Kraft Immobilien
Dr.-Geiger-Weg 4, 94032 Passau

Online-ID: 2m92c59
Referenznummer: 25-WM-37_EW2
Finde Angebote wie dieses
Hier geht es zu unserem Impressum, den Allgemeinen Geschäftsbedingungen, den Hinweisen zum Datenschutz und nutzungsbasierter Online-Werbung.