Maisonette zur Miete1.490 €2,5 Zimmer • 86 m² • EG • frei ab sofort
1.490 €
2,5 Zimmer • 86 m² • EG • frei ab sofort
*großzügige Terrasse - exklusive 2,5 Raumwohnung im Lahmann-Sanatorium am Weißen Hirsch*
Merkmale
- frei ab sofort
- Erdgeschoss
- offene Küche
- Personenaufzug
- Kelleranteil
- Duplex-Stellplatz
- Terrasse
- kontrollierte Be- und Entlüftungsanlage
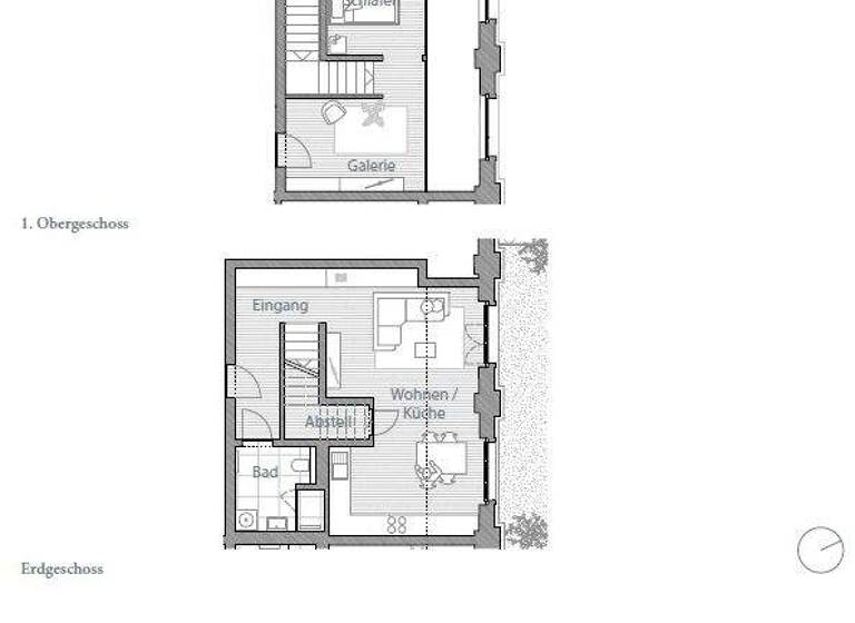
Grundrisse
Grundrisse
1 / 1
Bausubstanz und Energie
Energieausweis
- Baujahr1898
- Zustand der ImmobilieAltbau (bis 1945)
- HeizungsartZentralheizung: Fußbodenheizung
- EnergieträgerLuft-/Wasser-Wärmepumpe
Mietkosten
Warmmiete
1.740 €
Kaltmiete
17,33 €/m²
1.490 €
Nebenkosten
250 €
Heizkosten
in Nebenkosten enthalten
Zusätzliche Kosten
Miete pro Stellplatz
100 €
Kaution
2 Kaltmieten
Lage

Bautzner Landstraße 3 a, Bühlau/Weißer Hirsch, Dresden (01324)
Weitere Informationen
Weitere Services
Lust auf eine Besichtigung?
Eine Frage zur Immobilie?
Über den Anbieter
Loschwitzer Straße 21, 01309 Dresden
10 Jahre Partnerschaft
Frau Nicole JäckelDein Kontakt
Online-ID: 25UC5X78578R
Referenznummer: 6489
Wie zufrieden bist du mit dieser Seite (nicht mit der Immobilie selbst)?
