Version: 8.26.0Navigation überspringen
Mietkosten auf Anfrage
307 m² Bürofläche  •  teilbar von 307 m² bis 3.348 m²
Immowelt logo

Bürogebäude zur Miete • provisionsfrei
Mietkosten auf Anfrage
307 m² Bürofläche  •  teilbar von 307 m² bis 3.348 m²

Büro- und Archivflächen erweiterbar ab, ~307 m²/sqm / Office and archive space are expandable

Merkmale


Auf dem Grundstück befinden sich weitere Hallenkomplexe, ein Verwaltungsgebäude, ein Versorgungsgebäude sowie eine Vielzahl an Parkflächen.

• Attraktive Lobby

• Flexible Raumaufteilung

• Stellplätze nach Bedarf

• Deckenhöhe: 2,80 m

• Kühlung: natürliche Lüftung

• Sonnenschutz: innenliegend

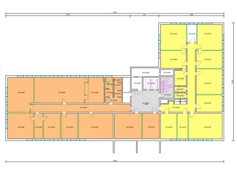
Freiflächenaufstellung und Grundrisse finden Sie anhängend als PDF-Datein.
____________________________________________________________________

Object descriptionTFittings

=================================================================

There are additional hall complexes, an administration building, a supply building and a variety of parking areas on the property.

• Attractive lobby

• Flexible room layout

• Parking spaces as required

• Ceiling height: 2.80 m

• Cooling: natural ventilation

• Sun protection: internal

The open space layout and floor plans can be found attached as PDF files.

Grundrisse

Grundrisse
1 / 5

Bausubstanz und Energie

Energieausweis

Endenergieverbrauch (Wärme)

Endenergieverbrauch (Strom)

  • Baujahr1991
Immowelt logo

Mietkosten

Miete auf Anfrage
Provision für Mieter
provisionsfrei
Kaution
ab 3 Bruttokaltmieten

Lage

address-icon
TiefenbroichRatingen (40880)
Der Anbieter hat die genaue Adresse nicht freigegeben

Die Liegenschaft in Ratingen-Tiefenbroich hat eine hervorragende Anbindung an das Autobahnnetz sowie den Flughafen Düsseldorf.

Entfernungen:

ÖPNV: ......................................200 m
Düsseldorf Hauptbahnhof..........13 km
Autobahnanschluss..................2,5 km
Flughafen Düsseldorf..................6 km
Ratingen Mitte.............................3 km
____________________________________________________________________

Location

=================================================================

The property in Ratingen-Tiefenbroich has excellent connections to the motorway network and Düsseldorf Airport.

Distances:

Public transport: ....................200 m
Düsseldorf main station.........13 km
Motorway connection............2.5 km
Düsseldorf Airport....................6 km
Ratingen Mitte..........................3 km

Weitere Informationen

Sonstiges
Wir freuen uns auf Ihre Anfrage und benötigen für weitere Auskünfte / Besichtigungstermine, Ihre kompletten Kontaktdaten da wir ansonsten Ihre Anfrage nicht beantworten können:

+ Firmenname
+ vollständige Adresse
+ Ansprechpartner
+ eMail Adresse / Homepage
+ Telefonnummer
+ Nutzungsbezeichnung

Ihr Ansprechpartner :
Alfred Schäfer

• • • KSK real estate gmbh informiert • • •

• Sie erreichen uns, auch am Wochenende, unter:

Hotline Mobil: 0172 2028004
Ratingen: 02102-5359837
Düsseldorf-Angermund: 0203-74464

Email: info@ksk-realestate.de

www.ksk-realestate.de

Die Mietpreisangaben verstehen sich jeweils zzgl. einer Nebenkostenvorauszahlung und der gesetzlich gültigen Umsatzsteuer pro Monat und sind abhängig von der gewünschten Ausstattung, Vertragslaufzeit und der Bonität des Mieters. Alle genannten Informationen beruhen auf Angaben des Vermieters / Eigentümers / Projektentwicklers. Die hier eingestellten Flächendefinitionen sind mit größter Sorgfalt recherchiert, erheben jedoch nicht den Anspruch auf Alleingültigkeit und werden lediglich unverbindlich zu Informationszwecken zur Verfügung gestellt. KSK real estate gmbh übernimmt keine Gewähr für die Richtigkeit dieser Angaben. Es gelten ausschließlich unsere AGB (www.ksk-realestate.de/agb-ds-gvo-impressum). Irrtum und Zwischenvermietung sind vorbehalten.

Weitere Büro- und Hallenflächenangebote finden Sie auf unserer Homepage:
https://www.ksk-realestate.de/gewerbevermietung/

* Energieausweis kann bei einem Besichtigungstermin vorgelegt werden*
____________________________________________________________________

Others

================================================================

We look forward to your inquiry and need your complete contact details for further information/viewing appointments, otherwise we cannot answer your inquiry:

+ Company name
+ Full address
+ Contact person
+ Email address / homepage
+ Phone number
+ Usage designation

Your contact person :
Alfred Schäfer

• • • KSK real estate gmbh informs • • •

• You can reach us, also on weekends, at:

Mobile hotline: +49 172 2028004
Ratingen: +49 2102-5359837
Dusseldorf-Angermund: +49 203-74464

Email: info@ksk-realestate.de

www.ksk-realestate.de

For inquiries we ask you to indicate your complete address, otherwise we will not be able to answer your request.

The rental price information is plus an advance payment of additional costs and the statutory sales tax per month and depends on the desired equipment, contract term and the creditworthiness of the tenant. All information given is based on information provided by the landlord/owner/project developer. The area definitions posted here have been researched with the greatest care, but do not claim to be solely valid and are only provided on a non-binding basis for informational purposes. KSK real estate gmbh assumes no liability for the correctness of this information. Our general terms and conditions apply exclusively (www.ksk-realestate.de/agb-ds-gvo-impressum). Errors and interim rentals are reserved.

You can find further office and hall space offers on our homepage:

*Energy performance certificate can be presented at a viewing appointment*

Weitere Services

Lust auf eine Besichtigung?
Eine Frage zur Immobilie?
Mit einer persönlichen Nachricht hast du bessere Chancen auf eine Antwort.
Mit der Nutzung der oben angegebenen Telefonnummer oder durch Klicken auf „Kontaktieren“ akzeptierst Du die Allgemeinen Nutzungsbedingungen, denen Du jederzeit widersprechen kannst. Weitere Informationen zum Datenschutz

Über den Anbieter

Rottgärten 12, 40489 Düsseldorf-Angermund
partner badgepartner badge
10 Jahre Partnerschaft + Diamond Partner
Herr Alfred Schäfer
Herr Alfred SchäferDein Kontakt

Weitere Unterlagen

Online-ID: 26CMF1ICL6TZ
Wie zufrieden bist du mit dieser Seite (nicht mit der Immobilie selbst)?