Version: 8.24.0Navigation überspringen
295.000 €
5 Zimmer  •  150 m²  •  585 m² Grundstück
Immowelt logo

Haus zum Kauf
295000 €
1.967 €/m²
5 Zimmer  •  150 m²  •  585 m² Grundstück

Leben genießen in zentraler Lage Kaufungens

Sie suchen ein gepflegtes Wohnhaus in guter Lage, dann ist dieses charmante Einfamilienhaus mit integrierter Ladeneinheit genau das Richtige.

Das Ursprungsgebäude wurde 1949 errichtet und dann im Jahr 1981 mit einem Anbau vergrößert und modernisiert. Die Kunststofffenster sind aus ca. 2020, die Bäder wurden ca. 2015 saniert, die Gasheizung stammt aus dem Baujahr ca. 2000.

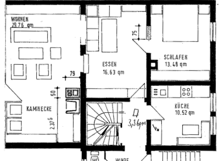
Im Erdgeschoss des Hauses sind ein Gäste-WC, die Küche, ein großzügiger Wohn-/Essbereich sowie ein Schlafzimmer. Ein Kamin im Wohnzimmer sorgt für gemütliche Stunden zum Entspannen.

Im Dachgeschoss befindet sich eine Diele mit angrenzendem Abstellraum, ein Bad und ein weiteres Schlafzimmer mit separater Ankleide.

Das Haus ist voll unterkellert und bietet vielfältige Nutzungsmöglichkeiten. Im Keller befinden sich Vorratskeller, eine Waschküche mit Gasheizung sowie eine Dusche und eine Werkstatt.

Das ca. 585 m² große Grundstück lädt zum Entspannen, Gärtnern und Wohlfühlen ein. Der liebevoll gestaltete Garten mit Gartenteich ist das Herzstück des Grundstücks – perfekt für Familienfeste, Gartenarbeit oder einfach zum Abschalten und Natur genießen. Auf der schönen Sonnen-Terrasse mit Grillplatz lassen sich hervorragend Grillabende verbringen.

Über einen separaten Eingang gelangen Sie in das ca. 36,56 m² große Ladengeschäft im Untergeschoss. Zum Laden gehört eine Doppelgarage mit ca. 30,91 m² Nutzfläche.

Die Mieter der Wohnung ziehen zum 01.11.2025 aus. Die Ladeneinheit ist momentan noch vermietet und bringt Einnahmen für Ihre Finanzierung.

Merkmale

  • 585 m² Grundstück
  • Garage
  • Gäste-WC
  • Garten
  • Terrasse
  • Badezimmer: Bad mit Dusche, Bad mit Fenster

Grundrisse

Grundrisse
1 / 3

Realisiere Dein Projekt

Bausubstanz und Energie

Energieausweis

G
  • Baujahr1949/1981
  • EnergieträgerGas
Immowelt logo

Preisdetails

Kaufpreis
295000 €
1.966,67 €/m²
Provision für Käufer
3,57%
Geschätzte Gesamtkosten
329.131 €1
Kaufpreis
295.000 €
Notarkosten (1,5%)
4.425 €
Grunderwerbsteuer (6%)
17.700 €
Provision für Käufer (3,57%)
10.531 €
Grundbucheintrag (0,5%)
1.475 €
1Der angezeigte Wert ist eine automatisch berechnete Schätzung von immowelt.
2Bei den Angaben handelt es sich um ortsübliche Werte. Individuelle Kosten können abweichen.

Lage

address-icon
NiederkaufungenKaufungen (34260)
Der Anbieter hat die genaue Adresse nicht freigegeben
Wer in dieser schönen Immobilie wohnt, genießt die Nähe zur Stadt, das herzliche Umfeld einer intakten Gemeinde und die vielen Möglichkeiten, die der bunte Mix von Stadt, Land und Natur zu bieten hat.

Kaufungen, eine moderne, aufstrebende Gemeinde mit 13.500 Einwohnern, landschaftlich umgeben von dem Kaufunger Wald und der Söhre.

Wohnen in Kaufungen bedeutet höchste Lebensqualität. Im Ranking der Kommunen & Stadtteile der HNA vom 28. September 2024, hat die Gemeinde Kaufungen den ersten Platz belegt als lebenswerteste Gemeinde mit höchster Lebensqualität.

Kaufungen bietet beste Infrastruktur, kulturelle Veranstaltungen sowie zahlreiche Geschäfte, Bäcker, Metzger und Praxen. Der Freizeitpark Steinertsee sorgt für eine gute Wohn- und Lebensqualität.

Die Lossetalstraßenbahn verbindet Kaufungen mit Kassel und Umgebung. Zur Innenstadt, der Kultur / Documenta Stadt Kassel, sind es nur wenige Minuten mit der Straßenbahn.

Weitere Services

Lust auf eine Besichtigung?
Eine Frage zur Immobilie?
Nachricht hinzufügen
Mit der Nutzung der oben angegebenen Telefonnummer oder durch Klicken auf „Kontaktieren“ akzeptierst Du die Allgemeinen Nutzungsbedingungen, denen Du jederzeit widersprechen kannst. Weitere Informationen zum Datenschutz

Über den Anbieter

Leipziger Str. 422, 34260 Kaufungen
partner badge
Partnerschaft
Herr Martin BoulnoisDein Kontakt
Keine Telefonnummer hinterlegt
Keine Telefonnummer hinterlegt
Online-ID: 2nvuc5m
BaVeMa Immobilien GmbH
BaVeMa Immobilien GmbH
Nachricht hinzufügen
Mit der Nutzung der oben angegebenen Telefonnummer oder durch Klicken auf „Kontaktieren“ akzeptierst Du die Allgemeinen Nutzungsbedingungen, denen Du jederzeit widersprechen kannst. Weitere Informationen zum Datenschutz
Wie zufrieden bist du mit dieser Seite (nicht mit der Immobilie selbst)?