Die charmante Reetdachkate, ursprünglich ca. 1790 erbaut, wurde 1980 kernsaniert und 1996 durch einen Anbau im hinteren Bereich erweitert. Auf einem idyllischen Grundstück von etwa ca. 816 m² bietet das Haus im Erdgeschoss rund 107 m² Wohnfläche. Im Dachgeschoss befinden sich drei behagliche Räume, die jedoch nicht zur offiziellen Wohnfläche zählen.
Das nach Westen ausgerichtete Grundstück verfügt über einen Carport, einen geräumigen Gartenschuppen und eine kleine Teichanlage. Das Reetdach wurde 2019 erneuert und die Fachwerkwände mit einer Dämmung ausgestattet.
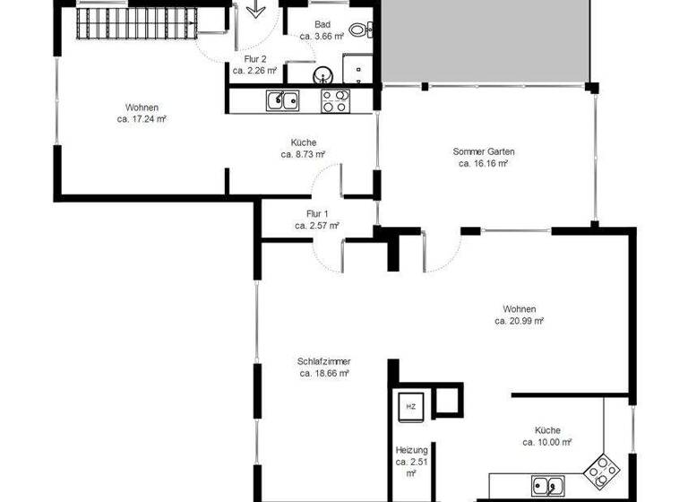
Der Anbau verfügt über einen eigenen Eingang.
Vereinbaren Sie gern einen persönlichen Besichtigungstermin und lassen Sie sich vor Ort von diesem besonderen Anwesen begeistern!
Merkmale
Bezug: nach Vereinbarung
816 m² Grundstück
Einbauküche, offene Küche
Kein Keller
Terrasse
Bad mit Dusche
Bodenbelag: Fliesen, Laminat
Aufgrund der älteren Ausstattung (80er Jahre) und der traditionellen Raumaufteilung sind Sanierungs- und Modernisierungsmaßnahmen notwendig. Dies bietet Ihnen die Chance, das Haus ganz nach Ihren Vorstellungen zu gestalten und Ihren Traum vom Leben in einer Reetdachkate zu verwirklichen.
Die Heizungsanlage besteht aus einer Gastherme von 2004, und die Holzrahmenfenster, doppelt verglast, stammen aus dem Jahr 1980. Zusätzlich wurde 2021 eine moderne Photovoltaikanlage mit großem Speicher installiert, deren Module sich auf dem Anbaudach befinden. Sie haben dadurch einen sehr geringen Stromverbrauch in der Zukunft.
Gerne präsentieren wir Ihnen alle Details bei einem persönlichen Besichtigungstermin vor Ort!
Grundrisse
Grundrisse
1 / 2
Realisiere Dein Projekt
Bausubstanz und Energie
Energieausweis
F
Baujahr1790
Zustand der ImmobilieGepflegt
HeizungsartZentralheizung
EnergieträgerGas
Preisdetails
Kaufpreis
649000 €649.000 €
6.065,42 €/m²
Provision für Käufer
3,57 % inkl. MwSt.
Geschätzte Gesamtkosten
727.334 €1
Kaufpreis
649.000 €
Kaufnebenkosten
78.334 €
2
Notarkosten (1,5%)
9.735 €
Grunderwerbsteuer (6,5%)
42.185 €
Provision für Käufer (3,57%)
23.169 €
Grundbucheintrag (0,5%)
3.245 €
1Der angezeigte Wert ist eine automatisch berechnete Schätzung von immowelt.
2Bei den Angaben handelt es sich um ortsübliche Werte. Individuelle Kosten können abweichen.
Lage
Bargteheide (22941)
Der Anbieter hat die genaue Adresse nicht freigegeben
Diese Immobilie befindet sich im nordöstlichen Speckgürtel Hamburgs - in Bargteheide. Bargteheide verfügt über eine gute Infrastruktur, ein ausgewogenes Sozialgefüge und eine grüne Umgebung. Über die L225, die A1 und per Regionalbahn gelangen Sie problemlos in die Hamburger Innenstadt.
Die Immobilie selbst befindet sich mitten im beliebten Stadtkern. Die Haupteinkaufsstraße und der Marktplatz liegen fußläufig entfernt. Hier finden Sie ein reichhaltiges Angebot an Supermärkten, Banken, Kleidungs- und Schuhgeschäften, Drogerien und Parfümerien sowie Restaurants und Cafés. Bargteheide beherbergt das bekannte "Kleine Theater" mit zahlreichen Kulturveranstaltungen und Kinobetrieb. Ein Freibad, vielseitige Sportvereine und Fitnessstudios runden das Freizeitangebot ab. Als Naherholungsgebiete sind das Naturschutzgebiet Duvenstedter Brook in ca. zehn Autominuten und die Ostsee in ca. 30 Autominuten erreichbar.
Weitere Informationen
Stichworte
Nutzfläche: 83,00 m², Anzahl der Schlafzimmer: 4, Anzahl der Badezimmer: 2, Anzahl Terrassen: 1, Bundesland: Schleswig-Holstein, Distanz zum Kindergarten: 0.47, Distanz zur Grundschule: 0.59, Distanz zur nächsten Einkaufsmöglichkeit: 0.30, Distanz zum Gymnasium: 0.70, Distanz zum Hauptbahnhof: 0.79, Distanz zur Autobahn: 4.10, Distanz zu U-/S-Bahn: 7.97, Distanz zum Bus: 0.26, Distanz zur nächsten Gaststätte: 0.33