Version: 8.25.1Navigation überspringen
HB-HB-Immobilien
280.000 €
3 Zimmer  •  105 m²  •  425 m² Grundstück

Einfamilienhaus zum Kauf
280000 €
2.667 €/m²
3 Zimmer  •  105 m²  •  425 m² Grundstück

Freistehendes Einfamilienhaus mit großem Garten und Ausbau-Potential

Dieses freistehende Einfamilienhaus bietet ein behagliches Zuhause für Menschen, die Wert auf klare Raumstrukturen, ein angenehmes Wohngefühl und Entwicklungspotenzial legen. Die Immobilie verbindet funktionales Wohnen mit einer wohnlichen Atmosphäre und eignet sich ideal für Paare oder kleine Familien.

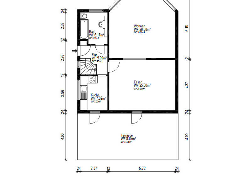
Bereits beim Betreten des Hauses vermittelt das Erdgeschoss ein stimmiges und einladendes Raumgefühl. Der zentrale Flur erschließt alle Bereiche auf kurzem Weg. Die separate Küche mit direktem Zugang zur Terrasse ist praktisch geschnitten und bietet ideale Voraussetzungen für den täglichen Gebrauch. Der angrenzende Essbereich bildet das kommunikative Herz des Hauses und öffnet sich direkt zur Terrasse - perfekt für gemeinsame Mahlzeiten, entspannte Abende oder gesellige Stunden im Freien.

Der Wohnbereich überzeugt durch seine Großzügigkeit und die gute Belichtung. Hier entsteht ein gemütlicher Lebensmittelpunkt mit ausreichend Platz für individuelle Einrichtungsideen. Die klare Trennung zwischen Wohnen und Essen sorgt für Struktur und Wohnkomfort zugleich. Ein Badezimmer auf dieser Ebene rundet das Raumangebot sinnvoll ab.

Im Dachgeschoss befinden sich die privaten Rückzugsräume. Neben dem Schlafzimmer steht ein weiterer Raum zur Verfügung, der flexibel als Kinderzimmer, Homeoffice oder Gästezimmer genutzt werden kann. Die Räume sind trotz der Dachschrägen gut nutzbar und vermitteln eine ruhige, private Atmosphäre - ideal zum Abschalten und Entspannen.

Das Haus ist voll unterkellert und bietet zusätzliche Nutzflächen mit vielseitigen Verwendungsmöglichkeiten, etwa für Hobby, Vorrat oder Hauswirtschaft. Diese Flächen schaffen spürbaren Mehrwert im Alltag und sorgen für Ordnung im Wohnbereich.

Insgesamt präsentiert sich die Immobilie als solides, charmantes Einfamilienhaus mit ausgewogener Raumaufteilung, das eine hervorragende Basis für individuelles Wohnen bietet.
Die anliegende Terrasse ist nicht nur sehr groß, sondern auch voll unterkellert und besaß eine Baugenehmigung für einen Wintergarten. Würde die Baugenehmigung aktualisiert bzw. erneuert werden, böte die geplante Wohnraumerweiterung die Möglichkeit, die Wohnfläche um mehr als 30 m² zu vergrößern.

Einige der Bilder im Exposé sind mit einer KI bearbeitet.

Merkmale

  • 425 m² Grundstück
  • Terrasse
  • Außen-Stellplatz
- Freistehendes Einfamilienhaus
- Massive Bauweise
- Erdgeschoss und ausgebautes Dachgeschoss
- Voll unterkellert
- Funktionale Grundrissgestaltung
- Separate Küche, inklusive Einbauküche
- Großzügiger Wohnbereich
- Separater Essbereich mit Terrassenzugang
- Badezimmer im Erdgeschoss
- Schlafzimmer im Dachgeschoss
- Zusätzliches Zimmer im Dachgeschoss (z. B. Kinder-, Gäste- oder Arbeitszimmer)
- Gute natürliche Belichtung
- Vielseitig nutzbare Kellerräume (z. B. Hobby, Lager, Hauswirtschaft)
- Ruhige, gewachsene Wohnlage
- Entwicklungspotenzial durch Modernisierung / individuelle Gestaltung
- Voll unterkellerte große Terrasse (ca. 30 m²) als Fundament für einen Wintergarten (Baugenehmigung von 1991)

Grundrisse

Grundrisse
1 / 2

Realisiere Dein Projekt

Bausubstanz und Energie

Energieausweis

H
  • Baujahr1930
  • Zustand der ImmobilieGepflegt
MediumRectangleTop

Preisdetails

Kaufpreis
280000 €
2.666,67 €/m²
Provision für Käufer
2,98 % (inkl. 19 % MwSt.) vom beurkundeten Kaufpreis, jeweils vom Käufer und Verkäufer
Weitere Preisinformationen
1 Stellplatz
Geschätzte Gesamtkosten
309.596 €1
Kaufpreis
280.000 €
Notarkosten (1,5%)
4.200 €
Grunderwerbsteuer (5%)
14.000 €
Provision für Käufer (3,57%)
9.996 €
Grundbucheintrag (0,5%)
1.400 €
1Der angezeigte Wert ist eine automatisch berechnete Schätzung von immowelt.
2Bei den Angaben handelt es sich um ortsübliche Werte. Individuelle Kosten können abweichen.

Lage

address-icon
Ellenerbrok-SchevemoorBremen (28325)
Der Anbieter hat die genaue Adresse nicht freigegeben
Das Objekt liegt am Osterholzer Möhlendamm im Stadtteil Osterholz der Stadt Bremen. Osterholz zählt zu den etablierten Wohnlagen im Bremer Osten und verbindet eine solide Infrastruktur mit überwiegend ruhigen Wohnstraßen. Die unmittelbare Nachbarschaft ist geprägt von gepflegter Wohnbebauung mit Ein- und Zweifamilienhäusern, was zu einer angenehmen und persönlichen Wohnatmosphäre beiträgt.

Alle Einrichtungen des täglichen Bedarfs - darunter Supermärkte, Bäckereien, Apotheken sowie weitere Dienstleister - sind in wenigen Minuten erreichbar. Familien profitieren von einem guten Angebot an Kindergärten, Schulen und Freizeitmöglichkeiten in der näheren Umgebung. Grün- und Erholungsflächen sowie Spazier- und Radwege bieten zusätzlichen Freizeit- und Erholungswert.

Die Verkehrsanbindung ist sowohl für den Individual- als auch für den öffentlichen Verkehr als gut zu bewerten. Mehrere Bus- und Straßenbahnlinien sorgen für eine schnelle Verbindung in die Bremer Innenstadt und zu weiteren Stadtteilen. Über die nahegelegenen Hauptverkehrsstraßen besteht zudem eine gute Anbindung an das regionale und überregionale Straßennetz, wie z.B. die Anbindung an das Bremer Kreuz.

Insgesamt überzeugt die Lage durch eine ausgewogene Kombination aus ruhigem Wohnen, guter Infrastruktur und verkehrsgünstiger Erreichbarkeit - ideale Voraussetzungen für Eigennutzer wie auch für langfristig orientierte Käufer.

Weitere Informationen

Sonstiges Ein Energieausweis liegt vor.

Grundsteuer jährlich: 345,12 €

Unsere Objektangaben basieren auf den uns erteilten Informationen. Eine Haftung für die Richtigkeit und Vollständigkeit können wir deshalb nicht übernehmen.

Voll unterkellerte Terrasse, die eine Baugenehmigung für einen Wintergarten (ca. 35 m²) hatte und durch den Bau des Fundamentes schon als begonnen betrachtet werden kann. Stichworte Nutzfläche: 60,00 m², Anzahl der Schlafzimmer: 2, Anzahl der Badezimmer: 1, Anzahl Terrassen: 1, 2 Etagen, Distanz zum Kindergarten: 0.36, Distanz zur Grundschule: 0.54, Distanz zur Realschule: 11.12, Distanz zur nächsten Einkaufsmöglichkeit: 0.11, Distanz zum Gymnasium: 0.87, Distanz zum Flughafen: 3.24, Distanz zum Hauptbahnhof: 0.90, Distanz zur Autobahn: 2.00, Distanz zum Bus: 0.16, Distanz zur nächsten Gaststätte: 0.03

Weitere Services

Lust auf eine Besichtigung?
Eine Frage zur Immobilie?
Nachricht hinzufügen
Mit der Nutzung der oben angegebenen Telefonnummer oder durch Klicken auf „Kontaktieren“ akzeptierst Du die Allgemeinen Nutzungsbedingungen, denen Du jederzeit widersprechen kannst. Weitere Informationen zum Datenschutz

Über den Anbieter

Schwachhauser Heerstr. 54A, 28209 Bremen
Herr Dennis RichertDein Kontakt
Online-ID: 267A617HZPK6
Referenznummer: DR-26-04-0000479
HB-HB-Immobilien
HB-HB-Immobilien
Bewertung: 3,8 von 5 Sternen
Nachricht hinzufügen
Mit der Nutzung der oben angegebenen Telefonnummer oder durch Klicken auf „Kontaktieren“ akzeptierst Du die Allgemeinen Nutzungsbedingungen, denen Du jederzeit widersprechen kannst. Weitere Informationen zum Datenschutz
MediumRectangleTop
MediumRectangleBottom
MediumRectangleTop
Wie zufrieden bist du mit dieser Seite (nicht mit der Immobilie selbst)?