120 qm attraktive Bürofläche in Zentrumsnähe von Emmerich am Rhein zu vermieten
Attraktive Büroflächen in verkehrsgünstiger Lage nahe am Stadtzentrum und am Bahnhof von Emmerich am Rhein.
In einer Gewerbeimmobilie aus dem Jahr 1991 liegt diese Bürofläche im 2. OG.
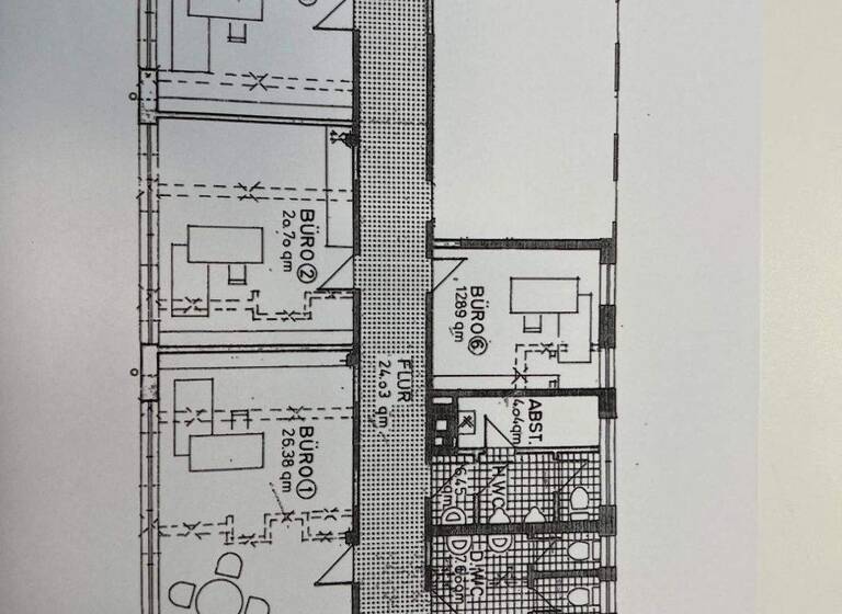
Auf 120,38 qm werden 3 Büros angeboten. Diese sind 31,18 qm, 20,70 qm und 26,38 qm groß. Auf der anderen Flurseite befindet sich ein 12,89 qm großer Kantinen/Küchenraum der ebenfalls noch als Büro genutzt werden könnte. Das Herren WC hat 2 Urinale und das Damen WC zwei getrennte Toiletten. Darüber hinaus gibt es noch einen kleinen Abstellraum.
Die Büros sind über einen Aufzug oder das Treppenhaus zu erreichen.
Geheizt wird mit einer Gas Zentralheizung.
Im Hinterhof stehen 2 Parkplätze für je 30,00 € mtl. zur Verfügung.
Der Mietpreis beträgt 7,00 € je qm kalt. Daraus ergibt sich eine Kaltmiete von 840,00 € monatlich. Die Nebenkosten beinhalten Strom, Gas und Wasser und betragen monatlich 240,00 €. Einmal jährlich werden die Nebenkosten "Spitz" abgerechnet.
Die Kaution beträgt 1.680,00 €.
Alle Werte verstehen sich zzgl. der ges. Mehrwertsteuer.
Der Anbieter hat die genaue Adresse nicht freigegeben
Emmerich am Rhein ist eine Hansestadt am rechten unteren Niederrhein im Nordwesten des Bundeslandes Nordrhein-Westfalen. Als mittlere kreisangehörige Stadt gehört sie zum Kreis Kleve im Regierungsbezirk Düsseldorf. Die Mittelstadt ist Mitglied der Euregio Rhein-Waal sowie der Rheinischen Hanse.
Emmerich hat ca. 33.000 Einwohner.
Die Büroflächen liegen in einem Gewerbehaus in unmittelbarer Nähe zum Bahnhof (100 m) zur Innenstadt (300 m) und zum Hafen (300 m)
Weitere Informationen
Sonstiges
Optional sind 2 Parkplätze im Hinterhof mietbar. Die Kosten hierfür betrage 30,00 € mtl. zzgl. MwSt.
Zu Mietbeginn wird eine Kaution in Höhe von 2 Monatskaltmieten fällig
Der Energieausweis wird bei der Besichtigung vorgelegt.
Stichworte
Nutzfläche: 120,38 m², Gesamtfläche: 120,38 m², vermietbare Fläche: 120,38 m², Bundesland: Nordrhein-Westfalen