WG-Zimmer mit eigenem Bad und Kleiderkammer am Akazienkiez
Objektbeschreibung
Es handelt sich um eine sehr stylische und voll möblierte WG mit 10 wunderschönen Zimmern, die sich einzeln abschließen lassen. Alle Zimmer wurden mit hochwertigen Hülsta Möbeln eingerichtet, verfügen über ein eigenes Badezimmer und einen begehbaren Kleiderschrank. Zur Wohnung gehört eine mit E-Geräten ausgestattete Einbauküche mit integrierter Theke und Inventar des täglichen Gebrauchs. Abgerundet wird die Küche durch ihren großzügigen Essbereich mit paradiesischer Fototapete.
Die Wohnfläche der gesamten Wohnung beträgt insgesamt ca. 278 m².
Raumaufteilung
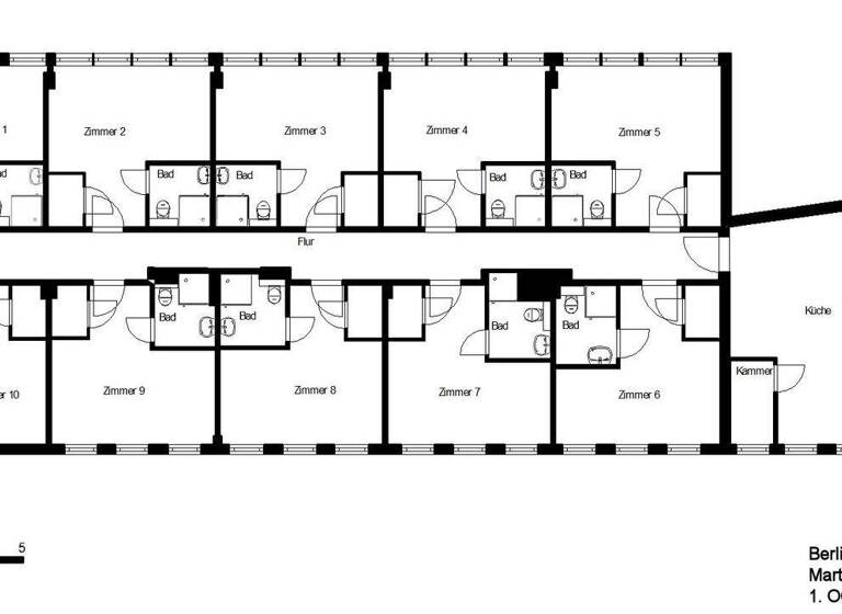
Jedes Zimmer verfügt über ein eigenes Bad & begehbaren Kleiderschrank!
Zimmer 1 = ca. 18 qm groß = vermietet Zimmer 2 = ca. 21 qm groß = vermietet Zimmer 3 = ca. 21 qm groß = vermietet Zimmer 4 = ca. 21 qm groß = vermietet Zimmer 5 = ca. 22 qm groß = vermietet Zimmer 6 = ca. 21 qm groß = vermietet Zimmer 7 = ca. 21 qm groß = 840,00 € Zimmer 8 = ca. 21 qm groß = vermietet Zimmer 9 = ca. 21 qm groß = vermietet Zimmer 10 = ca. 20 qm groß = vermietet
Der Mietpreis ist ein Inklusivpreis und beinhaltet nicht nur die Grundmiete des Zimmers, sondern auch eine hochwertige Ausstattung, Heiz- und Betriebskosten, Strom, GEZ-Gebühren und WLAN. Eine Reinigung der Gemeinschaftsräume rundet diesen einzigartigen Service ab.
Merkmale
frei ab sofort
Einbauküche
Personenaufzug
DSL-Anschluss
möbliert
Bad mit Dusche
WG-geeignet
max. 10 Personen
Grundrisse
Grundrisse
1 / 1
Realisiere Dein Projekt
Bausubstanz und Energie
Möchtest du Details zum Energieverbrauch?
Mietkosten
Warmmiete
840 €
Kaltmiete
nicht angegeben
Heizkosten
in Warmmiete enthalten
Kaution
1680 €1.680 €
Lage
Martin-Luther-Str. 91/93, Schöneberg, Berlin (10825)
Schöneberg liegt auf halbem Weg zwischen den Partyvierteln im Osten und den eleganteren, ruhigeren Vororten im Westen Berlin. Mit tollen Bars und Restaurants, schönen Wohnstraßen und Märkten ist Schöneberg eine Mischung aus Romantik und Spaß. Seit den 1920er Jahren ist die Gegend rund um den Nollendorfer Platz ein Zentrum des Nachtlebens für Homosexuelle in Berlin. Die jährliche Pride-Parade, der Christopher Street Day (CSD), ist eines der größten Straßenfeste Europas.
Zwischen Kreuzberg und Charlottenburg ist Schöneberg zentral gelegen. Die U1, U2 und U7 bieten gute Verbindungen nach Neukölln, Kreuzberg, Mitte und Prenzlauer Berg sowie nach Westen. Es gibt auch S-Bahn-Optionen über den Ring Bahn und die S1. Radfahrer haben auch viele gute Routen nach Mitte und in andere Stadtteile.
Weitere Informationen
Stichworte
WG: Anzahl Bewohner Frauen: 3, Anzahl Bewohner Männer: 6, Alter der Mitbewohner max.: 50, Alter der Mitbewohner min.: 18