Version: 8.24.0Navigation ĂĽberspringen
ohne-makler.net - Immobilien selbst vermarkten
1.210 €
156 m² Bürofläche

Bürofläche zur Miete • provisionsfrei
1.210 €
156 m² Bürofläche

Schicke Bürofläche / Praxis Fläche im 1 0G

Wir vermieten eine schöne, ausgefallene Praxfläche im ersten Obergeschoss des Herrenhauses. Die Fläche ist durch einen eigenen Eingang zu erreichen. Es gibt 5-6 unterschiedliche Zimmer/Büro. Alle Zimmer haben ein Fenster und natürliche Belüftung. Es gibt ebenfalls zwei Toiletten,herren und Damen sowie eine Wachmöglichkeit. Teilweise haben die Decken Stuck. Vor dem Eingang ist eine kleine Terrasse, die sie auch gerne in den Sommermonaten nutzen können. Im zweiten OG befindet sich ein Unausgebaute Speicher, der gegebenfalls zu einem späteren Zeitpunkt dazu gemietet werden kann und entsprechend ausgebaut werden kann.

Merkmale

  • Bezug: nach Absprache
  • 4 Stellplätze: 4 AuĂźen-Stellplätze
  • Balkon
  • Terrasse
  • Bodenbelag: Laminat, Kunststoff
  • Denkmalschutz-Afa
Balkon, Terrasse, Laminat

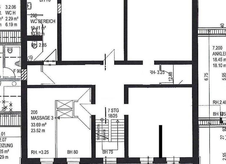
Grundrisse

Grundrisse
1 / 1

Realisiere Dein Projekt

Bausubstanz und Energie

Energieausweis

Ein Energieausweis ist für diesen Gebäudetyp nicht notwendig.
  • Baujahr1877
  • Zustand der Immobilierenoviert / saniert
  • HeizungsartEtagenheizung
  • EnergieträgerGas
MediumRectangleTop

Mietkosten

Nettomiete
1.210 €
Nebenkosten
350 €
Zusätzliche Kosten
Heizkosten
Provision fĂĽr Mieter
provisionsfrei; keine Provision, courtagefrei
Kaution
2700 €
Weitere Preisinformationen
4 Stellplätze
Nettokaltmiete: 1.210,00 EUR

Lage

address-icon
Oberbenrader strasse 51, Benrad-Süd, Krefeld (47804)
Die Hof liegt in Krefeld Forstwald zwischen Willich, Tönisvorst und Krefeld. Die sind innerhalb wenigen Minuten auf der Autobahn Richtung Düsseldorf (A 44, A 52). Es gibt ausreichende Parkplätze auf der Hofanlage und es gibt nur Gewerbetreibende Firmen.
Infrastruktur (im Umkreis von 5 km):
Apotheke, Lebensmittel-Discount, Grundschule, Ă–ffentliche Verkehrsmittel

Weitere Informationen

Sonstiges Heizungsart: Etagenheizung
Energieträger: Gas


ohne-makler (OM) ist weder Anbieter noch Vermittler der Immobilie. OM betreibt eine Plattform für Immobilieneigentümer, die unter anderem die gleichzeitige Veröffentlichung einzelner Inserate auf mehreren Immobilienportalen ermöglicht. Die Inhalte dieser Inserate werden ausschließlich von Dritten verantwortet. Für die Richtigkeit, Vollständigkeit oder Rechtmäßigkeit der Angaben übernimmt OM keine Haftung. Hinweise auf mögliche Rechtsverstöße können jederzeit gemeldet werden und werden nach Prüfung umgehend bearbeitet. Stichworte Stellplatz vorhanden, Gesamtfläche: 156,00 m², Anzahl Balkone: 1, Anzahl Terrassen: 1, Bundesland: Nordrhein-Westfalen, 1 Etagen

Weitere Services

Lust auf eine Besichtigung?
Eine Frage zur Immobilie?
Nachricht hinzufĂĽgen
Mit der Nutzung der oben angegebenen Telefonnummer oder durch Klicken auf „Kontaktieren“ akzeptierst Du die Allgemeinen Nutzungsbedingungen, denen Du jederzeit widersprechen kannst. Weitere Informationen zum Datenschutz

Ăśber den Anbieter

Humboldtstr. 25 A, 21509 Glinde
partner badge
Partnerschaft
Privat von B. SommerDein Kontakt
Keine Telefonnummer hinterlegt
Keine Telefonnummer hinterlegt
Online-ID: 2n2e952
Referenznummer: 413513
ohne-makler.net - Immobilien selbst vermarkten
ohne-makler.net - Immobilien selbst vermarkten
Nachricht hinzufĂĽgen
Mit der Nutzung der oben angegebenen Telefonnummer oder durch Klicken auf „Kontaktieren“ akzeptierst Du die Allgemeinen Nutzungsbedingungen, denen Du jederzeit widersprechen kannst. Weitere Informationen zum Datenschutz
MediumRectangleTop
MediumRectangleBottom
MediumRectangleTop
Wie zufrieden bist du mit dieser Seite (nicht mit der Immobilie selbst)?