Doppelhaus in Wörth an der Donau - Ihr Weg ins Eigenheim mit attraktiver KfW-Förderung
Dieses attraktive Grundstück in Wörth an der Donau bietet die ideale Grundlage für Ihr neues Zuhause - perfekt geeignet für die Bebauung mit einem modernen Doppelhaus. In Kombination mit dem durchdachten Hauskonzept "SCALA" entsteht ein energieeffizientes und zukunftssicheres Eigenheim - ideal für Familien, Paare oder alle, die nachhaltig und kosteneffizient bauen möchten. Jetzt besonders attraktiv: KfW-Förderung nutzen! - Pluspunkt: Für den klimafreundlichen Neubau stehen aktuell attraktive KfW-Förderprogramme (z. B. KfW 300) mit besonders günstigen Finanzierungskonditionen zur Verfügung, alternativ das Darlehen KfW 297. So sichern Sie sich nicht nur Ihr Traumhaus, sondern sparen langfristig deutlich bei den Finanzierungskosten und Energiekosten.
Ihr neues Zuhause - flexibel & mitwachsend Das Haus passt sich Ihren Lebensphasen an: - Erdgeschoss + vollwertiges Obergeschoss - Optional ausgebautes Dachgeschoss für mehr Platz - Ideal für Familien, Homeoffice oder Gäste
Merkmale
185 m² Grundstück
offene Küche
Bad mit Dusche
Gäste-WC
Kein Keller
Energie & Technik - Energieeffiziente Bauweise (KfW-Standard möglich) - Luft-Wasser-Wärmepumpe - Fußbodenheizung - dezentrale Lüftung (optional die zentrale Variante)
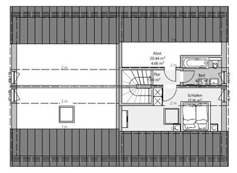
Grundrisse
Grundrisse
1 / 4
Realisiere Dein Projekt
Bausubstanz und Energie
Möchtest du Details zum Energieverbrauch?
Baujahr2026
HaustypKfW 40
HeizungsartZentralheizung: Fußbodenheizung
Preisdetails
Kaufpreis
442334 €442.334 €
4.021,22 €/m²
Provision für Käufer
provisionsfrei
Geschätzte Gesamtkosten
466.663 €1
Kaufpreis
442.334 €
Kaufnebenkosten
24.329 €
2
Notarkosten (1,5%)
6.635 €
Grunderwerbsteuer (3,5%)
15.482 €
Grundbucheintrag (0,5%)
2.212 €
1Der angezeigte Wert ist eine automatisch berechnete Schätzung von immowelt.
2Bei den Angaben handelt es sich um ortsübliche Werte. Individuelle Kosten können abweichen.
Lage
Ahornstraße, Oberachdorf (93086)
Lage - Wörth an der Donau
Die angebotene Immobilie befindet sich in ruhiger Wohnlage im Bereich Ahornweg im Ortsteil Oberachdorf, einem gewachsenen Dorf der Stadt Wörth an der Donau im Landkreis Regensburg. Oberachdorf zeichnet sich durch seinen ländlich geprägten Charakter mit hoher Wohnqualität aus und ist gleichzeitig hervorragend angebunden.
Die Umgebung ist geprägt von lockerer Wohnbebauung, viel Grün und einer naturnahen Atmosphäre, die ein ruhiges und entspanntes Wohnen ermöglicht. Gleichzeitig profitieren Bewohner von der Nähe zur Donau sowie zahlreichen Freizeit- und Erholungsmöglichkeiten - unter anderem verläuft der beliebte Donauradweg in unmittelbarer Nähe.
Die Stadt Wörth an der Donau mit ihrer gewachsenen Infrastruktur, Einkaufsmöglichkeiten, Schulen und medizinischer Versorgung ist in wenigen Minuten erreichbar (ca. 3-5 km). Auch die umliegenden Orte wie Wiesent oder Pfatter befinden sich im direkten Umfeld.
Eine sehr gute Verkehrsanbindung ist durch die nahegelegene Autobahn A3 (Anschlussstelle Wörth/Wiesent) gegeben, wodurch insbesondere die Städte Regensburg und Straubing schnell erreichbar sind.
Insgesamt verbindet die Lage am Ahornweg ruhiges, naturnahes Wohnen im Grünen mit einer guten Erreichbarkeit der regionalen Zentren - ideal für alle, die eine ausgewogene Kombination aus Erholung und Infrastruktur schätzen.
Weitere Informationen
Sonstiges
Es handelt sich um eine Projektierung von mehreren Grundstücken. Dieses Expose bezieht sich auf das Grunstück 03 B
(zzgl. Baunebenkosten, Carport oder Garage, Außenanlagen, ggf. Sonderausstattung) Das neu erschlossene Baugebiet bietet viele Möglichkeiten für Einfamilienhäuser, Doppel- und Reihenhäuser. Mehr Informationen gerne im Expose.
Es gibt drei verfügbare Grundstücke für 2 Doppelhaushälften, einen Dreispänner, sowie ein Einfamilienhaus.
Fragen Sie hierzu gerne das Exposé an.
Stichworte
Nutzfläche: 113,57 m², Anzahl der Schlafzimmer: 3, Anzahl der Badezimmer: 1, 2 Etagen, Lage im Wohngebiet
Energiestandard: Niedrigenergie
Sonstiges/Wohnen: Dachboden