Version: 8.25.1Navigation überspringen
14.000 €
Immowelt logo

Restaurant zur Miete - Erstbezug
14.000 €

Frisch sanierte Gastronomiefläche mit großem Biergarten im historischen Dorfkern von Berlin-Hellersdorf

Es handelt sich bei der hier angebotenen Fläche um 2 nebeneinander stehenden Gebäuden. Eines der Gebäude zählt zu den ältesten Häusern in Berlin-Hellersdorf. Die Lage im alten Dorfkern von Hellersdorf versprüht mit seinen zahlreichen denkmalgeschützten Objekten einen ländlichen und ruhigen Dorfcharakter, wie man ihn in Hellersdorf nicht erwarten würde.

Merkmale

  • Bezug: nach Vereinbarung
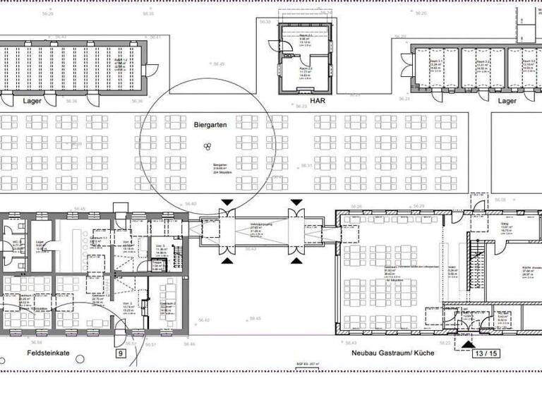
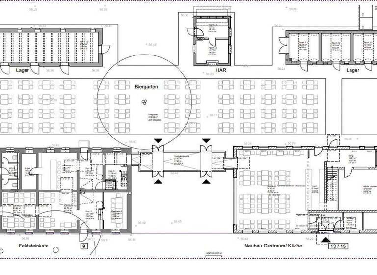
Das Gastronomie-Gewerbe bestehend aus Neubau, denkmalgeschützter "Feldsteinkate", Biergarten und Nebengelassen mit einer Fläche von rund 560 m² wird voraussichtlich Anfang 2026 fertiggestellt.

Der Neubau, bestehend aus Erdgeschoss und Dachgeschoss bietet im EG mit ca. 92 m² reichlich Platz für 62 Gäste. Er beinhaltet die Vollküche, Spülküche, Lager und behinderten WC.
Das Dachgeschoss des Neubaus ist dem Personal mit Umkleiden und Sanitärräume vorbehalten. Im Kellergeschoss befinden sich 2 weitere Lagerräume.

Über einen verglasten Übergang, welcher Neubau und Altbau miteinander verbindet, gelangt man zum denkmalgeschützten Altbau. Hier finden im Erdgeschoss auf ca. 121 m² 70 Gäste ihren Platz. Damen- und Herren-WC sind ebenfalls im Erdgeschoss vorhanden.

Sowohl der Altbau als auch der Neubau können mit Tresen ausgestattet werden.

Zusätzlich zu den 132 Gästeplätzen im Innenbereich bietet der neu gestaltete Biergarten im Sommer mit ca. 320 m² mehr Platz für noch einmal 224 Gäste und neue Möglichkeiten eine Entspannungsoase für die Kunden zu schaffen.

Reichlich Lagerräume, Müllraum sowie der Hausanschlussraum im Außenbereich, mit einer Größe von ca. 140 m², runden die Immobilie ab.

Durch die Ergänzung von alt und neu bleibt der alte Charme bestehen und verzaubert jeden mit seiner neuen Fassette.

Grundrisse

Grundrisse
1 / 1

Realisiere Dein Projekt

Bausubstanz und Energie

Energieausweis

Endenergiebedarf (Wärme)

  • Baujahr2024
  • Zustand der ImmobilieErstbezug
  • EnergieträgerFernwärme
Immowelt logo

Mietkosten

Kaltmiete
14.000 €
Nebenkosten
2.000 €
Zusätzliche Kosten
Heizkosten
Provision für Mieter
Bitte beachte, das Angebot kann bei Vertragsabschluss die Zahlung einer Provision beinhalten. Weitere Informationen erhältst Du vom Anbieter.
Kaution
48000 €

Lage

address-icon
Alt-Hellersdorf 7-9HellersdorfBerlin (12629)
Besonders geprägt ist das Stadtgut Familien und Senioren. Die größte Chance für einen wirtschaftlich nachhaltigen Betrieb sind die rund 3.600 Mieterinnen und Mieter des kürzlich errichteten und wachsenden Gesobau-Quartiers. Um das Ziel etwas "Besonderes" für den Standort zu erreichen, bedarf es Macherinnen und Macher, die Ideen mitbringen und den ungewöhnlichen Ort abseits des Innenstadt-Mainstreams suchen, um sich selbst verwirklichen zu können.

Weitere Informationen

Sonstiges In nur wenigen Gehminuten ist man im Zentrum "Helle Mitte" mit verschiedenen Einkaufsmöglichkeiten, sowie dem U-Bahnhof "Hellersdorf" mit direkter Verbindung zum Alexanderplatz (U5). Auch dank des vorhandenen Jelbi-Netzes und verschiedenen Sharing-Angeboten vor Ort (E-Scooter, E-Bike oder Auto) ist hier maximale Mobilität gegeben. Durch das gute Erreichen des Gewerbes werden auch die älteren Menschen begeistert anzureisen. Hellersdorf ist eng mit dem öffentlichen Nahverkehr, den Einzelfahrzeugen und Sharing Angeboten gekoppelt.

Gäste des Stadtgut Hellersdorf finden in der nahegelegenen Quartiersgarage Platz.

Interessentenlink - https://tenant.immomio.com/apply/2cf22562-057d-41c4-acc6-fbee2618f4b7 Stichworte Bürofläche: 560,00 m², Bundesland: Berlin, Distanz zum Hauptbahnhof: 20.0, Distanz zur Autobahn: 10.0, Distanz zum Flughafen: 40.0, Distanz zu U-/S-Bahn: 5.0

Weitere Services

Lust auf eine Besichtigung?
Eine Frage zur Immobilie?
Mit einer persönlichen Nachricht hast du bessere Chancen auf eine Antwort.
Mit der Nutzung der oben angegebenen Telefonnummer oder durch Klicken auf „Kontaktieren“ akzeptierst Du die Allgemeinen Nutzungsbedingungen, denen Du jederzeit widersprechen kannst. Weitere Informationen zum Datenschutz

Über den Anbieter

Stiftsweg 1, 13187 Berlin
partner badge
10 Jahre Partnerschaft
Daniel MakusDein Kontakt
Keine Telefonnummer hinterlegt
Keine Telefonnummer hinterlegt

Weitere Unterlagen

Online-ID: 25TNKKMZF75Z
Referenznummer: DNfbvg
GESOBAU AG
Bewertung: 4,2 von 5 Sternen
Mit einer persönlichen Nachricht hast du bessere Chancen auf eine Antwort.
Mit der Nutzung der oben angegebenen Telefonnummer oder durch Klicken auf „Kontaktieren“ akzeptierst Du die Allgemeinen Nutzungsbedingungen, denen Du jederzeit widersprechen kannst. Weitere Informationen zum Datenschutz
Wie zufrieden bist du mit dieser Seite (nicht mit der Immobilie selbst)?