Version: 8.26.0Navigation überspringen
13,50 €
250 m² Bürofläche  •  teilbar ab 250 m²
Immowelt logo

Büro zur Miete • provisionsfrei
13,50 €
/m²
250 m² Bürofläche  •  teilbar ab 250 m²

Stadtfenster Dortmund | 148 - 1.474 m² | BREEAM Zertifikat

Die angebotenen Büroflächen befinden sich in zentraler Innenstadtlage von Dortmund und bieten Unternehmen ein professionelles Arbeitsumfeld mit hoher Flexibilität und ausgezeichneter Erreichbarkeit. Das Gebäude verfügt über mehrere zusammenhängende Büroetagen, die sowohl einzeln als auch in Kombination angemietet werden können.

Unterschiedliche Bodenbeläge wie Teppich und PVC in Holzoptik schaffen eine angenehme Arbeitsatmosphäre und ermöglichen eine differenzierte Nutzung der einzelnen Bereiche. Die CAT-6-EDV-Verkabelung innerhalb der Bodentanks gewährleistet eine leistungsfähige IT-Infrastruktur und flexible Arbeitsplatzanordnung. Die teilweise vorhandene Klimatisierung sorgt ganzjährig für ein angenehmes Raumklima, während elektrisch gesteuerte Raffstoren an der Außenseite einen effektiven Sonnen- und Blendschutz bieten.

Sämtliche Etagen sind komfortabel über einen Personenaufzug erreichbar und werden über eine effiziente Fernwärmeversorgung beheizt. Parkmöglichkeiten stehen in den Parkhäusern im unmittelbaren Umfeld zur Verfügung, was sowohl Mitarbeitern als auch Besuchern eine unkomplizierte Anfahrt ermöglicht.

Derzeit ist die Raumstruktur größtenteils in Einzel- und Doppelbüros gegliedert. Diese lässt sich jedoch flexibel an individuelle Anforderungen anpassen. Ob offene Bürolandschaften, Kombibüros oder eine moderne New-Work-Struktur, die angebotenen Flächen bieten die Voraussetzungen für eine zukunftsorientierte und bedarfsgerechte Gestaltung. In Verbindung mit der attraktiven Innenstadtlage und der soliden technischen Ausstattung entsteht ein Bürostandort, der Effizienz, Komfort und Repräsentativität miteinander verbindet.

Merkmale

  • Bezug: nach Vereinbarung
  • Personenaufzug
Bodenbelag: Teppichboden, PVC in Holzoptik
EDV-Verkabelung: CAT 6
Kabelführung: Bodentanks
Kühlung: Vollklimatisierung
Sonnenschutz: außen liegend elektrisch
Küche: Anschlüsse vorinstalliert
Aufzug: Personenaufzug
Heizung: Fernwärme
Barrierearm: behindertengerecht
Baujahr: 1984, Kernsanierung 2011
Achsmaß: 1,25 m
Deckenhöhe: 2,70 m
Raumtiefe: variabel
Parkplätze: Parkhäuser im Umfeld

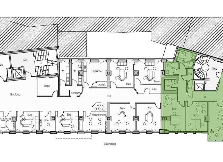
Grundrisse

Grundrisse
1 / 4

Bausubstanz und Energie

Energieausweis

Endenergieverbrauch (Wärme)

Endenergieverbrauch (Strom)

  • Baujahr1984
  • Zustand der Immobilieneuwertig
  • EnergieträgerFernwärme
Immowelt logo

Mietkosten

Monatliche Miete
13,50 €/m²
Nebenkosten
4,75 €
Zusätzliche Kosten
Heizkosten
Provision für Mieter
provisionsfrei
Kaution
keine Angabe

Lage

address-icon
MitteDortmund (44137)
Der Anbieter hat die genaue Adresse nicht freigegeben
Mitten im Herzen Dortmunds: Die Innenstadt ist das pulsierende Zentrum der Ruhrmetropole und bietet eine erstklassige Lage für Unternehmen, die Wert auf Sichtbarkeit, Kundenfrequenz und kurze Wege legen. Zahlreiche Einkaufsstraßen mit hoher Passantenfrequenz, ein vielfältiges Gastronomie- und Caféangebot sowie sämtliche Geschäfte des täglichen Bedarfs befinden sich direkt vor der Tür.
Die Verkehrsanbindung ist hervorragend - ob mit dem Auto über B1 und B54 in direkter Verbindung zu A1, A40 und A45 oder per Bahn über den Hauptbahnhof mit optimalem ÖPNV-Netz. Mehrere Parkhäuser in direkter Umgebung sichern ausreichend Stellplätze für Kunden und Mitarbeiter.

Weitere Informationen

Sonstiges Dieses Angebot ist provisionsfrei für den Mieter!

Alle Informationen in diesem Exposé beruhen auf Angaben, die wir vom Vermieter erhalten haben. Für Richtigkeit und Vollständigkeit übernehmen wir keine Gewähr. Zwischenvermietung vorbehalten. Die Grundrisse müssen nicht mit der aktuellen Raumaufteilung übereinstimmen und sind unmaßstäblich. Für Flächenangaben übernehmen wir keine Gewähr. In Planunterlagen eventuell abgebildete Möblierungen sind nicht Inhalt des Mietgegenstands.

Es gelten ausschließlich unsere AGB (www.cubion.de/agb). Stichworte Sonstiges: EDV-Verkabelung

Weitere Services

Lust auf eine Besichtigung?
Eine Frage zur Immobilie?
Mit einer persönlichen Nachricht hast du bessere Chancen auf eine Antwort.
Mit der Nutzung der oben angegebenen Telefonnummer oder durch Klicken auf „Kontaktieren“ akzeptierst Du die Allgemeinen Nutzungsbedingungen, denen Du jederzeit widersprechen kannst. Weitere Informationen zum Datenschutz

Über den Anbieter

Akazienallee 65, 45478 Mülheim
partner badge
3 Jahre Partnerschaft
Herr Marvin Prochowski
Herr Marvin ProchowskiDein Kontakt
Online-ID: 26D4LXD7SK47
Referenznummer: 1351/G1/E5/Eh2
Wie zufrieden bist du mit dieser Seite (nicht mit der Immobilie selbst)?