Version: 8.25.1Navigation überspringen
599.000 €
3 Zimmer  •  65,5 m²  •  EG  •  frei ab 01.09.2027
Immowelt logo

Terrassenwohnung zum Kauf • provisionsfrei
599000 €
9.141 €/m²
3 Zimmer  •  65,5 m²  •  EG  •  frei ab 01.09.2027

Neubau 3-Zi.-Wohnung mit Terrasse + Privatgarten in S-Bahn-Nähe Allach

Diese ansprechende Erdgeschoss-Wohnung mit Privatgarten im schönen Stadtteil Allach-Untermenzing in München überzeugt mit einer durchdachten Raumaufteilung und einer attraktiven Lage. Die Wohnung, die 2027 von uns fertiggestellt werden wird, bietet eine Fläche von 65,53 m² und umfasst drei helle Zimmer sowie ein modernes Badezimmer. Sie befindet sich im Erdgeschoss eines 3-stöckigen Gebäudes und ist für Käufer, die entweder ein neues Zuhause oder eine zukunftsfähige Kapitalanlage suchen. Aufgrund der besonders effizienten Grundwasser-Wärmepumpe wird das Gebäude eine Energieeffizienzklasse von A+ haben. Natürlich wird unser Neubau die steigenden Anforderungen seitens der Elektro-Mobilität erfüllen. Für Ihr Elektro-Fahrzeug steht am Tiefgaragenstellplatz ein Anschluss zum Laden bereit, Sie müssen nur noch Ihre Wallbox installieren. Ihr Elektro-Bike können Sie sicher und beschützt in einem Seitenraum der Tiefgarage an einer abschließbaren Steckdose aufladen. Internet-Anbindung ist über DSL gesichert. Falls der Glasfaser-Ausbau in der Straße bis zur Fertigstellung beendet ist, wird jede Wohnung auch an das Glasfasernetz angebunden sein. Pergulas Wohnbau ist der Bauträger für Allach-Untermenzing. Wir kaufen hier Grundstücke, um sie anschließend neu zu planen, selber zu bebauuen und sie schließlich an glückliche Käufer zu übergeben. Den Bau übernimmt immer unser eigenes Bauunternehmen, damit wir die höchste Qualität unserer Immobilien gewährleisten können. Wir setzen auf feste Partner, vom Architekt, über die Fachplaner bis hin zu unseren Handwerkspartnern, die seit vielen Baustellen und vielen Jahren immer zusammenarbeiten. So entsteht bei uns ein einzigartiges Team, das nur ein Ziel verfolgt: Ihren Immobilientraum zu erfüllen! Und ein letzter Punkt von mir persönlich, dem Geschäftsführer Alexander Nehrhaupt: Ich bin Ihr Ansprechpartner, von Anfang bis Ende, von der ersten Besichtigung, über Ihre Sonderwünsche bis zum Abschluss der Gewährleistung. Um damit das funktioniert, entwickle ich nur Immobilien in Allach-Untermenzing, denn hier wohne ich und hier arbeite ich täglich im Homeoffice. So bin ich immer vor Ort. Für mich entscheidend, dass Sie Ihren Immobilientraum erfüllen!

Merkmale

  • frei ab 01.09.2027
  • Erdgeschoss
  • offene Küche
  • Personenaufzug
  • Tiefgarage
  • Gartenanteil
  • Terrasse
  • DSL-Anschluss

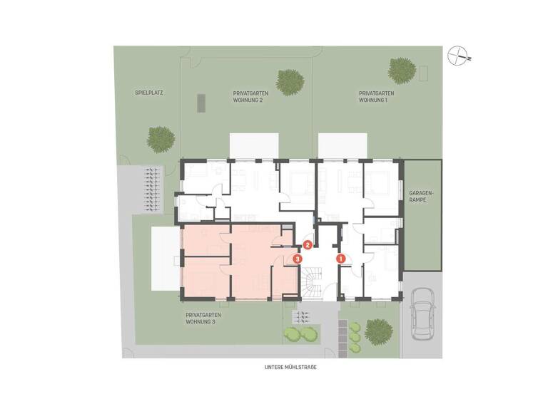
Grundrisse

Grundrisse
1 / 3

Realisiere Dein Projekt

Bausubstanz und Energie

Energieausweis

A+
  • Baujahr2027
  • HeizungsartZentralheizung: Fußbodenheizung
  • EnergieträgerElektro, Luft-/Wasser-Wärmepumpe
Immowelt logo

Preisdetails

Kaufpreis
599000 €
9.141 €/m²
Preis pro Stellplatz
30000 €
Provision für Käufer
provisionsfrei
Geschätzte Gesamtkosten
631.945 €1
Kaufpreis
599.000 €
Notarkosten (1,5%)
8.985 €
Grunderwerbsteuer (3,5%)
20.965 €
Grundbucheintrag (0,5%)
2.995 €
1Der angezeigte Wert ist eine automatisch berechnete Schätzung von immowelt.
2Bei den Angaben handelt es sich um ortsübliche Werte. Individuelle Kosten können abweichen.

Lage

address-icon
Untere Mühlstraße 15Allach-UntermenzingMünchen (80999)
Die Lage der Wohnung ist sowohl für Familien als auch für Berufstätige äußerst attraktiv. In unmittelbarer Nähe finden Sie die Busstation Vesaliusstraße, nur 50 Meter entfernt, sowie die S-Bahn-Station Allach, die in etwa 500 Metern erreichbar ist und Ihnen eine bequeme Anbindung an das Münchener Stadtzentrum bietet. Für Ihren täglichen Bedarf sind zahlreiche Supermärkte, Drogerien, Bäckereien und Metzgereien fußäufig in wenigen Minuten erreichbar. Auch unzählige Betreuungs- und Schuleinrichtungen für Kinder (Grund-, Mittel- und Realschule sowie Gymnasium) sind in der unmittelbaren Nähe.

Weitere Informationen

Sonstiges Info: Anzahl Etagen: 2 Kommen Sie zum Grundstück und lassen sich von mir den geplanten Neubau vorstellen. Dabei zeige ich Ihnen, was aktuell auf der Baustelle geschieht. Selbstverständlich geht das auch über Videokonferenz, falls Sie beruflich gebunden sind oder noch nicht in München wohnen.

Weitere Services

Lust auf eine Besichtigung?
Eine Frage zur Immobilie?
Nachricht hinzufügen
Mit der Nutzung der oben angegebenen Telefonnummer oder durch Klicken auf „Kontaktieren“ akzeptierst Du die Allgemeinen Nutzungsbedingungen, denen Du jederzeit widersprechen kannst. Weitere Informationen zum Datenschutz

Über den Anbieter

Danziger Str. 15, 85386 Eching
partner badge
Partnerschaft
Herr Alexander NehrhauptDein Kontakt

Weitere Unterlagen

Online-ID: 26X9U8P37CRV
Referenznummer: UM15-3
Pergulas Wohnbau GmbH
Pergulas Wohnbau GmbH
Nachricht hinzufügen
Mit der Nutzung der oben angegebenen Telefonnummer oder durch Klicken auf „Kontaktieren“ akzeptierst Du die Allgemeinen Nutzungsbedingungen, denen Du jederzeit widersprechen kannst. Weitere Informationen zum Datenschutz
Wie zufrieden bist du mit dieser Seite (nicht mit der Immobilie selbst)?