

Immolution GmbH
Herr Daniel Lengauer
+43 ···
Nr. anzeigenPreise & Kosten
Provision für Käufer
3% des Kaufpreises zzgl. 20% USt.
Lage
Die Marktgemeinde Steinhaus bei Wels bietet eine perfekte Mischung aus ländlichem Charme und urbaner Nähe. Die Region verfügt über ausgezeichnete Bildungseinrichtungen, darunter Kindergärten, Krabbelstuben und Schulen für alle Altersstufen, sodass Familien hier optimal versorgt sind. Einkaufsmöglichkeiten für den täglichen...
Das Haus
Kategorie
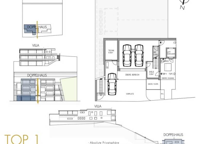
Doppelhaushälfte
Bezug
Anfang 2027
Energie & Heizung
Warum sehe ich diese Anzeige? – Du siehst diese Anzeige basierend auf Ihrer Navigation auf unserer Website und den Suchkriterien, die du verwendet hast.
Heizwärmebedarf (HWB)
41,00 kWh/(m²·a)
Gesamtenergieeffizienz (fGEE)
0,64
Weitere Energiedaten
Haustyp
Massivhaus, Niedrigenergiehaus
Energieträger
Holz
Heizungsart
Luft-/Wasser-Wärmepumpe, Zentralheizung
Details
Objektbeschreibung
WEITBLICK
Im Zentralraum
Höchste Ansprüche. Weite Ausblicke.
W-Ensemble TOP 01 - Exklusive Doppelhaushälfte im Projekt WEITBLICK
Wohnen ohne Kompromisse - zentral, naturnah und einzigartig.
Mitten im oberösterreichischen Zentralraum entsteht das exklusive Wohnprojekt WEITBLICK, das modernes Wohnen...
Preisinformation
Die angegebenen Betriebskosten, Heizkosten, Sonstiges sind Richtwerte in EUR ohne Gewähr., 3 Stellplätze
Weitere Informationen
Stichworte
Stellplatz vorhanden, Garage vorhanden, Nord-Ost-Ost-Süd-Balkon/Terrasse, Rolladen, Balkon-Terrassen-Fläche: 80,00 m², Bundesland: Oberösterreich, 4 Etagen
Anbieter der Immobilie

Online-ID: 2hppj5d
Referenznummer: OBGC20241221132043476cb02ad69a3
Finde Angebote wie dieses
Günstige Immobilienfinanzierung einfach online berechnen
Persönliches Angebot berechnenWarum sehe ich diese Werbung? – Du siehst diese Werbung basierend auf Deiner Navigation auf unserer Website und der von Dir verwendeten Suchkriterien.
Diese Werbung wird bezahlt von durchblicker
Werbung melden
Hier geht es zu unserem Impressum, den Allgemeinen Geschäftsbedingungen, den Hinweisen zum Datenschutz und nutzungsbasierter Online-Werbung.