

Haus zum Kauf - Erstbezug
DAVID 59: Erstklassige Eigentums- & Anlegerwohnungen mit 1-4 Zimmern und Freiflächen in top-zentraler Lage
Merkmale
- Bezug: 3. Quartal 2027
- offene Küche
- Personenaufzug
- Keller
- 10 Stellplätze: 10 Tiefgaragenstellplätze
- Terrasse
- Badezimmer: Badewanne, Bad mit Dusche
- Bodenbelag: Fliesen, Parkett
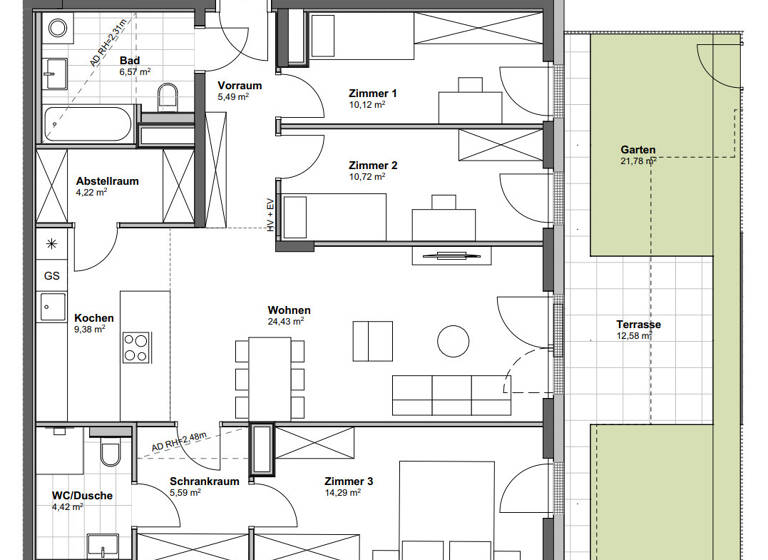
Grundrisse
Grundrisse
1 / 12
Realisiere Dein Projekt
Bausubstanz und Energie
Heizwärmebedarf (HWB)
B
Gesamtenergieeffizienz (fGEE)
A
- Baujahr2027
- Zustand der ImmobilieMassivhaus, Erstbezug
- HeizungsartFußbodenheizung
- EnergieträgerFernwärme
Preisdetails
Provision für Käufer
Bitte beachte, das Angebot kann bei Vertragsabschluss die Zahlung einer Provision beinhalten. Weitere Informationen erhältst Du vom Anbieter.
Weitere Preisinformationen
10 Tiefgaragenstellplätze, Miete je: 28.000,00 EUR
Lage

Wien (1100)
Der Anbieter hat die genaue Adresse nicht freigegeben
Weitere Informationen
Weitere Services
Lust auf eine Besichtigung?
Eine Frage zur Immobilie?
Über den Anbieter
Online-ID: 2lhr65d
Referenznummer: 6999

Wohn3 Team GmbH
Wie zufrieden bist du mit dieser Seite (nicht mit der Immobilie selbst)?

