

Detharding Immobilien
Frau Christiane Detharding
056 ···
Nr. anzeigenPreise & Kosten
Provision für Käufer
3,0 % (inkl. MwSt.) des beurkundeten Kaufpreises
Lage
Bad Wildungen liegt etwa 40 Kilometer nordwestlich von Kassel und am Rande des Naturparks Kellerwald-Edersee. Die Stadt war lange Zeit ein Sitz der Grafen und Fürsten von Waldeck, und dies zeigt sich im historischen Fachwerk und den repräsentativen Schlossgebäuden auf und um den Burgberg. Zur Kurstadt wurde sie durch ihre...
Das Haus
Kategorie
Einfamilienhaus
Baujahr
1968
Bezug
sofort
Energie & Heizung
Warum sehe ich diese Anzeige? – Du siehst diese Anzeige basierend auf Ihrer Navigation auf unserer Website und den Suchkriterien, die du verwendet hast.
Weitere Energiedaten
Haustyp
Fertighaus
Heizungsart
Fußbodenheizung, Luft-/Wasser-Wärmepumpe
Details
Objektbeschreibung
Auf einem etwa 563 Quadratmeter großen Grundstück im familiären Ortsteil Reitzenhagen dürfen wir Ihnen ein erst in den letzten Monaten rundum modernisiertes und saniertes Einfamilienhaus aus dem Jahr 1968 vorstellen, das nicht nur durch seine hochwertige und geschmackvolle Ausstattung, sondern auch durch seine vielfältigen...
Ausstattung
- Nutzung als Ein- oder Zweifamilienhaus
- Energieeffizienzklasse A
- Umfassende Sanierung 2025 abgeschlossen
- Dämmung mit natürlichen Dämmstoffen (Zellulose und Holzfasern)
- Wärmepumpe auch mit Kühlung
- Kabelvorbereitung für Photovoltaikanlage
- Eichenparkett mit Fußbodenheizung
- Lüftungsanlagen mit...
Preisinformation
2 Stellplätze
1 Garagenstellplatz
Weitere Informationen
Stichworte
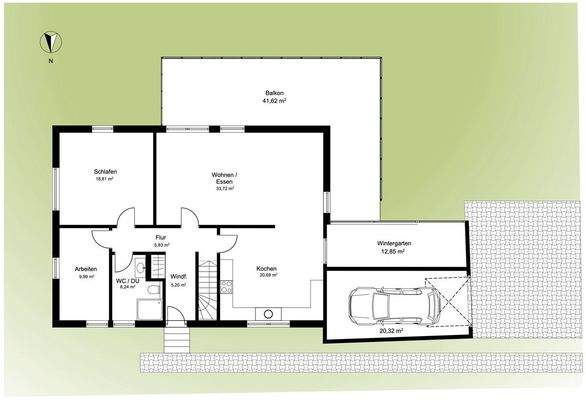
Süd-West-Balkon/Terrasse, Anzahl der Schlafzimmer: 4, Anzahl der Badezimmer: 2, Anzahl Balkone: 1, Anzahl Terrassen: 1, Anzahl der Wohneinheiten: 2, 2 Etagen
Sonstiges/Wohnen: Einliegerwohnung
Anbieter der Immobilie
Detharding Immobilien
An den Vogelwiesen 2 B, 34132 Kassel

Online-ID: 2m5jx5n
Referenznummer: 24.10239
Finde Angebote wie dieses
Hier geht es zu unserem Impressum, den Allgemeinen Geschäftsbedingungen, den Hinweisen zum Datenschutz und nutzungsbasierter Online-Werbung.