Version: 8.24.0Navigation überspringen
450.000 €
500 m² Grundstück
Immowelt logo

Grundstück zum Kauf
450000 €
900 €/m²
500 m² Grundstück

Projektpaket: Bestandsgebäude mit Baugenehmigung zum Umbau als Mehrfamilienhaus!

Im Kundenauftrag verkaufen wir eine Konzeption für Wohnungen, welche vielfältige Ansprüche an Wohnfläche und Zuschnitt erfüllt.

Das Projekt umfasst 7 moderne und lichtdurchflutete Einheiten teilweise mit Terrasse bzw. Balkon.

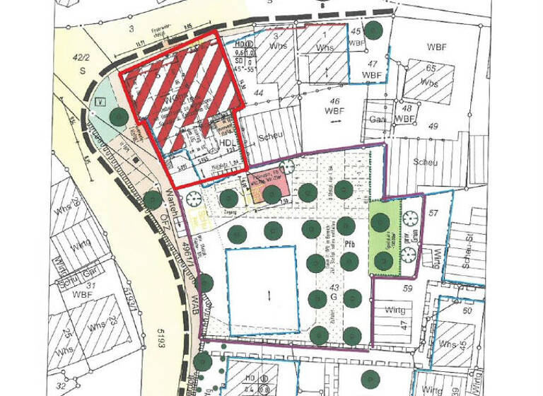
Wir bieten kompakte 2- bis 4-Zimmer-Wohnungen von ca. 48 m² bis zur großzügigen Wohnung mit etwa 111 m² an. Die Gesamtwohnfläche beträgt ca. 614 m²; die Grundstücksfläche ungefähr 500 m².

Die Wohneinheiten verfügen über durchdachte Grundrisse um gehobenen Ansprüchen an individuellem Wohnkomfort gerecht zu werden.

Der Zugang zu allen Wohnungen erfolgt über das gemeinschaftliche Treppenhaus.

Das Mehrfamilienwohnhaus ist gemäß den Anforderungen an die Wärmeschutzverordnung konzipiert.

Im Untergeschoss ist jeder Wohneinheit ein Abstellraum zugeteilt. Zudem befinden sich im UG zwei Garagen sowie weitere 8 Außenstellplätze auf dem Grundstück.

Ein Fahrradraum sowie eine Waschküche stehen den Bewohnern gemeinschaftlich zur Verfügung.

Eine Baugenehmigung und Abgeschlossenheitsbescheinigung sind vorhanden.

Merkmale

  • 500 m² Grundstück

Grundrisse

Grundrisse
1 / 6

Realisiere Dein Projekt

Bausubstanz und Energie

Der Anbieter hat keine Informationen zu Energieverbrauch oder Zustand der Immobilie bereit gestellt.
Immowelt logo

Preisdetails

Kaufpreis
450000 €
900 €/m²
Provision für Käufer
3,570 % inkl. MwSt.
Geschätzte Gesamtkosten
466.065 €1
Kaufpreis
450.000 €
Provision für Käufer (3,57%)
16.065 €
1Der angezeigte Wert ist eine automatisch berechnete Schätzung von immowelt.
2Bei den Angaben handelt es sich um ortsübliche Werte. Individuelle Kosten können abweichen.

Lage

address-icon
DainbachBad Mergentheim (97980)
Der Anbieter hat die genaue Adresse nicht freigegeben
Dieses Projekt befindet sich inmitten von Dainbach, einem Stadtteil von Bad Mergentheim.

In der ca. 8 km entfernten Kernstadt Bad Mergentheim gibt es Kindergärten, Grundschulen sowie weiterführende Schulen. Die medizinische Versorgung ist durch Allgemeinärzte, Fachärzte, Apotheken und einem Krankenhaus ebenfalls gewährleistet.

Bad Mergentheim ist eine Stadt an der Tauber im fränkischen Nordosten Baden-Württembergs, etwa 35 km südwestlich von Würzburg bzw. 56 km nordöstlich von Heilbronn. Die Stadt Bad Mergentheim ist die größte des Main-Tauber-Kreises. Bekannt für Industrie, Bildung und Medizin.

Die Autobahnen A 3 und A 81 sind innerhalb weniger Minuten erreichbar. Somit sind die Großstädte mit Ihren Flughäfen wie Frankfurt, Stuttgart und Nürnberg nur ca. 1,5 Stunden entfernt. Es besteht von Bad Mergentheim eine direkte Zuganbindung nach Würzburg. Auch an mehrere überörtliche Radwanderwege ist Bad Mergentheim angebunden: Der Taubertalradweg, der Panoramaweg Taubertal und der 180 km lange Jakobsweg Main-Taubertal führen durch Bad Mergentheim.

Weitere Informationen

Sonstiges Ein Energieausweis liegt z. Z. noch nicht vor, ist jedoch angefordert.
Weitere Informationen werden auf Anfrage gerne zugesandt.
Bitte haben Sie Verständnis, dass Ihre Anfrage nur bei Angabe Ihrer vollständigen Kontaktdaten (Name, Anschrift, Telefonnummer, E-Mail) bearbeitet wird.
Für Besichtigungen stehen wir nach telefonischer oder schriftlicher Rückfrage zur Verfügung.
Alle Angaben und Daten zum Objekt beruhen auf Auskünften des Verkäufers. Hierfür übernehmen wir keine Haftung.
Bei notariellem Vertragsabschluss wird eine Vermittlungs- bzw. Nachweisgebühr in Höhe von 3,57 % inkl. gesetzl. Mehrwertsteuer vom verbrieften Kaufpreis zur sofortigen Zahlung an uns fällig, die vom Käufer zu tragen ist.

Sie haben noch keine Finanzierung? Gerne sind wir Ihnen dabei behilflich. Unser Finanzierungspartner erstellt Ihnen sehr gerne ein unverbindliches, kostenfreies Finanzierungsangebot!
Stichworte Bundesland: Baden-Württemberg

Weitere Services

Lust auf eine Besichtigung?
Eine Frage zur Immobilie?
Nachricht hinzufügen
Mit der Nutzung der oben angegebenen Telefonnummer oder durch Klicken auf „Kontaktieren“ akzeptierst Du die Allgemeinen Nutzungsbedingungen, denen Du jederzeit widersprechen kannst. Weitere Informationen zum Datenschutz

Über den Anbieter

Poststraße 5, 97980 Bad Mergentheim
partner badge
10 Jahre Partnerschaft
Herr Ulrich HammelDein Kontakt
Online-ID: 2ks9l5d
Referenznummer: 1-1160
INVEST CONCEPT GmbH
INVEST CONCEPT GmbH
Bewertung: 4,9 von 5 Sternen
Nachricht hinzufügen
Mit der Nutzung der oben angegebenen Telefonnummer oder durch Klicken auf „Kontaktieren“ akzeptierst Du die Allgemeinen Nutzungsbedingungen, denen Du jederzeit widersprechen kannst. Weitere Informationen zum Datenschutz
Wie zufrieden bist du mit dieser Seite (nicht mit der Immobilie selbst)?