Version: 8.26.0Navigation überspringen
12,50 €
5.000 m² Bürofläche  •  teilbar ab 5.000 m²
Immowelt logo

Bürofläche zur Miete • provisionsfrei
12,50 €
/m²
5.000 m² Bürofläche  •  teilbar ab 5.000 m²

BUERO.flächen in Leipzig- Leutzsch an der S-Bahn

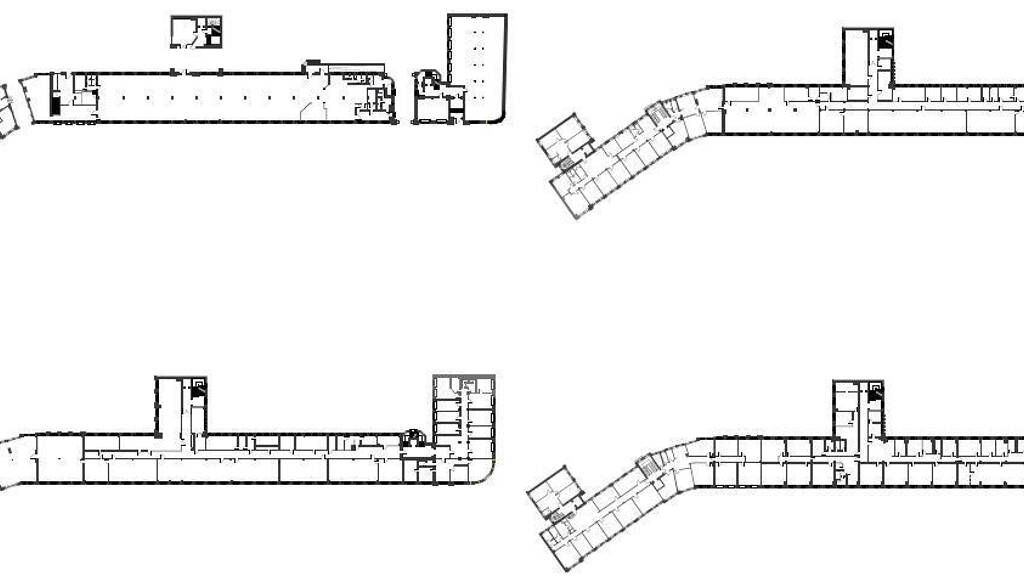
Das denkmalgeschützte Gebäude wurde ca. um 1897 errichtet und wurde für die Verwaltung der Bogenlampenfabrik Körting & Matthiesen AG genutzt. 1811/1912 wurde das Gebäude erweitert. Das Gebäude wurde später als Ausbildungsbetrieb der Siemens AG genutzt. Die Etagen verfügen über mehrere Zugangsbereiche und werden durch einen Aufzug erschlossen. Die Mietbereiche können nach dem Raumprofil des Mieters ausgebaut und ausgestattet werden.

Insgesamt stehen folgende Flächen zur Verfügung und können einzeln oder insgesamt angemietet werden:

Erdgeschoss mit 1.250 m² teilbar ab 400 m²
1. - 4. Obergeschoss mit 1.250 m² teilbar ab 400 m²
5. Obergeschoss mit ca. 900 m²


Stellplätze können auf dem Areal und im Umfeld genutzt werden.

Grundrisse

Verschaffe dir einen genauen Überblick über die Raumaufteilung.selection_property_house-icon

Bausubstanz und Energie

Möchtest du Details zum Energieverbrauch?info_energy_calculation-icon
Immowelt logo

Mietkosten

Monatliche Miete
12,50 €/m²
Zusätzliche Kosten
Heizkosten
Provision für Mieter
provisionsfrei
Kaution
keine Angabe

Lage

address-icon
LeutzschLeipzig (04179)
Der Anbieter hat die genaue Adresse nicht freigegeben
Das Objekt befindet sich in Leutzsch, im Nordwesten von Leipzig. Leutzsch ist bekannt für seine klassischen Arbeiter und Industriellenviertel mit prächtigen Industriegebäuden und prägt sich von Wohnvierteln so wie von einer Jugendstil-Villenkolonie. Nahe gelegen befinden sich ebenfalls Einkaufsmöglichkeiten sowie Zahlreiche Restaurant. Die Innenstadt lässt sich schnell und einfach mit der Bahnlinie 7 und mit der S-Bahn (S1) erreichen sowie mit dem Auto über die B87.

Weitere Informationen

Sonstiges Der Mietpreis richtet sich nach der Ausstattung, Mietvertragslaufzeit und Lage im Objekt und liegt ca. zwischen 6,00EUR/m² - 15,00EUR/m² zggl. Nebenkosten. Gern unterbreiten wir Ihnen Ihr persönliches Mietangebot
.
Büroanmietung leicht gemacht?
Für Fragen, ein persönliches Gespräch oder auch eine persönliche Terminvereinbarung stehen wir Ihnen gern telefonisch unter 03415643000 zur Verfügung.

Weitere Services

Lust auf eine Besichtigung?
Eine Frage zur Immobilie?
Mit einer persönlichen Nachricht hast du bessere Chancen auf eine Antwort.
Mit der Nutzung der oben angegebenen Telefonnummer oder durch Klicken auf „Kontaktieren“ akzeptierst Du die Allgemeinen Nutzungsbedingungen, denen Du jederzeit widersprechen kannst. Weitere Informationen zum Datenschutz

Über den Anbieter

Markt 9, 04109 Leipzig
Frau Kathrin Oldenburg
Frau Kathrin OldenburgDein Kontakt
Online-ID: 23KM22KI5FYR
Referenznummer: 1395/G1/E5/Eh4
Wie zufrieden bist du mit dieser Seite (nicht mit der Immobilie selbst)?