Version: 8.22.5Navigation ĂĽberspringen
1,24 €
887,6 m² Bürofläche
Immowelt logo

Bürogebäude zur Miete
1,24 Euro pro Quadratmeter
887,6 m² Bürofläche

Unique Office - VIENNA TWENTY TWO

VIENNA TWENTYTWO Unique Office bietet auf rund 3.800 m² Raum für Ihre individuelle Unternehmenskultur in urbaner Bestlage in Wien-Kagran. Als attraktiver Business-Standort in einem der modernsten und dynamischsten neuen Stadtquartiere Wiens bietet das Single-Tenant-Bürogebäude hervorragende Arbeits- und Lebensqualität. Exklusiv für Ihr Unternehmen als alleinigen Mieter.

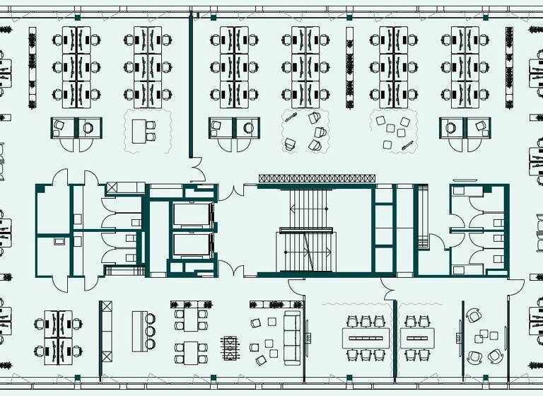
Mit einer Gesamtnutzfläche von ca. 3.787 m² und Regelgeschossflächen von ca. 808 m² im 1. Obergeschoss und ca. 890 m² im 2. bis 4. Obergeschoss bietet VIENNA TWENTYTWO Unique Office großzügige Flächen für die individuelle Umsetzung Ihrer Unternehmenskultur: von kommunikativ gestalteten Open Space-Konzepten über flexible Mixed-Space Grundrisse bis hin zu klassisch geschlossenen Büroräumen für optimale Privatsphäre ist alles möglich. Darüber hinaus besteht die Möglichkeit sich im Erdgeschoss mit ca. 315 m² zu präsentieren oder einen individuell für Ihre Kunden zugänglichen Bereich zu schaffen. Zusätzlich stehen Ihnen im 1. Untergeschoss noch ca. 600 m² Lagerfläche zur Verfügung.

VIENNA TWENTYTWO ist ein architektonisch und konzeptionell anspruchsvolles Gesamtprojekt, das neue Maßstäbe für urbane Lebens- und Arbeitsqualität in Wien setzt. Der Landmark-Gebäudekomplex auf rund 16.000 m² Gesamtfläche wurde von den österreichischen Stararchitekten Delugan Meissl nach konsequent nachhaltigen Kriterien gestaltet. Das durchdacht komponierte Ensemble von zwei diagonal positionierten Hochhäusern und vier Flachbauten bietet einen breiten Nutzungsmix von individuell konfigurierbaren Offices, hochwertigem Wohnraum, einem Hotel und Serviced Apartments, sowie einer großen Vielfalt an Einkaufs- und Freizeitmöglichkeiten direkt vor Ort. Für Ihren außertourlichen Bedarf an Besprechungen stehen Ihnen zahlreiche Konferenzräumlichkeiten im Gesamtareal des VIENNA TWENTYTWO zur Verfügung.

Merkmale

  • Bezug: Q1 2025
  • 4. Geschoss
  • Personenaufzug
  • voll klimatisiert
- Eigene repräsentative Bürolobby
- Lifte mit Zielrufsteuerung
- Ă–ffenbare Fenster
- Mechanische Be- und EntlĂĽftung
- Ressourcenschonende KĂĽhlung (Betonkernaktivierung)
- Außenliegender Sonnenschutz, der sich den Wetterverhältnissen anpasst und den Energieverbrauch optimiert
- Energiesparende Beleuchtung
- Downlights in Gangzonen
- Doppelboden inkl. Bodentanks
- Hochwertige Teppichfliesen
- Auf Wunsch Parkett bzw. Vinylboden
- Raumhöhe 3m im Regelgeschoß, 4,20m im EG
- Maximalbelegung: 320 PAX
- VideoĂĽberwachungsanlage in Allgemeinbereichen
- Zutritt des Gebäudes durch Zutrittskontrolle
- Moderne Zutritts- und Sicherheitssysteme
- Tiefgarage mit E-Ladestationen
- Zutrittsgesicherter Fahrradraum mit E-Ladestationen
- Direkter Ausgang zur Terrasse im 1. OG
- Zertifizierungen: Wired & Well

Grundrisse

Grundrisse
1 / 3

Realisiere Dein Projekt

Bausubstanz und Energie

Der Anbieter hat keine Informationen zu Energieverbrauch oder Zustand der Immobilie bereit gestellt.
Immowelt logo

Mietkosten

Gesamtmiete
22.527,29 €
Nettokaltmiete
1,24 €/m²
15.533 €
Betriebskosten
3.239,74 €
Umsatzsteuer
3.754,55 €
Provision fĂĽr Mieter
3 BMM zzgl. 20 % USt.
Kaution
3-6 BMM (bonitätsabhängig)
Weitere Preisinformationen
Nettokaltmiete: 15.533,00 EUR

Lage

address-icon
Wien (1220)
Der Anbieter hat die genaue Adresse nicht freigegeben
VIENNA TWENTYTWO Unique Office ĂĽberzeugt durch seine hervorragende Lage: Als neues urbanes Zentrum liegt das VIENNA TWENTYTWO direkt an der U1, an der Wagramer StraĂźe mit schneller Autobahn-Anbindung und ist auch perfekt ans Wiener Radwegnetz angebunden. Innerhalb von 5 Minuten Gehweite findet man ein breites Angebot an Nahversorgern, Bildungsinstituten und diversen Freizeitangeboten.

VIENNA TWENTYTWO bietet eine hervorragende Verkehrslage sowie die direkte Anbindung an das U-Bahn- und Fahrradnetz. Damit ist das Bürogebäude innerhalb des Wiener Stadtgebiets, aus dem Wiener Umfeld sowie vom Flughafen Wien bequem erreichbar.

Ă–FFENTLICHE ANBINDUNG:
- U-Bahn: U1 (KAGRAN)
ENTFERNUNGEN:
- Alte Donau - 1 Station
- Uno City/VIC - 2 Stationen
- Messe-Prater - 6 Stationen
- Stephansplatz - 8 Stationen
- Hauptbahnhof - 11 Stationen

- Bus: 22A, 26A, 93A, 94A
- StraĂźenbahn: 25

INDIVIDUALVERKEHR:
Mit dem Pkw erreicht man die A22, A23 und die A4 in wenigen Minuten, und die bestens ausgebauten Radwege ergänzen den hervorragenden Anschluss an das individuelle Verkehrsnetz.

Weitere Informationen

Stichworte Nutzfläche: 887,60 m², Gesamtfläche: 15.000,00 m², Bundesland: Wien

Weitere Services

Lust auf eine Besichtigung?
Eine Frage zur Immobilie?
Nachricht hinzufĂĽgen
Mit der Nutzung der oben angegebenen Telefonnummer oder durch Klicken auf „Kontaktieren“ akzeptierst Du die Allgemeinen Nutzungsbedingungen, denen Du jederzeit widersprechen kannst. Weitere Informationen zum Datenschutz

Ăśber den Anbieter

OTTO Immobilien
OTTO ImmobilienMaklerbĂĽro
Riemergasse 8, 1010 WIEN
Herr Helmut WanjekDein Kontakt
Online-ID: 2jh4d5c
Referenznummer: IVG-O-05516/4
OTTO Immobilien
OTTO Immobilien
Bewertung: 4,8 von 5 Sternen
Nachricht hinzufĂĽgen
Mit der Nutzung der oben angegebenen Telefonnummer oder durch Klicken auf „Kontaktieren“ akzeptierst Du die Allgemeinen Nutzungsbedingungen, denen Du jederzeit widersprechen kannst. Weitere Informationen zum Datenschutz
Wie zufrieden bist du mit dieser Seite (nicht mit der Immobilie selbst)?