Neunkirchen-Seelscheid - Kotthausen: Große Erdgeschosswohnung mit Terrasse und Garten
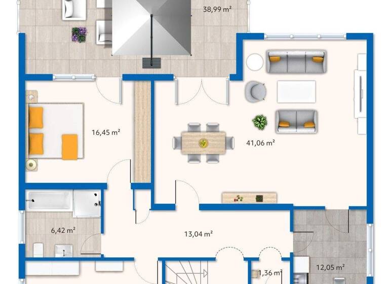
Die Wohnfläche erstreckt sich über ein Wohn- und Esszimmer, zwei Schlafzimmer, eine Küche, ein Tageslichtbadezimmer sowie ein Gäste-WC. Ein Highlight dieser Wohnung ist das großzügige Wohnzimmer mit ca. 41 m² und die angrenzende Terrasse mit ca. 34 m², die im Jahr 2010 auf dem Anbau entstanden ist.
Der Dachboden steht Ihnen als Abstellfläche zur alleinigen Nutzung zur Verfügung. Ein Waschmaschienenstellplatz befindet sich in der Wohnung.
Der Garten vor dem Haus und der Garten angrenzend an die Terrasse steht Ihnen zur alleinigen Nutzung zur Verfügung.
Ein Stellplatz unter dem Carport, welcher im Jahr 2008 entstanden ist, rundet das Platzangebot ab.
Diese großzügige ca. 111 m² große Erdgeschosswohnung befindet sich in einem Zweifamilienhaus, welches im Jahr 1973 errichtet wurde.
Die Wand bzw. der Schrank zwischen Küche und Wohn- bzw. Esszimmer kann bei Bedarf entfernt werden und bietet so die Möglichkeit einer offenen Küche.
Merkmale
Bezug: sofort
Kelleranteil
Carport
Terrasse
Das Badezimmer wurde im Jahr 2017/2018 modernisiert und verfügt nun über eine barrierefreie Dusche, eine Badewanne, ein WC, ein Waschtisch sowie über zeitlose und großformatige Fliesen.
Die Beheizung erfolgt über eine Gaszentralheizung aus dem Jahr 2019. Hierüber erfolgt zudem die Warmwasseraufbereitung.
Das Fenster im Badezimmer und im Gästezimmer sind in diesem Zuge ebenfalls erneuert worden. Die übrigen Fenster sind Holzfenster mit Doppelverglasung aus dem Baujahr.
Grundrisse
Grundrisse
1 / 1
Realisiere Dein Projekt
Bausubstanz und Energie
Energieausweis
D
Baujahr1973
Zustand der ImmobilieGepflegt
HeizungsartZentralheizung
EnergieträgerGas
Preisdetails
Kaufpreis
219000 €219.000 €
1.972,97 €/m²
Provision für Käufer
3,57 % inklusive gesetzlicher MwSt. inkl. MwSt.
Weitere Preisinformationen
1 Carportplatz
Geschätzte Gesamtkosten
245.433 €1
Kaufpreis
219.000 €
Kaufnebenkosten
26.433 €
2
Notarkosten (1,5%)
3.285 €
Grunderwerbsteuer (6,5%)
14.235 €
Provision für Käufer (3,57%)
7.818 €
Grundbucheintrag (0,5%)
1.095 €
1Der angezeigte Wert ist eine automatisch berechnete Schätzung von immowelt.
2Bei den Angaben handelt es sich um ortsübliche Werte. Individuelle Kosten können abweichen.
Lage
Seelscheid, Neunkirchen-Seelscheid (53819)
Der Anbieter hat die genaue Adresse nicht freigegeben
Die Immobilie befindet sich in Neunkirchen-Seelscheid, einer Gemeinde im Rhein-Sieg-Kreis in Nordrhein-Westfalen. Die Anbindung an den öffentlichen Nahverkehr ist gut ausgebaut. In 10 Gehminuten erreichen Sie Bushaltestellen, die Verbindungen zu den umliegenden Städten oder Gemeinden wie Siegburg und Much bieten.
In der Nähe befinden sich alle wichtigen Einrichtungen des täglichen Bedarfs. Supermärkte, Bäckereien und Apotheken sind ebenso gut erreichbar wie Schulen und Kindergärten. Darüber hinaus bietet Neunkirchen-Seelscheid diverse Freizeitmöglichkeiten wie Sportvereine, Wanderwege und kulturelle Veranstaltungen, die das Leben in der Gemeinde besonders lebenswert machen.
Die waldreiche Umgebung und die Nähe zum Naturschutzgebiet Wahnbachtal laden zu Spaziergängen und Radtouren ein. Die landschaftlich reizvolle Region bietet zudem zahlreiche Möglichkeiten für Naturfreunde und Erholungssuchende.
Weitere Informationen
Stichworte
Anzahl der Schlafzimmer: 2, Anzahl der Badezimmer: 1, Anzahl der separaten WCs: 1, Anzahl Terrassen: 1