Version: 8.24.0Navigation überspringen
VON POLL IMMOBILIEN Rostock - BS Norddeutsche Immobilien GmbH
21,40 €
2 Zimmer  •  60 m² Bürofläche

Bürofläche zur Miete
21,40 €
/m²
2 Zimmer  •  60 m² Bürofläche

WARNEMÜNDE I ERSTBEZUG NACH MODERNISIERUNG BÜRO-PRAXIS-LADENFLÄCHE IN BESTER LAGE

Multifunktionale Gewerbefläche mit großer, zu öffnender Fensterfront im Herzen Warnemündes, gelegen im Erdgeschoss eines stilvollen, maritimen Wohn- und Geschäftshauses.

Frisch modernisiert, in bester Lage und ansprechender Größe bietet diese interessante Fläche vielfältigen Nutzungsmöglichkeiten (Ausschluss Gastronomie) in einem äußerst gepflegten und ansprechenden Umfeld.
Es erwartet Sie eine Ihren Bedürfnissen angepasste, vielfältig nutzbare Gewerbefläche mit Potenzial, bei Sie Ihre Gestaltungswünsche noch einbringen können!
Absolut einladend und flächenerweiternd lässt sich die gesamte Straßenfront des vorderen Verandabereichs öffnen.
Die Gewerbefläche ist über einen eigenen, separaten Haupteingang begehbar und wird praktisch ergänzt über einen Nebeneingang im hinteren Teil.
Perfekt ausgestattet über ein WC mit Fenster und wenn gewünscht eine Dusche sowie eine Pantryküche. Ein zusätzliche kleine Lagerfläche ist im Bedarfsfall abstimmbar.
Das Wohn- und Geschäftshaus wartet im Erdgeschoss mit gesamt zwei Gewerbeflächen und in den Obergeschossen mit 4 Eigentumswohnungen auf, die größtenteils als Ferienwohnungen genutzt werden.

Sehr gern stellen wir Ihnen die Gewerbefläche vollumfänglich vor. Wir freuen uns auf Ihre Konatktaufnahme.

Merkmale

  • Kelleranteil
  • Bodenbelag: Fliesen
- NEU MODERNISIERT

- EBENERDIGE, WERBEWIRKSAME GEWERBEFLÄCHEN

- 55 m² VERKAUS- bzw. LADENFLÄCHE

- ZU ÖFFNENDE FRONTFLÄCHE

- SÄMTLICHE MEDIEN VORHANDEN

- ZENTRALE LAGE

- BELEBTER STRAßENZUG

- UNMITTELBAR AM KIRCHENPLATZ UND KURPARK GELEGEN

- 400 m ZUR PROMENADE UND STRAND

- GEPFLEGTES WOHN- UND GESCHÄFTSHAUS

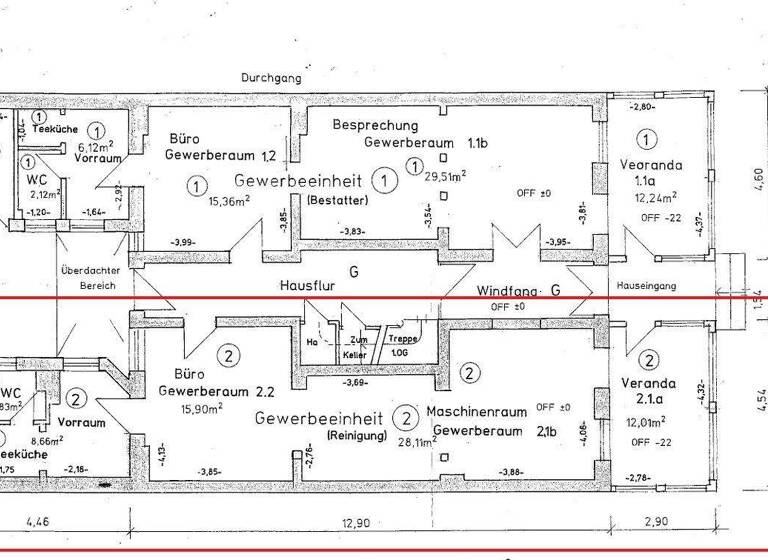
Grundrisse

Grundrisse
1 / 1

Realisiere Dein Projekt

Bausubstanz und Energie

Energieausweis

Endenergieverbrauch (Wärme)

  • Baujahr1930
  • Zustand der ImmobilieMassivhaus, Gepflegt
  • HeizungsartZentralheizung
  • EnergieträgerGas

Mietkosten

Nettomiete
21,40 €/m²
1.500 €
Nebenkosten
250 €
Provision für Mieter
Mieterprovision beträgt das 2-fache (inkl. gesetzlicher MwSt.) der vereinbarten Monatsmiete
Kaution
3000 €

Lage

address-icon
Seebad WarnemündeRostock / Warnemünde (18119)
Der Anbieter hat die genaue Adresse nicht freigegeben
In Warnemünde erwartet Sie einzigartiges maritimes Flair. Das Ostseebad bezaubert durch den historischen Ortskern, die zahlreichen, hervorragend sanierten und verträumten Straßenzüge, die typischen Kapitänshäuser und dem feinsandigen, kilometerlangen Ostseestrand direkt vor der Tür.

Neben der architektonischen Schönheit werden Sie wahrscheinlich die auslaufenden Fischkutter, Segler und Ausflugsschiffe in Ihren Bann ziehen. In unmittelbarer Nähe legen bekannte Kreuzfahrtschiffe und Luxusliner an, für die Warnemünde mittlerweile ein wichtiger Hafen geworden ist.

Der liebenswerte Charme Warnemündes, ein interessantes kulturelles Angebot sowie vielfältige Freizeit- und Shoppingmöglichkeiten laden zu einem Besuch ein.
Die bekannten Einkaufsstraßen u.a. die Mühlenstraße, der Kirchenplatz und der "Alte Strom", alle jeweils mit individuellen und feinen Geschäften gespickt, laden zu einem Bummel ein und sind in wenigen Fußminuten erreichbar. Dennoch müssen Sie nicht auf die Nähe der Hansestadt Rostock, dem wirtschaftlichen Herzen, verzichten. In nur 15 Fahrminuten erreichen Sie die Hansestadt Rostock. Sie ist das stetig wachsende Zentrum der Region.

Für Touristen und Urlauber insbesondere Familien und Paare ist Warnemünde perfekt. Der Ort ist aufgrund der Größe gemütlich, die Wege zu Einkaufsmöglichkeiten, dem Ostseestrand und zu öffentlichen Verkehrsmitteln sind kurz und leicht zu Fuß oder mit dem Fahrrad zu absolvieren! Darüber hinaus ist Warnemünde sehr gut an das Bahnnetz und den öffentlichen Nahverkehr angeschlossen. Das Ostseebad ist bei Urlaubern und Touristen sehr beliebt und deshalb stark nachgefragt und über die Saison hinaus hoch frequentiert.

Auch die umliegende Region hat sehr viel zu bieten. Natur- und Sportliebhaber kommen vollends auf Ihre Kosten. Tennis spielen, Reiten, Golfen und sämtliche Wassersportarten u.a. Segeln, hier ist alles möglich und in hoher Qualität vorhanden. Zudem bietet das 5* Hotel Neptun und das in unmittelbarer Nachbarschaft gelegene 5* Resort - die "Yachthafenresidenz" einen preisgekrönten SPA mit Wellness, Beauty und Genuss pur.
Freuen Sie sich auf den herrlich breiten Sandstrand, der sich von Markgrafenheide bis nach Diedrichshagen erstreckt. Zum unvergleichlichen Warnemünder Charme gehört die uralte Dorfstraße "Am Strom" ebenso, wie die eleganten weißen Villen und Hotels in typischer Bäderarchitektur an der Promenade. Rostock und Warnemünde vereint das Flair einer Hansestadt, die Eleganz der Seebäder und die mondäne Yacht- und Wellnesskultur harmonisch. Auf dem weit ausgedehnten Rad- und Wanderwegenetz können Sie das großzügige Waldgebiet der Rostocker Heide erkunden.

Öffentliche Verkehrsmittel befinden sich ebenso wie Einkaufsmöglichkeiten, Schule, Kindergärten, Ärzte und Apotheken fußläufig in unmittelbarer Nähe. Den feinen Sandstrand von Warnemünde erreichen Sie innerhalb weniger Gehminuten.

Weitere Informationen

Stichworte Nutzfläche: 70,00 m², Gesamtfläche: 70,00 m², vermietbare Fläche: 70,00 m², Ladenfläche: 60,00 m², Verkaufsfläche: 60,00 m², Anzahl der Badezimmer: 1, Bundesland: Mecklenburg-Vorpommern, 3 Etagen, Distanz zur nächsten Einkaufsmöglichkeit: 0.10, Distanz zum Hauptbahnhof: 0.20, Distanz zum Bus: 0.05

Weitere Services

Lust auf eine Besichtigung?
Eine Frage zur Immobilie?
Nachricht hinzufügen
Mit der Nutzung der oben angegebenen Telefonnummer oder durch Klicken auf „Kontaktieren“ akzeptierst Du die Allgemeinen Nutzungsbedingungen, denen Du jederzeit widersprechen kannst. Weitere Informationen zum Datenschutz

Über den Anbieter

Fährstraße 18a, 18147 Rostock
partner badge
Partnerschaft
Frau Corinne BriesemeisterDein Kontakt
Online-ID: 2ngdm5a
Referenznummer: 26 092 006
VON POLL IMMOBILIEN Rostock - BS Norddeutsche Immobilien GmbH
VON POLL IMMOBILIEN Rostock - BS Norddeutsche Immobilien GmbH
Nachricht hinzufügen
Mit der Nutzung der oben angegebenen Telefonnummer oder durch Klicken auf „Kontaktieren“ akzeptierst Du die Allgemeinen Nutzungsbedingungen, denen Du jederzeit widersprechen kannst. Weitere Informationen zum Datenschutz
Wie zufrieden bist du mit dieser Seite (nicht mit der Immobilie selbst)?