

Viktor Klapper GmbH
Frau Vanessa Mehlsteibl
087 ···
Nr. anzeigenPreise & Kosten
zzgl. Nebenkosten
Kaution
2 Kaltmieten
Warum sehe ich diese Anzeige? – Du siehst diese Anzeige basierend auf Ihrer Navigation auf unserer Website und den Suchkriterien, die du verwendet hast.
Lage
Die Wohnanlage befindet sich in einem Neubaugebiet von Feichten an der Alz – in Mankham. Feichten an der Alz ist eine Gemeinde im oberbayerischen Landkreis Altötting und liegt nur gute 15 Minuten Autofahrt vom Chiemsee oder der österreichischen Grenze entfernt. In den Bergen ist man in ca. einer halben Stunde...
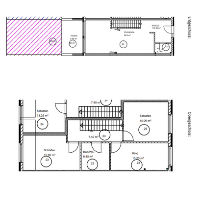
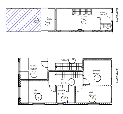
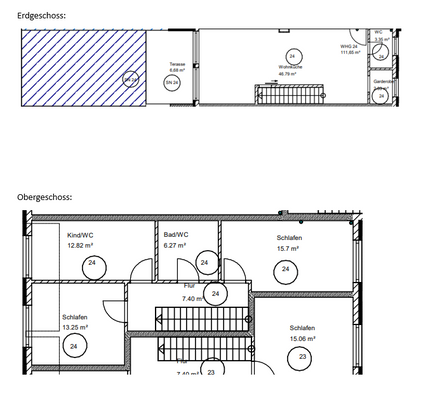
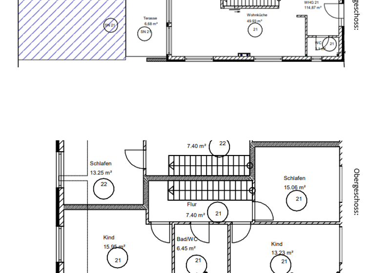
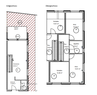
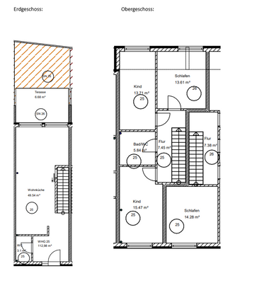
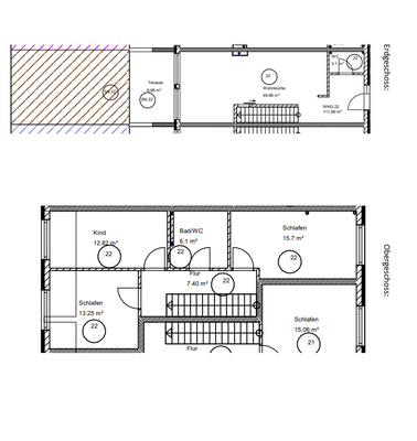
Die Wohnung
Kategorie
Maisonette
Wohnungslage
Erdgeschoss
Bezug
01.04.2026
Wohnanlage
Energie & Heizung
Warum sehe ich diese Anzeige? – Du siehst diese Anzeige basierend auf Ihrer Navigation auf unserer Website und den Suchkriterien, die du verwendet hast.
Energieausweistyp
Bedarfsausweis
Gebäudetyp
Wohngebäude
Baujahr laut Energieausweis
2024
Wesentliche Energieträger
Heizwerk, regenerativ
Gültigkeit
16.09.2024 bis 15.09.2034
Effizienzklasse
A
Endenergiebedarf
39,00 kWh/(m²·a)
Weitere Energiedaten
Energieträger
Fernwärme
Haustyp
KfW 55
Heizungsart
Fußbodenheizung, Zentralheizung
Details
Objektbeschreibung
In Mankham - Feichten an der Alz entsteht eine moderne Wohnanlage mit insgesamt 40 hochwertig ausgestatteten Wohnungen, aufgeteilt in zwei identische Baukörper (jeweils 20 Wohnungen). Die Architektur verbindet zeitloses Design mit durchdachter Funktionalität und schafft ein wohltuendes zu Hause für Familien, Paare und Singles...
Ausstattung
Alle Maisonette Wohnungen beinhalten einen Gartenanteil und bieten optimalen Raum für Ihre Familie.
Die Maisonette-Wohnungen sind wie folgt aufgeteilt:
Erdgeschoss
- Großzügiger Eingangsbereich
- Gäste-WC mit Fenster
- Wohn-Essbereich inkl. neu- und hochwertiger Einbauküche
- Zugang zur großzügigen...
Weitere Informationen
Sonstiges
Wir bitten um Verständnis, dass Besichtigungstermine erst ab Januar 2026 stattfinden.
Zentrale Huldsessen
Mitterweg 14, Huldsessen
84339 Unterdietfurt
Tel.: 08721/1264 0
Fax: 08721/7260
Filiale Frontenhausen
Bahnhofstraße 74 c
84160 Frontenhausen
Tel.: 08732/9373 858
Fax...
Dokumente
Anbieter der Immobilie

Online-ID: 2mmnq5r
Referenznummer: WHG 21-16
Finde Angebote wie dieses
Hier geht es zu unserem Impressum, den Allgemeinen Geschäftsbedingungen, den Hinweisen zum Datenschutz und nutzungsbasierter Online-Werbung.