




Laden zum Kauf
Ihr zentraler Firmenstandort im vorderen Bregenzerwald
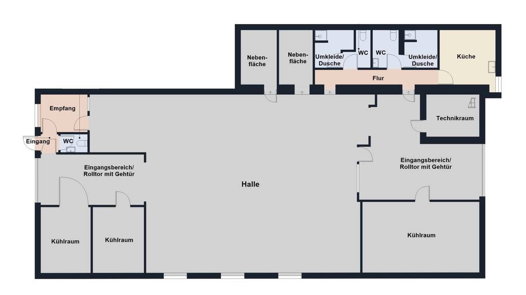
Grundrisse
Verschaffe dir einen genauen Überblick über die Raumaufteilung.

Virtueller Rundgang
3D tour

Realisiere Dein Projekt
Bausubstanz und Energie
Heizwärmebedarf (HWB)
G
Gesamtenergieeffizienz (fGEE)
- Baujahr1961
- EnergieträgerGas
Preisdetails
Provision für Käufer
3%
Weitere Preisinformationen
Auf Anfrage
Lage

Unterkrumbach 209, Krumbach (6942)
Weitere Informationen
Weitere Services
Lust auf eine Besichtigung?
Eine Frage zur Immobilie?
Über den Anbieter
Bundesstraße 87, 6923 Lauterach
Partnerschaft

Herr Reinhard GötzeDein Kontakt
Online-ID: 234FVYQAHKQC
Referenznummer: 5206
Wie zufrieden bist du mit dieser Seite (nicht mit der Immobilie selbst)?




