Ladenfläche zur Miete • provisionsfreiMietkosten auf Anfrage326 m² Verkaufsfläche
Mietkosten auf Anfrage
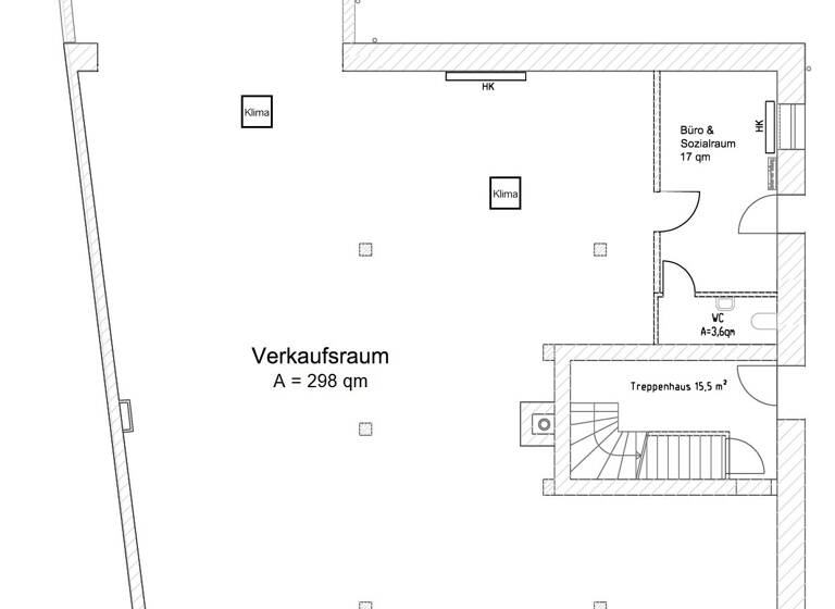
326 m² Verkaufsfläche
Schöne repräsentative Ladeneinheit im Herzen von Moosburg
Merkmale
- Bezug: nach Absprache
- Teeküche
- Außen-Stellplatz
- Bodenbelag: Kunststoff
- Fenster: Sonnenschutz
Grundrisse
Grundrisse
1 / 1
Bausubstanz und Energie
Energieausweis
- Baujahr2001
- Zustand der ImmobilieGepflegt
- HeizungsartZentralheizung
- EnergieträgerGas
Mietkosten
Miete auf Anfrage
Provision für Mieter
provisionsfrei
Kaution
keine Angabe
Lage

Herrenstr. 6, Moosburg (85368)
Weitere Informationen
Weitere Services
Lust auf eine Besichtigung?
Eine Frage zur Immobilie?
Über den Anbieter
Fraunhoferstr. 2, 84137 Vilsbiburg
6 Jahre Partnerschaft
Firma Balk GruppeDein Kontakt
Weitere Unterlagen
Online-ID: 24NXR7IAGTJ9
Wie zufrieden bist du mit dieser Seite (nicht mit der Immobilie selbst)?
