BUNGALOW MIT HIGH-END-AUSSTATTUNG Design in zentraler Lage - 3385 Prinzersdorf
ARCHITEKTEN-BUNGALOW MIT HIGH-END-AUSSTATTUNG 3385 Prinzersdorf | Fertigstellung 2026
Dieses Haus wurde ursprünglich **für unsere Familie geplant und gebaut** und ausschließlich mit **hochwertigen Materialien** realisiert. Aufgrund einer **familiären Veränderung müssen wir es leider verkaufen**.
Bei jeder Besichtigung erhalten Sie einen **USB-Stick mit kompletter Baudokumentation** (Aushub bis Fertigstellung) - ideal zur Prüfung durch Baumeister oder Sachverständige.
---
?? **Kaufpreis: 580.000 €**
* ca. **57.000 € WBF übernehmbar**
Grundstück: 733 m² Baurecht (90 Jahre) Baurechtszins: ca. 230 €/Monat
---
?? **Wohnkonzept**
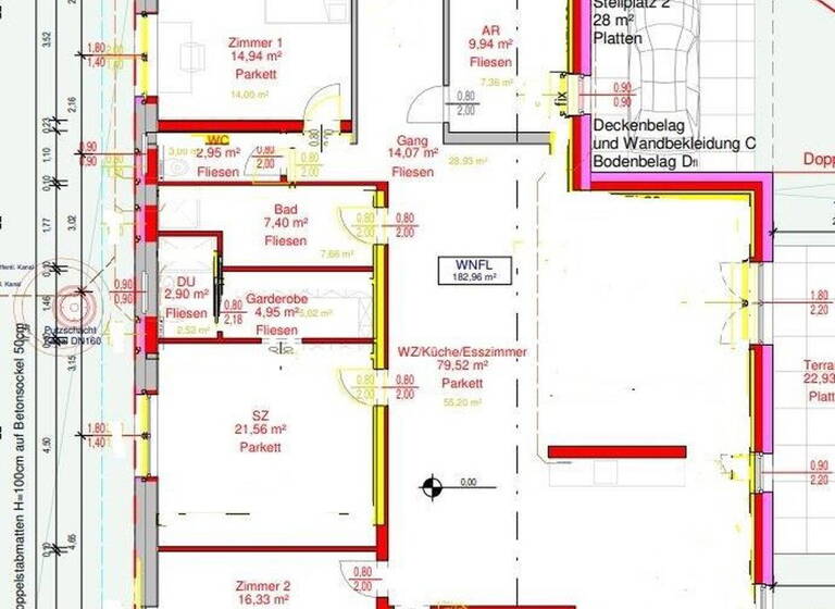
Highlight ist der ca. **100 m² große offene Wohn-, Ess- und Küchenbereich** mit direktem Zugang zu Terrasse und Garten - modern, hell und großzügig.
* Alu Pure Carbon Level * ESG-Glas "African Mystery Matt" * Fingerprint * Luxor Spectra Griff mit Beleuchtung * Ambientebeleuchtung
---
?? **Technik & Ausstattung**
* Luftwärmepumpe * Fußbodenheizung * Raumthermostate (Smartphone steuerbar) * KWL (450 m³/h) * Raffstores + elektrische Rollläden * Video-Gegensprechanlage + Außenkamera * SAT + LAN in allen Räumen * Netzwerkschrank im Technikraum * **A1 Glasfaser (250-1000 Mbit/s vorbereitet)**
---
?? **Extras**
* Rollläden mit **Insektenschutz (Rollo)** in Schlaf-, Kinder- & Arbeitszimmer * **Kaminanschluss vorbereitet** * 2 Terrassen * Platz für Gartenhaus
---
?? **Innenzustand**
* komplett weiß ausgemalt * belagsfertig
? **Bodenbeläge (Fliesen/Holz) im Preis enthalten** ? Auswahl & Verlegung nach Wunsch des Käufers
---
?? **Lage**
* ruhig & zentral in Prinzersdorf * **SPAR, BILLA, PENNY fußläufig (~5 Min.)** * St. Pölten ca. 7 km * Bahnhof, Schule, Kindergarten, Bank in der Nähe * schnelle Anbindung an B1 & A1
---
?? **Hinweis**
Privatverkauf - **keine Makler erwünscht**
---
? **Highlights**
? ca. 100 m² Wohnbereich ? Premium-Bauweise (kein Verkaufsbau) ? Glasfaser + Netzwerk im ganzen Haus ? komplette Baudokumentation ? individuelle Fertigstellung möglich ? Top Lage + Infrastruktur
---
**Besichtigung nach Vereinbarung möglich.**
Merkmale
Bezug: sofort
733 m² Grundstück
Grundrisse
Grundrisse
1 / 2
Realisiere Dein Projekt
Bausubstanz und Energie
Möchtest du Details zum Energieverbrauch?
Baujahr2026
Zustand der ImmobilieErstbezug
HeizungsartFußbodenheizung
Preisdetails
Kaufpreis
580000 €580.000 €
3.169,40 €/m²
Provision für Käufer
provisionsfrei; keine Provision, courtagefrei
Lage
Edelauerstraße 12, Prinzersdorf (3385)
Weitere Informationen
Sonstiges
Heizungsart: Fußbodenheizung Energieausweis nicht vorhanden
Makleranfragen nicht erwünscht.
ohne-makler (OM) ist weder Anbieter noch Vermittler der Immobilie. OM betreibt eine Plattform für Immobilieneigentümer, die unter anderem die gleichzeitige Veröffentlichung einzelner Inserate auf mehreren Immobilienportalen ermöglicht. Die Inhalte dieser Inserate werden ausschließlich von Dritten verantwortet. Für die Richtigkeit, Vollständigkeit oder Rechtmäßigkeit der Angaben übernimmt OM keine Haftung. Hinweise auf mögliche Rechtsverstöße können jederzeit gemeldet werden und werden nach Prüfung umgehend bearbeitet.
Stichworte
Bundesland: Niederösterreich