Zur Vermietung bietet sich eine vielseitig nutzbare Gewerbefläche in der Passauer Fußgängerzone. Dank ihrer flexiblen Aufteilung eignet sich die Fläche für unterschiedlichste Branchen - ob Verkauf, Dienstleistung, Kreativwirtschaft oder beratende Tätigkeiten.
Der Eingangsbereich ist mit einer automatischen Schiebetür ausgestattet und sorgt für einen barrierefreien Zugang. Der Innenbereich ist offen gestaltet, der eine effiziente Nutzung ermöglicht. Im Untergeschoss stehen zusätzliche Lagermöglichkeiten zur Verfügung.
Die Lage überzeugt durch ihre hohe Frequenz. Direkt an den Parkplätzen der Schanzelbrücke gelegen, profitieren Mieter und Kunden gleichermaßen von einer hervorragenden Erreichbarkeit und einer gut frequentierten Umgebung.
Merkmale
Bezug: nach Vereinbarung
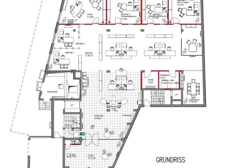
Erdgeschoss
Personenaufzug
Bodenbelag: Laminat
5 m Schaufensterfront
- hochwertige Bürodeckenleuchten - schöne Terrasse zum Innenhof - EDV-Verkabelung - Natursteinbeläge in den Fluren - Glasschiebetüren - getrennte Toiletten für Damen und Herren - eigener Serverraum - Personenaufzug - sofortiger Bezug - lebendiges Umfeld in der Fußgängerzone - attraktives Gebäude - lichtdurchflutete Mietflächen - sehr wirtschaftlicher Grundriss - ausgezeichnetes Preis-Leistungs-Verhältnis
Grundrisse
Grundrisse
1 / 2
Bausubstanz und Energie
HeizungsartZentralheizung
EnergieträgerGas
Mietkosten
Warmmiete
8.800 €
Nettomiete
13,28 €/m²
7.700 €
Nebenkosten
1.100 €
Heizkosten
in Warmmiete enthalten
Provision für Mieter
2,38 Monatsmieten (inkl. 19% MwSt.) inkl. MwSt.
Kaution
keine Angabe
Lage
Haidenhof-Nord, Passau (94032)
Der Anbieter hat die genaue Adresse nicht freigegeben
Absolut zentrale Lage in der Fußgängerzone.
An der nahe gelegenen Schanzelbrücke (ca. 500 m) gibt es zahlreiche Parkmöglichkeiten.
Passau ist eine Universitätsstadt in Niederbayern. Die Dreiflüssestadt liegt an der Grenze zu Österreich und ist mit rund 53.000 Einwohnern nach Landshut die zweitgrößte Stadt des Regierungsbezirks.
In Passau sind Sie mit Ärzten, einem Krankenhaus, Banken, Schulen, Kindergärten, Spielplätzen, Einkaufsmöglichkeiten und Apotheken bestens versorgt. Ebenso verfügt die Stadt über eine hervorragende Infrastruktur, wodurch auch die anderen Stadtteile wie Grubweg, Innstadt, Haidenhof, Hacklberg und Hals problemlos zu erreichen sind. In fast jedem Stadtteil ist eine eigene Grundschule vorhanden und alle weiterführenden Schulen sind im Stadtzentrum vorzufinden. Das Angebot an Sport- und Freizeitangeboten ist groß. Die nahegelegenen Wälder und Badeseen bieten an Wochenenden tolle Ausflugsmöglichkeiten. Die malerische Altstadt ist für ihre barocken Gebäude bekannt, darunter den Stephansdom mit seinen charakteristischen Zwiebeltürmen und der berühmten Domorgel. Die bischöfliche Residenz und die Burganlage Feste Oberhaus machen den besonderen Reiz von Passau aus. In der Innenstadt finden sich viele schöne Lokale und gemütliche Cafès.
Weitere Informationen
Sonstiges
** Die hier eingestellten Angaben sind mit größter Sorgfalt recherchiert, erheben jedoch nicht den Anspruch auf Alleingültigkeit und werden lediglich unverbindlich zu Informationszwecken zur Verfügung gestellt.
Alle Angaben sind ohne Gewähr und basieren ausschließlich auf Informationen, die uns von unserem Auftraggeber zur Verfügung gestellt wurden. Wir übernehmen keine Gewähr für die Vollständigkeit, Richtigkeit und Aktualität dieser Angaben.
Aus Diskretionsgründen werden hier keine weiteren Angaben zum Objekt und zur Lage gemacht. Ein ausführliches Expose senden wir Ihnen gerne auf eine vollständig ausgefüllte Anfrage.
Die veröffentlichten Bilder sind Eigentum der Hatz und Team Immobilien GmbH und dürfen nicht weiter vervielfältigt oder anderweitig benutzt werden.
Weitere Angebote finden Sie unter: www.hatz-team.de
Stichworte
Nutzfläche: 580,00 m², Gesamtfläche: 580,00 m², Bürofläche: 450,00 m², Ladenfläche: 450,00 m², Bundesland: Bayern, Zustand nach Vereinbarung
Sonstiges: EDV-Verkabelung