Version: 8.26.0Navigation überspringen
50.000 €
Immowelt logo

Büro zum Kauf
50000 €

Objekt-Nr.: 16524 - vermieteter Laden mit 2 Büros - Büroetage im EG - und 2 Stellplätzen in 1A-Lage im Zentrum von Plauen - Provisionsfrei

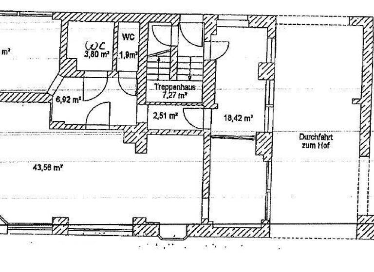
Kurzbeschreibung Objekt-Nr.: 165/24 - Gesamte Büroetage im Erdgeschoss - Fläche 91 m² - Schöner vermieteter Laden mit 2 Büros, 2 WC´s und 2 Stellplätzen in 1A-Lage mitten im Zentrum von Plauen Objekt Provisionsfrei! - - - Die Gewerbeeinheit findet man in einem gepflegten 3-geschossigen ca. 1900 massiv erbauten Wohn- und Geschäftshaus mit ausgebautem Dachgeschoss. Eine umfassende Sanierung des Objektes erfolgte 1997 / 1998. - - - Das Gewerbe befindet sich im Erdgeschoss des Objektes und besteht aus einem großen Verkaufsraum (43,56 m²) mit bodentiefen Fensterelementen (Schaufensterfront), 2 Büroräumen (18,42 m² und 13,94 m² - von einem Büro hat man Zugang zur Terrasse im Hinterhof), Flur (2,51 m² und 6,92 m²) und 2 WC´s (3,80 m² und 1,9 m²). Der Laden ist direkt von der Straße aus zugänglich. Ein weiterer Zugang zum Gewerbe ist über das Treppenhaus möglich (Hauseingang im Hinterhof).

Merkmale

  • vermietet
  • Bodenbelag: Laminat
Laminat, 2 halbhoch geflieste Bäder mit WC und Fenster (in einem Bad zusätzlich mit Pissoir), Außenrollos, Gas-Zentralheizung, Fenster aus Kunststoff-Isolierverglasung, 2 Stellplätze.

Grundrisse

Grundrisse
1 / 1

Bausubstanz und Energie

Möchtest du Details zum Energieverbrauch?info_energy_calculation-icon
  • Baujahr1900
  • Zustand der ImmobilieGepflegt
  • HeizungsartZentralheizung
  • EnergieträgerGas
Immowelt logo

Preisdetails

Kaufpreis
50000 €
Provision für Käufer
Provisionsfrei!
Weitere Preisinformationen

50.000,- EUR FESTPREIS! Provisionsfrei, Ist-Mieteinnahmen pro Jahr: 6.192,00 EUR
Geschätzte Gesamtkosten
50.000 €1
Kaufpreis
50.000 €
1Der angezeigte Wert ist eine automatisch berechnete Schätzung von immowelt.

Lage

address-icon
StadtmittePlauen (08523)
Der Anbieter hat die genaue Adresse nicht freigegeben
Plauen mit ca. 65.000 Einwohnern ist die größte Stadt des Vogtlandes und fünftgrößte Stadt im Freistaat Sachsen. Die Stadt wurde durch die Plauener Spitze bekannt und gilt als architektonisch reizvoll. Das Gewerbe findet man im Zentrum von Plauen in einer bekannten Parallelstraße zur beliebten Einkaufsmeile Bahnhofstraße (Bahnhofsvorstadt). Es liegt inmitten von 3-geschossigen MFH mit überwiegendem Kleingewerbe. Einkaufsmöglichkeiten, Öffentliche Verkehrsmittel, Kindergarten, Schulen sowie Ärzte befinden sich in fußläufiger Umgebung.

Weitere Informationen

Sonstiges Grundstück: Das Grundstück hat eine Größe von 461 m². Der Hinterhof ist per Durchfahrt befahrbar und mit Stellplätzen versehen. Zum hier angebotenen Gewerbe gehört ein Sondernutzungsrecht für 2 Stellplätze. - - - Sonstiges: Die Gewerbeeinheit ist seit 2016 an den jetzigen Mieter vermietet. Die derzeitige mtl. Kaltmiete inklusive der 2 Stellplätze beträgt 516 € (zzgl. 140 € NK / Warmmiete 656 €). Das mtl. Hausgeld beträgt 225,09 €. Kaufpreis = Festpreis (nicht mehr verhandelbar). Provisionsfrei. Besichtigungen sind nach vorheriger Terminabsprache über uns möglich. Weitere Informationen erhalten Sie über uns auf Anfrage. Stichworte Gesamtfläche: 91,05 m², modernisiert: 1998

Weitere Services

Lust auf eine Besichtigung?
Eine Frage zur Immobilie?
Nachricht hinzufügen
Mit der Nutzung der oben angegebenen Telefonnummer oder durch Klicken auf „Kontaktieren“ akzeptierst Du die Allgemeinen Nutzungsbedingungen, denen Du jederzeit widersprechen kannst. Weitere Informationen zum Datenschutz

Über den Anbieter

Gabelsberger Straße 13, 08523 Plauen
Herr Thomas ScottDein Kontakt
Online-ID: 25FN3WILX9HY
Referenznummer: 16524
Wie zufrieden bist du mit dieser Seite (nicht mit der Immobilie selbst)?