Version: 8.24.0Navigation überspringen
9,50 €
927 m² Bürofläche  •  teilbar ab 927 m²
Immowelt logo

Bürofläche zur Miete • provisionsfrei
9,50 €
/m²
927 m² Bürofläche  •  teilbar ab 927 m²

Freistehendes Bürogebäude in Wattenscheid | viele Stellplätze! Repräsentativer Empfangsbereich

Die Büroimmobilie überzeugt durch ihre moderne, funktionale Ausstattung sowie helle, großzügige Fensterfronten, die für eine angenehme Arbeitsatmosphäre sorgen. Ein repräsentativer Empfangsbereich mit Tresen bietet einen professionellen ersten Eindruck. Die Flächen sind barrierefrei erreichbar und ermöglichen damit einen komfortablen Zugang für Mitarbeitende und Besucher. Zahlreiche Stellplätze runden das Angebot ab und gewährleisten eine optimale Erreichbarkeit.

Derzeit stehen folgende Flächen zur Disposition:

EG: ca. 927 m²
1. OG: 923 m²
2. OG: 556 m²

Merkmale

  • Bezug: nach Vereinbarung
  • Speisekammer
  • Personenaufzug
  • 89 Stellplätze: Garage, Außen-Stellplatz
  • Barrierefrei
  • Raumaufteilung flexibel
  • Bodenbelag: Kunststoff
. Bodenbelag: Vinylboden in Holzoptik
. Verkabelungsort: Fensterbankkabelkanäle
. natürliche Be-/ Entlüftung
. Teeküche: voll ausgestattet
. Heizungsart: Gaszentralheizung
. Beleuchtung: Deckenleuchten
. Verkabelung: CAT-5E

Highlights:

. barrierefrei
. Lager-/ Archivflächen
. Empfangsbereich mit Tresen
. viele große Fensterelemente
. Konferenz- & Pausenräume
. getrennte WC-Anlagen
. Windfang

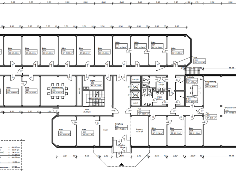
Grundrisse

Grundrisse
1 / 4

Realisiere Dein Projekt

Bausubstanz und Energie

Der Anbieter hat keine Informationen zum Energieverbrauch bereit gestellt.
  • Zustand der ImmobilieGepflegt
  • EnergieträgerGas
Immowelt logo

Mietkosten

Nettomiete
9,50 €/m²
9,50 €
Nebenkosten
6,20 €
Zusätzliche Kosten
Heizkosten
Provision für Mieter
provisionsfrei
Kaution
keine Angabe
Weitere Preisinformationen
Nettokaltmiete: 9,50 EUR

Lage

address-icon
WestenfeldBochum (44867)
Der Anbieter hat die genaue Adresse nicht freigegeben
Die Liegenschaft befindet sich zentral im Stadtteil Wattenscheid, umgeben von Nahversorgung und Dienstleistungen. Eine Bushaltestelle ist in rund 2 Minuten zu Fuß erreichbar, der Hauptbahnhof von Bochum ist in ca. 14 Minuten befahren. Die A40 ist in wenigen Minuten erreichbar und bietet eine schnelle Anbindung in alle Richtungen. Der Flughafen Düsseldorf liegt mit dem Auto rund 25 Minuten entfernt.

Hotels in der Umgebung: Hotel Bochum Wattenscheid - Affiliated by Meliá, Mercure Hotel Bochum City, Four Points Flex by Sheraton

bedeutende Unternehmen der Büromarktzone: Kompernaß Handelsgesellschaft, Wela GmbH, inventos, meeva GmbH

Weitere Informationen

Sonstiges Es gelten ausschließlich unsere AGB (www.ruhr-real.de/agb). Wir möchten Sie darauf hinweisen, dass die Angaben ausschließlich auf den uns vom Eigentümer übermittelten Unterlagen und Informationen basieren. Für Richtigkeit und Vollständigkeit übernehmen wir keine Gewähr. Zwischenvermietung vorbehalten. Stichworte Sonstiges: EDV-Verkabelung

Weitere Services

Lust auf eine Besichtigung?
Eine Frage zur Immobilie?
Nachricht hinzufügen
Mit der Nutzung der oben angegebenen Telefonnummer oder durch Klicken auf „Kontaktieren“ akzeptierst Du die Allgemeinen Nutzungsbedingungen, denen Du jederzeit widersprechen kannst. Weitere Informationen zum Datenschutz

Über den Anbieter

RUHR REAL GmbH
RUHR REAL GmbHMaklerbüro
Holsterhauser Platz 2, 45147 Essen
partner badge
6 Jahre Partnerschaft
Herr Frederic JeschkeDein Kontakt
Online-ID: 2mm3r5g
Referenznummer: 4681/E2
RUHR REAL GmbH
RUHR REAL GmbH
Nachricht hinzufügen
Mit der Nutzung der oben angegebenen Telefonnummer oder durch Klicken auf „Kontaktieren“ akzeptierst Du die Allgemeinen Nutzungsbedingungen, denen Du jederzeit widersprechen kannst. Weitere Informationen zum Datenschutz
Wie zufrieden bist du mit dieser Seite (nicht mit der Immobilie selbst)?