Sie suchen eine großzügige Bürofläche in zentrumsnaher Lage mit sehr guter Ausstattung und Erreichbarkeit? Auf ca. 481 m² Gesamtfläche können Sie Ihre unternehmerischen Pläne in die Tat umsetzen. Die Mietfläche steht Ihnen kurzfristig zur Verfügung.
- sehr gut erreichbare, zentrumsnahe Lage, Nähe Bahnhof - sehr gepflegtes Gebäude mit hohem Wiedererkennungswert - großzügige Büroflächen, lichtdurchflutet, sehr gut ausgestattet, klimatisiert - Genehmigung für Schulungsunternehmen vorhanden, für allgemeine Büronutzungen bestens geeignet
Die Mietfläche befindet sich in einem sehr guten Zustand und kann sofort bezogen werden.
Es besteht die Möglichkeit, den Grundriss neuen Nutzungen anzupassen. Individuelle Innenausstattungen sind ebenfalls möglich. In beiden Fällen wird der Aufwand kalkuliert und über einen Aufschlag auf die Miete abgerechnet.
Merkmale
Bezug: sofort verfügbar
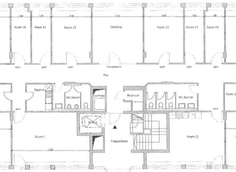
Grundrisse
Grundrisse
1 / 1
Realisiere Dein Projekt
Bausubstanz und Energie
Energieausweis
Endenergiebedarf (Wärme)
Baujahr1993
EnergieträgerFernwärme
Mietkosten
Monatliche Miete
13,90 €/m²
Provision für Mieter
provisionsfrei
Kaution
keine Angabe
Lage
Innenstadt, Rosenheim (83022)
Der Anbieter hat die genaue Adresse nicht freigegeben
Eingebettet in einem der schönsten Winkel des Alpenvorlandes, empfiehlt sich Rosenheim - als wirtschaftliches Zentrum für rund 350.000 Einwohner - seinen Besuchern mit optimalen Verkehrsanbindungen und einem hochwertigen Kultur- und Freizeitangebot zu allen Jahreszeiten.
In der Stadt Rosenheim leben ca. 60.000 Einwohner, der Stadtumlandbereich umfasst ca. 125.000 Einwohner und im gesamten Einzugsbereich (auch Österreich/ Nordtirol) wohnen etwa 350.000 Menschen. Die besondere landschaftliche wie auch wirtschaftliche Attraktivität hat in den letzten Jahren zu einem überdurchschnittlichen Bevölkerungs- und Wirtschaftswachstum geführt.
Zu einer ganzen Fülle von positiven Standortfaktoren gehört die sehr gute Verkehrsinfrastruktur mit Anbindung an europäische Hauptverkehrsachsen über Straße und Schiene und die Nähe der internationalen Flughäfen München und Salzburg sowie das reichhaltige und hochqualifizierte Kulturangebot und der hohe Freizeitwert der Chiemgauer Alpen.
Die Leistungsfähigkeit der heimischen Wirtschaft, der starke Branchenmix und die hohe Kaufkraft des oberbayerischen Raumes sorgen für beste Standortbedingungen.
Der Standort ist von Geschäfts- und Wohnhäusern, der Auerbräu und den Neubauten des Ärztezentrums dominiert. Das Bahnhofsareal mit dem zentralen Busbahnhof, die Bahnhofsstraße mit vielen Geschäften und Restaurants sowie die Fußgängerzone sind in 5 Minuten zu Fuß zu erreichen.
Die Bürofläche befindet sich im 3. Obergeschoss des Hauses.
Weitere Informationen
Nutzung
Bürofläche, Schulungsfläche (Genehmigung vorhanden)
Zusatz/Über Uns
Sie möchten mehr Informationen zu diesem Objekt? Gern übersenden wir Ihnen unverbindlich unser aussagekräftiges Exposé. Ein Email oder Anruf genügt.
Die im Exposé angegebenen Daten beruhen auf Angaben des Eigentümers. Für diese Angaben übernehmen wir keine Gewähr. Der Maklervertrag mit uns kommt entweder durch schriftliche Vereinbarung, oder auch durch die Inanspruchnahme unserer Maklertätigkeit auf der Basis des Objekt Exposés und seiner Bedingungen zustande.
Unsere Beratungsleistung ist erfolgsorientiert und für Sie bis zum Abschluss eines Vertrages freibleibend. Gern stehen wir Ihnen beratend zur Seite. Wir freuen uns auf Ihren Anruf.
Herzlich Willkommen bei Felder, Ihrem Spezialisten für Gewerbeimmobilien in Rosenheim, Traunstein, dem Chiemgau und Oberbayern.
Sie suchen eine Gewerbeimmobilie im Rosenheimer Land, Traunstein, Oberbayern oder dem Chiemgau und möchten sich bei Ihrer Suche auf das Fachwissen und Netzwerk eines starken Partners verlassen können? Sie möchten Ihre Gewerbeimmobilie vermieten oder verkaufen? Sie suchen die passenden Mieter oder Investoren? Dann sollten Sie uns ansprechen und von unserem Bekanntheitsgrad und großem Netzwerk in der Region profitieren.
Wir begleiten Sie vom ersten Kontakt bis zur Unterschrift unter dem Miet- oder Kaufvertrag. Seit über 25 Jahren ist die Firma Felder als der Spezialist für Gewerbeimmobilien im Rosenheimer Immobilienmarkt bekannt. Mehr Immobilien finden Sie auf www.felder-gewerbe.de