Version: 8.25.1Navigation überspringen
ohne-makler.net - Immobilien selbst vermarkten
324.000 €
3 Zimmer  •  76 m²

Wohnung zum Kauf • provisionsfrei
324000 €
4.263 €/m²
3 Zimmer  •  76 m²

Kernsanierte 3-Zimmer Wohnung mit Balkon in ruhiger Lage von Hamburg- Lurup

Zum Verkauf steht eine großzügige 3-Zimmer-Wohnung mit ca. 76 m² Wohnfläche in ruhiger und grüner Lage von Hamburg (Jevenstedter Straße 55). Ein Kellerabteil gehört ebenfalls dazu.
Im Zuge der Renovierung wurden bereits zahlreiche Modernisierungsmaßnahmen durchgeführt:
Neue Elektrik in der gesamten Wohnung
moderner Sicherungskasten nach aktuellem Sicherheitsstandard
LAN-Verka¬belung
viele zusätzliche Steckdosen
neue Bodenbeläge
neue Heizkörper
modernes Raumkonzept mit viel Tageslicht
Die Wohnung wird aktuell fertiggestellt und bietet eine moderne Ausstattung mit zeitgemäßem Wohnkomfort.
Die Wohnung befindet sich in einem gepflegten Mehrfamilienhaus, das in den vergangenen Jahren umfangreich modernisiert wurde.
Aufzug erneuert (ca. 2020)
Dach erneuert und gedämmt (ca. 2017)
Balkonanlage erneuert (ca. 2019)
behindertengerechter Zugang
Die Wohnung wird derzeit umfassend saniert und bietet damit die Möglichkeit eines Erstbezugs nach Modernisierung darzustellen. Anhand der Beispielbilder lässt sich der zukünftige, hochwertige Zustand bereits gut erkennen.
Besonders attraktiv: Die Wohnung kann entweder vollständig fertiggestellt oder im aktuellen Zustand erworben werden, wodurch sich zusätzliche Gestaltungsmöglichkeiten ergeben.
Die Immobilie eignet sich sowohl hervorragend für Eigennutzer, als auch für Kapitalanleger. Eine solide und wertstabile Investition in Hamburg.

Merkmale

  • Bezug: nach Absprache
  • Bodenbelag: Fliesen, Kunststoff
  • Balkon
Balkon, Fliesen, Sonstiges (s. Text)

Bemerkungen:
Die Wohnung wird aktuell fertiggestellt.
Die im Exposé verwendeten Bilder zeigen teilweise Beispielvisualisierungen des fertigen Zustands.
Gerne stellen wir Ihnen weitere Informationen zur Verfügung oder vereinbaren einen Besichtigungstermin.
Die Angaben wurden nach besten Wissen und Gewissen gemacht, keine Haftung wird übernommen.
Sämtliche Unterlagen und Dokumente zur Einsicht stehen bereit.
*Keine Maklercourtage
Makleranfragen unerwünscht! Nach § 7 UWG sind unaufgeforderte Kontaktaufnahmen durch Makler ohne ausdrückliche Einwilligung des Empfängers verboten!

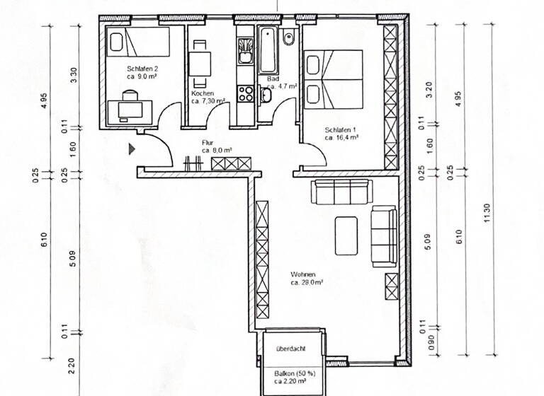
Grundrisse

Grundrisse
1 / 1

Realisiere Dein Projekt

Bausubstanz und Energie

Energieausweis

D
  • Baujahr1971
  • HeizungsartZentralheizung
  • EnergieträgerÖl
MediumRectangleTop

Preisdetails

Kaufpreis
324000 €
4.263,16 €/m²
Hausgeld
549 €
Provision für Käufer
provisionsfrei; keine Provision, courtagefrei
Geschätzte Gesamtkosten
348.300 €1
Kaufpreis
324.000 €
Notarkosten (1,5%)
4.860 €
Grunderwerbsteuer (5,5%)
17.820 €
Grundbucheintrag (0,5%)
1.620 €
1Der angezeigte Wert ist eine automatisch berechnete Schätzung von immowelt.
2Bei den Angaben handelt es sich um ortsübliche Werte. Individuelle Kosten können abweichen.

Lage

address-icon
Jevenstedter Straße 55LurupHamburg (22547)
Die Wohnung befindet sich in der Jevenstedter Straße in Hamburg in einer besonders ruhigen und angenehmen Wohnlage.
Die Umgebung ist geprägt von Einfamilienhäusern, viel Grün und einer ruhigen Nachbarschaft. Gleichzeitig besteht eine gute Anbindung an den öffentlichen Nahverkehr sowie an Einkaufsmöglichkeiten, Schulen und Einrichtungen des täglichen Bedarfs.
Diese Kombination macht die Lage sowohl für Eigennutzer als auch für langfristige Kapitalanlagen besonders attraktiv.
Infrastruktur (im Umkreis von 5 km):
Apotheke, Lebensmittel-Discount, Allgemeinmediziner, Kindergarten, Grundschule, Hauptschule, Realschule, Gymnasium, Gesamtschule, Öffentliche Verkehrsmittel

Weitere Informationen

Sonstiges Heizungsart: Zentralheizung
Energieträger: Öl


Makleranfragen nicht erwünscht. Nach § 7 UWG sind unaufgeforderte Kontaktaufnahmen durch Makler ohne ausdrückliche Einwilligung des Empfängers verboten!

ohne-makler (OM) ist weder Anbieter noch Vermittler der Immobilie. OM betreibt eine Plattform für Immobilieneigentümer, die unter anderem die gleichzeitige Veröffentlichung einzelner Inserate auf mehreren Immobilienportalen ermöglicht. Die Inhalte dieser Inserate werden ausschließlich von Dritten verantwortet. Für die Richtigkeit, Vollständigkeit oder Rechtmäßigkeit der Angaben übernimmt OM keine Haftung. Hinweise auf mögliche Rechtsverstöße können jederzeit gemeldet werden und werden nach Prüfung umgehend bearbeitet. Stichworte Nutzfläche: 7,00 m², Anzahl Balkone: 1, Bundesland: Hamburg

Weitere Services

Lust auf eine Besichtigung?
Eine Frage zur Immobilie?
Nachricht hinzufügen
Mit der Nutzung der oben angegebenen Telefonnummer oder durch Klicken auf „Kontaktieren“ akzeptierst Du die Allgemeinen Nutzungsbedingungen, denen Du jederzeit widersprechen kannst. Weitere Informationen zum Datenschutz

Über den Anbieter

Humboldtstr. 25 A, 21509 Glinde
partner badge
Partnerschaft
Privat von A.ADein Kontakt
Keine Telefonnummer hinterlegt
Keine Telefonnummer hinterlegt
Online-ID: 26G5LGL4GK4B
Referenznummer: 443366
ohne-makler.net - Immobilien selbst vermarkten
ohne-makler.net - Immobilien selbst vermarkten
Nachricht hinzufügen
Mit der Nutzung der oben angegebenen Telefonnummer oder durch Klicken auf „Kontaktieren“ akzeptierst Du die Allgemeinen Nutzungsbedingungen, denen Du jederzeit widersprechen kannst. Weitere Informationen zum Datenschutz
MediumRectangleTop
MediumRectangleBottom
MediumRectangleTop
Wie zufrieden bist du mit dieser Seite (nicht mit der Immobilie selbst)?