Version: 8.24.0Navigation überspringen
Living Fertighaus GmbH - Handelsvertretung Torsten Rohde
389.800 €
5 Zimmer  •  110 m²  •  1.100 m² Grundstück

Bungalow zum Kauf
389800 €
3.544 €/m²
5 Zimmer  •  110 m²  •  1.100 m² Grundstück

Bungalow mit Homeoffice inkl. großem Grundstück

Der Bungalow Solution 110 (Beispielbild) besticht durch seine sehr durchdachte Planung und sein attraktives Erscheinungsbild. Ziehen Sie ein, in ihr neues Einfamilienhaus. Sichern Sie sich den besten Standard und einen tollen Preis. Als Ausbauhaus Plus geplant, können Sie sich bereits jetzt auf ihr neues und schickes Haus freuen. Zahlreiche Gestaltungsmöglichkeiten und Optionen finden Sie bei Livinghaus. Sichern Sie sich bereits für heute einen Energiestandard für die Zukunft. Der angegebene Verkaufspreis bezieht sich auf die Grundoption als Ausbauhaus und ist optional mit vielen weiteren Möglichkeiten erweiterbar.

Gerne berate ich Sie in einem persönlichen Gespräch und zeige Ihnen den Weg in ihr neues Zuhause. Viva la Zuhause!

Gerne beraten wir Sie diesbezüglich.

Bungalow Solution 110
(mehr Informationen auf unserer Website www.livinghaus.de)

Merkmale

  • Bezug: 2026
  • 1.100 m² Grundstück
  • offene Küche
  • Gäste-WC
  • Badezimmer: Badewanne, Bad mit Dusche, Bad mit Fenster
Bestimme, wie groß es sein soll, was für Architektur- und Fassadenbauteile dran sollen und welche der vielen Grundrissvarianten deiner ist. Auch deine Freundin wird euer neues Zuhause lieben - und wenn ihr so weit seid, könnt ihr euren Kindern das wunderbare Zuhause bieten, das sie verdient haben. Auch das wichtige Homeoffice kann geplant werden.

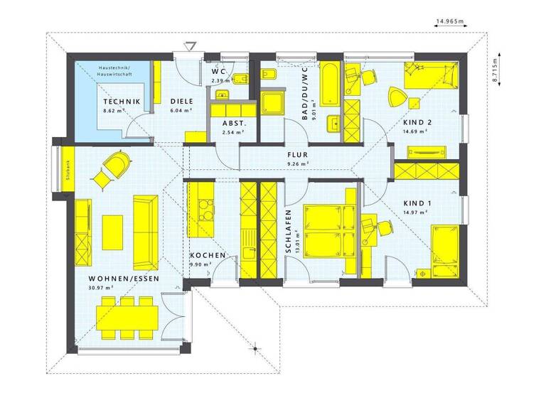
Grundrisse

Grundrisse
1 / 1

Realisiere Dein Projekt

Bausubstanz und Energie

Energieausweis

A+
  • Baujahr2024
  • Zustand der ImmobilieNeubau, Projektiert
  • HaustypKfW 40
  • HeizungsartFußbodenheizung
  • EnergieträgerSolar, Luft-/Wasser-Wärmepumpe

Preisdetails

Kaufpreis
389800 €
3.543,64 €/m²
Provision für Käufer
keine Angaben
Geschätzte Gesamtkosten
431.002 €1
Kaufpreis
389.800 €
Notarkosten (1,5%)
5.847 €
Grunderwerbsteuer (5%)
19.490 €
Provision für Käufer (3,57%)
13.916 €
Grundbucheintrag (0,5%)
1.949 €
1Der angezeigte Wert ist eine automatisch berechnete Schätzung von immowelt.
2Bei den Angaben handelt es sich um ortsübliche Werte. Individuelle Kosten können abweichen.

Lage

address-icon
PlötzWettin-Löbejün (06193)
Der Anbieter hat die genaue Adresse nicht freigegeben
Wettin-Löbejün ist eine Stadt im Saalekreis im deutschen Land Sachsen-Anhalt. Wettin-Löbejün ist die nördlichste Gemeinde und Stadt im Saalekreis, sie liegt ca. 60 Kilometer südlich der Landeshauptstadt Magdeburg und 15 Kilometer nördlich der Großstadt Halle. Nach Dessau sind es in Richtung Nordosten rund 35 Kilometer. Das Gemeindegebiet wird im Südwesten fast durchgehend von der Saale begrenzt, nur ein Landzipfel um Zaschwitz am anderen Saaleufer gehört noch zur Stadt. Im Nordosten begrenzt der westliche Teil der Fuhne das Stadtgebiet. Im Stadtgebiet entspringen auch kleine Bäche, die in Fuhne und Saale abfließen. Die höchste Erhebung im Stadtgebiet ist der 180 Meter über dem Meeresspiegel liegende Haltberg bei Löbejün, die tiefste Stelle liegt im Saaletal bei Rothenburg mit einer Höhe von ca. 68 Meter über dem Meeresspiegel. Teile des Stadtgebietes liegen im Naturpark Unteres Saaletal.

Ortsteile:
Brachwitz (mit Friedrichsschwerz)
Döblitz 162
Domnitz (mit Dornitz und Dalena)
Gimritz (mit Raunitz)
Löbejün (mit Gottgau und Schlettau)
Nauendorf?a
Neutz-Lettewitz (mit Deutleben, Görbitz, Lettewitz und Neutz)
Plötz (mit Oberplötz, Kösseln und Unterplötz)
Rothenburg
Wettin?

Quelle: Wikipedia

Weitere Informationen

Sonstiges Natürlich sind unsere Häuser mit den besten Energiekennwerten der heutigen Zeit ausgestattet. Gerne berate ich Sie auch hier über die vielen Möglichkeiten und auch, wie wir gemeinsam dadurch unseren Planeten schützen können. Die Erfüllung der Anforderungen für ein Zertifikat der Deutschen Gesellschaft für nachhaltiges Bauen (DGNB) ist für uns ein Lebensauftrag! Für Sie und uns alle wollen wir unsere Welt besser machen! Der Preis versteht sich inklusive Grundstück zzgl. Baunebenkosten.

Anbietervergleich Checkliste - https://www.livinghaus.de/fileadmin/user_upload/img/Hausbauen/Checkliste/living-haus-checkliste.pdf Stichworte Nutzfläche: 110,00 m², Anzahl der Schlafzimmer: 1, Anzahl der Badezimmer: 2, 2 Etagen, Lage im Wohngebiet Energiestandard: Niedrigenergie, KFW55

Weitere Services

Lust auf eine Besichtigung?
Eine Frage zur Immobilie?
Nachricht hinzufügen
Mit der Nutzung der oben angegebenen Telefonnummer oder durch Klicken auf „Kontaktieren“ akzeptierst Du die Allgemeinen Nutzungsbedingungen, denen Du jederzeit widersprechen kannst. Weitere Informationen zum Datenschutz

Über den Anbieter

Breiter Weg 213b, 39104 Magdeburg
partner badge
Partnerschaft
Herr Torsten Rohde
Herr Torsten RohdeDein Kontakt
Online-ID: 2n7ja5p
Referenznummer: 30332-25202
Living Fertighaus GmbH - Handelsvertretung Torsten Rohde
title
Living Fertighaus GmbH - Handelsvertretung Torsten Rohde
Nachricht hinzufügen
Mit der Nutzung der oben angegebenen Telefonnummer oder durch Klicken auf „Kontaktieren“ akzeptierst Du die Allgemeinen Nutzungsbedingungen, denen Du jederzeit widersprechen kannst. Weitere Informationen zum Datenschutz
Wie zufrieden bist du mit dieser Seite (nicht mit der Immobilie selbst)?