Version: 8.22.4Navigation überspringen
10 €
28 Zimmer
Immowelt logo

Büro zur Miete
10 Euro pro Quadratmeter
28 Zimmer

repräsentative, großzügige 1.195 m² Gewerbe-/ Bürofläche in der Stiegergasse!

Werte InteressentInnen!

Um den Prozess der Terminvereinbarung zu vereinfachen, freuen wir uns über Ihre Kontaktaufnahme über das Inserat mit konkreten Terminvorschlägen zur vereinfachten Abstimmung.

Herzlichen Dank!

*************************************

DIE LIEGENSCHAFT.

Die großzügigen und repräsentativen Flächen des ehemaligen Vienna Konservatorium, welches als Musikschule gegründet wurde, steht ab sofort einem neuen Mieter zur Verfügung. Die angebotene Liegenschaft verfügt über insgesamt rund 1.195 m² Nutzfläche, welche sich über ein Erdgeschosslokal, ein Zwischengeschoss und das erste Obergeschoss erstrecken. Zudem befindet sich im Innenhof ein Hofhaus, mit zwei Zimmern, welches zusätzlich zur Verfügung steht. Die jeweiligen Geschosse sind separat bzw. getrennt begehbar. 

Alles auf einen Blick:

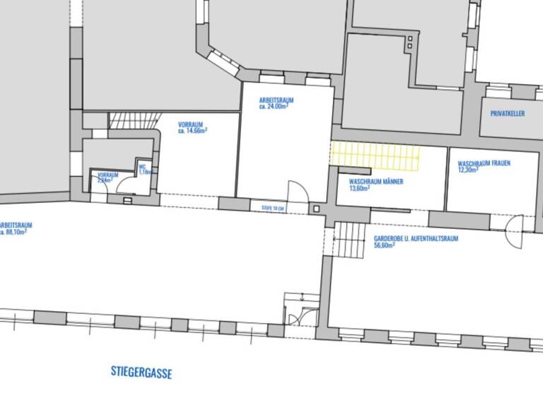
Erdgeschoss:

* rund 211 m² 
* 2 große Räume 
* 4 kleine Räume 
* 1 WC
* Herstellung eine Verbindung zum Zwischengeschoss möglich

Zwischengeschoss:

* rund 511 m² 
* kann über eine Stiege (außen gelegen) im Innenhof separat begangen werden
* 2 Ballettsäle
* 1 Probebühne 
* 3 große Aufenthaltsräume 
* 3 kleine Proberäume 
* WC Anlagen 
* Garderoben 

1. Obergeschoss:

* rund 473 m²
* das erste Obergeschoss ist mit einer Treppe zum Zwischengeschoss verbunden 
* großer Empfangsbereich
* 16 Zimmer, die zuvor als Musikzimmer genutzt wurden 
* Diese können ideal als Büroräume genutzt werden 
* Durchschnittlich etwa 25 m² pro Raum
* 5 WC Anlagen 

Das erste Obergeschoss und das Zwischengeschoss hängen an einer gemeinsamen Heizanlage. Das Erdgeschosslokal verfügt über ein eigenes Heizsystem.

DIE LAGE.

Die Liegenschaft befindet sich in der Stiegergasse nahe der Sechshauser Straße im 15. Wiener Gemeindebezirk. Das Haus sticht durch seine optimale Lage mit guter Verkehrsanbindung, einer großen Auswahl unterschiedlicher Lokale und anderweitigen Geschäften heraus. In nur wenigen Minuten erreichen Sie zudem die U-Bahn Station Längenfeldgasse in der die beiden U-Bahn-Linien U4 und U6 halten. Auch die Autobuslinien 12A und 57A halten in der unmittelbaren Nähe des Objektes. Zudem finden sich in der näheren Umgebung der Wohnung verschiedenste Einkaufsmöglichkeiten, Ärzte, Apotheken und Bankinstitutionen.

**********************************

Sollten Sie Fragen haben oder eine Besichtigung wünschen, freuen wir uns sehr über Ihre Kontaktaufnahme unter ps@sulek.immobilien oder unter +43 660 199 19 88.

Noch nichts gefunden? Wir informieren Sie über geeignete Immobilienangebote noch vor allen anderen.
Legen Sie jetzt Ihren individuellen Suchagenten unter folgendem Link an. Wir schicken Ihnen passende Immobilien exklusiv vorab zu.
Suchagent anlegen [https://sulek-immobilien.service.immo/registrieren/de] - https://sulek-immobilien.service.immo/registrieren/de

Wir weisen darauf hin, dass zwischen dem Vermittler und dem zu vermittelnden Dritten ein familiäres oder wirtschaftliches Naheverhältnis besteht.

Der Vermittler ist als Doppelmakler tätig.

Infrastruktur / Entfernungen

Gesundheit
Arzt <250m
Apotheke <250m
Klinik <250m
Krankenhaus <1.250m

Kinder & Schulen
Schule <250m
Kindergarten <250m
Universität <250m
Höhere Schule <1.250m

Nahversorgung
Supermarkt <250m
Bäckerei <500m
Einkaufszentrum <750m

Sonstige
Geldautomat <750m
Bank <750m
Post <750m
Polizei <250m

Verkehr
Bus <250m
U-Bahn <500m
Straßenbahn <500m
Bahnhof <500m
Autobahnanschluss <3.500m

Angaben Entfernung Luftlinie / Quelle: OpenStreetMap

Merkmale

  • Bezug: nach Vereinbarung
  • Personenaufzug
  • Bodenbelag: Fliesen, Parkett, Teppich

Grundrisse

Grundrisse
1 / 2

Realisiere Dein Projekt

Bausubstanz und Energie

Heizwärmebedarf (HWB)

C

Gesamtenergieeffizienz (fGEE)

D
  • Baujahr1878
  • Zustand der ImmobilieAltbau (bis 1945)
Immowelt logo

Mietkosten

Nettokaltmiete
10 €/m²
11.950 €
Betriebskosten
1.804,45 €
Provision für Mieter
3 Bruttomonatsmieten zzgl. 20% USt.
Kaution
3 Bruttomonatsmieten
Weitere Preisinformationen
Nettokaltmiete: 11.950,00 EUR

Lage

address-icon
StiegergasseWien (1150)
Stiegergasse, Sechshauserpark; U4+U6 Längenfeldgasse

Weitere Informationen

Stichworte Nutzfläche: 1.195,00 m², Bundesland: Wien

Weitere Services

Lust auf eine Besichtigung?
Eine Frage zur Immobilie?
Nachricht hinzufügen
Mit der Nutzung der oben angegebenen Telefonnummer oder durch Klicken auf „Kontaktieren“ akzeptierst Du die Allgemeinen Nutzungsbedingungen, denen Du jederzeit widersprechen kannst. Weitere Informationen zum Datenschutz

Über den Anbieter

Fasangasse 30/10, 1030 WIEN
partner badge
6 Jahre Partnerschaft
Herr Philipp SulekDein Kontakt
Online-ID: 29kwt5t
Referenznummer: OBGC202210311540223969ef9d1adc9
Mittelsmann Philipp Sulek GmbH
Mittelsmann Philipp Sulek GmbH
Nachricht hinzufügen
Mit der Nutzung der oben angegebenen Telefonnummer oder durch Klicken auf „Kontaktieren“ akzeptierst Du die Allgemeinen Nutzungsbedingungen, denen Du jederzeit widersprechen kannst. Weitere Informationen zum Datenschutz
Wie zufrieden bist du mit dieser Seite (nicht mit der Immobilie selbst)?