Version: 8.25.1Navigation überspringen
665.000 €
5 Zimmer  •  150 m²  •  500 m² Grundstück
Immowelt logo

Mehrfamilienhaus zum Kauf
665000 €
3.167 €/m²
5 Zimmer  •  150 m²  •  500 m² Grundstück

Neue und raffinierte Doppelhaushälfte

In Ponti sul Mincio, nur wenige Minuten von den Ufern des Gardasees entfernt, befindet sich eine exklusive, neu gebaute ZWEIFAMILIEN-VILLA in einer ruhigen und zurückhaltenden Wohngegend, fernab von Verkehr und touristischem Chaos, ideal für diejenigen, die in einem eleganten und entspannten Rahmen leben möchten.

Die Wohnung wurde mit modernsten Materialien und fortschrittlichen Bautechnologien entworfen, die maximale Energieeffizienz, Wohnkomfort und hohe Bauqualität garantieren. Die großzügigen und gut verteilten Räume sind so konzipiert, dass sie Funktionalität und Harmonie zwischen drinnen und draußen bieten, mit einem privaten Garten auf zwei Seiten und einer Veranda, die dazu einlädt, das Haus zu jeder Jahreszeit zu erleben.

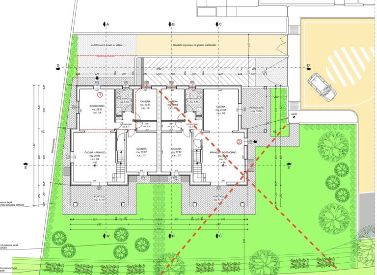
Im Erdgeschoss befinden sich ein helles, offenes Wohnzimmer mit Essbereich und offener Küche, ein Doppelschlafzimmer, ein Einzelschlafzimmer und ein Service-Bad, während im ersten Stock ein großer Dachboden von etwa neunzig Quadratmetern die Möglichkeit bietet, individuelle Räume wie ein Arbeitszimmer, ein zusätzliches Bad oder weitere Schlafzimmer zu schaffen.
Das Kellergeschoss vervollständigt die Immobilie mit einer großen Doppelgarage von etwa fünfzig Quadratmetern, einem technischen Raum, einer Waschküche, einem Keller und einem Flur.
Die Villa ist mit Fußbodenheizung, Klimaanlage, Wärmepumpe, Wärmedämmung, Schalldämmung, Fenstern und Türen der neuesten Generation und einem Schrägdach ausgestattet.

ÜBERGABE IM DEZEMBER 2026
ENERGIEKLASSE A4

Ein moderner, effizienter und nachhaltiger Wohnsitz, ideal für alle, die die Ruhe im Grünen und die Nähe zum See suchen, ideal als Hauptwohnsitz oder als repräsentatives Haus für das ganzjährige Leben am Gardasee.

Merkmale

  • Haustiere erlaubt
  • 500 m² Grundstück
  • Bad mit Fenster
  • Keller
  • Bodenbelag: Parkett
  • Terrasse
  • Fernblick
  • voll klimatisiert

Grundrisse

Grundrisse
1 / 3

Realisiere Dein Projekt

Bausubstanz und Energie

Möchtest du Details zum Energieverbrauch?info_energy_calculation-icon
  • Baujahr2026
  • Zustand der ImmobilieProjektiert
  • HeizungsartFußbodenheizung
  • EnergieträgerLuft-/Wasser-Wärmepumpe
Immowelt logo

Preisdetails

Kaufpreis
665000 €
3.166,67 €/m²
Provision für Käufer
ja maklerprovision im Preis nicht inbegriffen zzgl. MwSt.

Lage

address-icon
Via San Martino e Solferino 3Ponti sul Mincio (46040)

Weitere Informationen

Stichworte Ost-Süd-West-Balkon/Terrasse, Nutzfläche: 210,00 m², Verkaufsfläche: 210,00 m², Anzahl der Schlafzimmer: 4, Anzahl der Badezimmer: 4, Anzahl Terrassen: 1, Gartenfläche: 150,00 m², Anzahl der Wohneinheiten: 2, Bundesland: Lombardia, 3 Etagen, Lage im Wohngebiet

Weitere Services

Lust auf eine Besichtigung?
Eine Frage zur Immobilie?
Nachricht hinzufügen
Mit der Nutzung der oben angegebenen Telefonnummer oder durch Klicken auf „Kontaktieren“ akzeptierst Du die Allgemeinen Nutzungsbedingungen, denen Du jederzeit widersprechen kannst. Weitere Informationen zum Datenschutz

Über den Anbieter

Via Meucci 77, 25080 PADENGHE SUL GARDA
partner badge
Partnerschaft
Frau Ellen Piacentini
Frau Ellen PiacentiniDein Kontakt
Online-ID: 25BQHS4I9RJE
Referenznummer: SV6489
Garda Haus Srl
title
Garda Haus Srl
Nachricht hinzufügen
Mit der Nutzung der oben angegebenen Telefonnummer oder durch Klicken auf „Kontaktieren“ akzeptierst Du die Allgemeinen Nutzungsbedingungen, denen Du jederzeit widersprechen kannst. Weitere Informationen zum Datenschutz
Wie zufrieden bist du mit dieser Seite (nicht mit der Immobilie selbst)?