Version: 8.24.0Navigation überspringen
75.000 €
6 Zimmer  •  153 m²  •  550 m² Grundstück
Immowelt logo

Einfamilienhaus zum Kauf
75000 €
490 €/m²
6 Zimmer  •  153 m²  •  550 m² Grundstück

Verkauf gegen GEBOT! Sanierungsbedürftiges Wohnhaus mit 2 Garagen in Mistelgau / OT!

Sie sind auf der Suche nach einem großzügigen Haus mit 2 Garagen? Falls ja, hat Ihre Suche ein Ende - treten Sie ein!

Das Einfamilienhaus wurde im Jahr 1908 errichtet und befindet sich in Mistelgau, Ortsteil. Das Haus bietet Ihnen aktuell ca. 153 m² Wohnfläche verteilt auf 2 Etagen mit insgesamt 6 Zimmern.

Das Grundstück hat eine Fläche von ca. 550 m².

Durch die Ausführung umfangreicher Sanierungsmaßnahmen am Objekt, kann die Immobilie wieder auf den aktuellen Stand der Technik gebracht werden. Kombinieren Sie hier Maßnahmen, und nutzen dadurch interessante Förderungsmöglichkeiten. Notwendig sind auch statische Maßnahmen an der Südgiebelwand (siehe Ausstattung).

Daten Energieausweis:
Energieausweis-Art: Bedarf
Endenergiebedarf: 452 kWh/(m²*a)
Energieeffizienzklasse: H
Baujahr (Energieausweis): 1908
Primärenergieträger: Strom

Merkmale

  • Bezug: sofort
  • 550 m² Grundstück
  • 2 Stellplätze: 2 Garagen
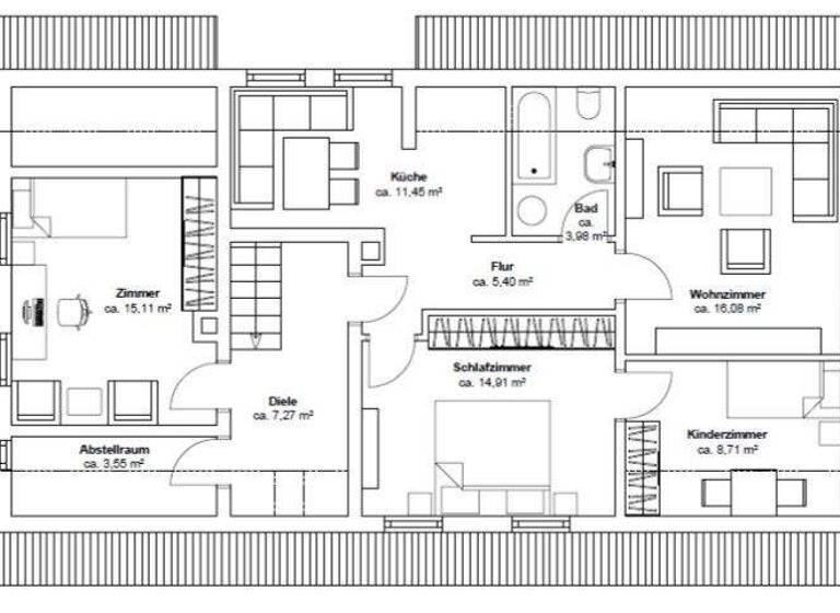
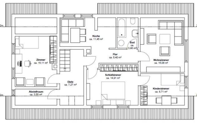
RAUMAUFTEILUNG:
ERDGESCHOSS:
- großzügiger Eingangsbereich
- helle Zimmer mit guten Stellmöglichkeiten
- Hauswirtschaftsraum
- Bad mit Badewanne
- separates WC

DACHGESCHOSS:
- mehrere Schlafzimmer
- Küche
- weiteres Bad

DACHSPITZ

KELLERGESCHOSS (teilunterkellert - baujahresbedingt - sehr niedrige Raumhöhe):
- Kellerräume

EINZELGARAGE im Haus
Sowie weitere Garage angebaut

Gartenfläche

Die Beheizung der Immobilie erfolgt bislang mit Nachtspeicheröfen.
Die Warmwasseraufbereitung über Boiler.

Am Südgiebel sind Schäden erkennbar. Hier ist eine statische Prüfung sowie weitere statische Maßnahmen erforderlich.

Konditionen:
Verkauf gegen Gebot - das Mindestgebot liegt bei: 75.000 EUR - provisionsfrei für den Käufer

Grundrisse

Grundrisse
1 / 2

Realisiere Dein Projekt

Bausubstanz und Energie

Energieausweis

H
  • Baujahr1908
  • Zustand der Immobilierenovierungsbedürftig / sanierungsbedürftig
  • HeizungsartOfen
  • EnergieträgerElektro
Immowelt logo

Preisdetails

Kaufpreis
75000 €
490,20 €/m²
Provision für Käufer
Bitte beachte, das Angebot kann bei Vertragsabschluss die Zahlung einer Provision beinhalten. Weitere Informationen erhältst Du vom Anbieter.
Weitere Preisinformationen
2 Garagenstellplätze
Geschätzte Gesamtkosten
81.802 €1
Kaufpreis
75.000 €
Notarkosten (1,5%)
1.125 €
Grunderwerbsteuer (3,5%)
2.625 €
Provision für Käufer (3,57%)
2.677 €
Grundbucheintrag (0,5%)
375 €
1Der angezeigte Wert ist eine automatisch berechnete Schätzung von immowelt.
2Bei den Angaben handelt es sich um ortsübliche Werte. Individuelle Kosten können abweichen.

Lage

address-icon
GollenbachMistelgau / Gollenbach (95490)
Der Anbieter hat die genaue Adresse nicht freigegeben
95490 Mistelgau, Gollenbach

Kindergarten und Kinderkrippe befinden sich im Ort Mistelgau (weiterführende Schulen in Hollfeld und Bayreuth). Zudem verfügt Mistelgau über eine gute Infrastruktur und Busanbindung. Neben Geschäften des täglichen Bedarfs (Bäcker & Metzger) finden Sie auch einen Einkaufsmarkt sowie Ärzte und Banken.

Mistelgau ist ca. 10km westlich von Bayreuth gelegen. In der Wagner- und Universitätsstadt Bayreuth sind zahlreiche große Arbeitgeber angesiedelt.

Weitere Informationen

Sonstiges Änderungen und Zwischenverkauf vorbehalten.

Gerne vereinbaren wir einen Besichtigungstermin - sprechen Sie uns einfach an!

Die Angaben in diesem Exposé erfolgen unter Ausschluss jeglicher Haftung, soweit diese nicht auf einer vorsätzlichen oder grobfahrlässigen Pflichtverletzung beruhen. Unser Angebot erfolgt gemäß der uns vom Eigentümer erteilten Informationen, jedoch ohne Gewähr für die Richtigkeit und Vollständigkeit. Schadensersatzansprüche sind uns gegenüber, auch bei eigenen Fehlern, mit Ausnahme von grob fahrlässigem oder vorsätzlichem Verhalten, ausgeschlossen. Eine Weitergabe an Dritte ist nicht gestattet. Stichworte Nutzfläche: 36,00 m², Anzahl der Schlafzimmer: 5, Anzahl der Badezimmer: 2, Anzahl der separaten WCs: 1, 3 Etagen

Weitere Services

Lust auf eine Besichtigung?
Eine Frage zur Immobilie?
Nachricht hinzufügen
Mit der Nutzung der oben angegebenen Telefonnummer oder durch Klicken auf „Kontaktieren“ akzeptierst Du die Allgemeinen Nutzungsbedingungen, denen Du jederzeit widersprechen kannst. Weitere Informationen zum Datenschutz

Über den Anbieter

Bahnhofstraße 25, 95490 Mistelgau
partner badge
Partnerschaft
Frau Leni NicklasDein Kontakt
Online-ID: 2nurm5b
Referenznummer: 25-100H
Alexander Thiem Immobilien
Alexander Thiem Immobilien
Bewertung: 4,2 von 5 Sternen
Nachricht hinzufügen
Mit der Nutzung der oben angegebenen Telefonnummer oder durch Klicken auf „Kontaktieren“ akzeptierst Du die Allgemeinen Nutzungsbedingungen, denen Du jederzeit widersprechen kannst. Weitere Informationen zum Datenschutz
Wie zufrieden bist du mit dieser Seite (nicht mit der Immobilie selbst)?