Version: 8.25.1Navigation überspringen
BIDDEX Immobiliengesellschaft mbH
640 €
1 Zimmer  •  42,5 m² Bürofläche

Bürofläche zur Miete • provisionsfrei
640 €
1 Zimmer  •  42,5 m² Bürofläche

Gewerbefläche im Hinterhof von Steglitz - provisionsfrei zu mieten !

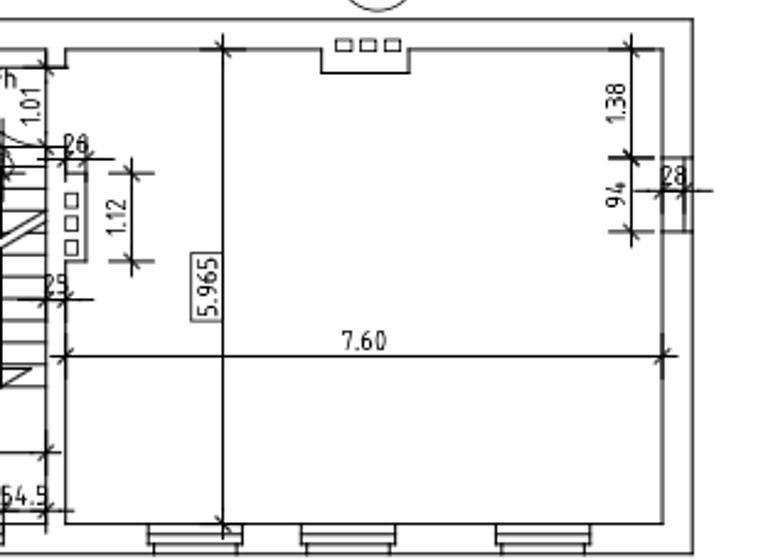
Willkommen zu einer exklusiven Gelegenheit in Berlin Steglitz! Diese Gewerbeeinheit bietet ca. 45,54 m² vielseitig nutzbaren Raum in einer ausgezeichneten Lage. Ideal für ein Büro oder andere alternative Gewerbenutzungen.

Eine Unterteilung in 2 Räume, durch eine Trockenbau Wand ist problemlos möglich.

Das Design dieser Einheit ermöglicht eine flexible Gestaltung entsprechend Ihrer Geschäftsanforderungen. Die Fenster sorgen für eine helle Arbeitsatmosphäre und bieten einen schönen Blick auf die Umgebung. Die Lage in Berlin Steglitz ist äußerst begehrt, mit einer ausgezeichneten Anbindung an öffentliche Verkehrsmittel und eine Vielzahl von Annehmlichkeiten in unmittelbarer Nähe.

Zögern Sie nicht, diese einzigartige Gewerbeimmobilie zu besichtigen. Kontaktieren Sie uns noch heute, um weitere Informationen zu erhalten und einen Termin zu vereinbaren. Wir freuen uns darauf, Ihnen bei der Verwirklichung Ihrer Geschäftsvision behilflich zu sein.

Die Einheit befindet sich im 1. OG des Seitenflügels.

Es gäbe die Option ein Badezimmer, samt WC in die Fläche zu installieren.

Auf die Warmmiete fällt die gesetzliche USt. in Höhe von 19% an.

Es fällt eine Staffelung um 1 € / m² ab dem 2. Jahr der Mietlaufzeit an.

Zum Mietvertrag muss vom Mieter eine notarielle Zwangsvollstreckungsunterwerfung erbracht werden.

Merkmale

  • frei ab 01.06.2026
  • 1. Geschoss

Grundrisse

Grundrisse
1 / 1

Realisiere Dein Projekt

Bausubstanz und Energie

Energieausweis

Endenergiebedarf (Wärme)

  • Baujahr1917
  • Zustand der ImmobilieGepflegt
  • HeizungsartZentralheizung
  • EnergieträgerGas
MediumRectangleTop

Mietkosten

Warmmiete
790 €
Nettomiete
640 €
Nebenkosten
150 €
Heizkosten
75 €
Provision für Mieter
provisionsfrei
Kaution
2.820,30 €

Lage

address-icon
Bergstraße 92SteglitzBerlin (12169)
Die Bergstraße mitten Berlin-Steglitz stellt eine belebte Gegend der Hauptstadt dar und befindet sich unweit der Einkaufsmeile auf der Schloßstraße. Zudem zählt das Gebiet, aufgrund seiner facettenreichen Freizeitmöglichkeiten, zu einem attraktiven Wohnziel für Jung und Alt.

Das Leben dort hat etliche Restaurants und Cafés zu bieten, die alle fußläufig zu erreichen sind. In unmittelbarer Nähe befindet sich des Weiteren das Einkaufszentrum "Das Schloss", sowie diverse Läden des täglichen Bedarfs.

Die Anbindung der öffentlichen Verkehrsmittel ist durch die regelmäßig fahrende S-Bahn (S-Bhf Rathaus-Steglitz) welche ca. 5 Minuten fußläufig zu erreichen sind, sichergestellt. Zudem ergänzen ständig fahrende Busse und die U-Bahn den Bahnverkehr.

Weitere Informationen

Stichworte Gesamtfläche: 42,54 m², Bundesland: Berlin, 3 Etagen

Weitere Services

Lust auf eine Besichtigung?
Eine Frage zur Immobilie?
Mit einer persönlichen Nachricht hast du bessere Chancen auf eine Antwort.
Mit der Nutzung der oben angegebenen Telefonnummer oder durch Klicken auf „Kontaktieren“ akzeptierst Du die Allgemeinen Nutzungsbedingungen, denen Du jederzeit widersprechen kannst. Weitere Informationen zum Datenschutz

Über den Anbieter

Marburger Straße 17, 10789 Berlin
partner badge
Partnerschaft
Herr Maximilian Verowski
Herr Maximilian VerowskiDein Kontakt

Weitere Unterlagen

Online-ID: 26ZIVZS6728T
Referenznummer: C10217/12
BIDDEX Immobiliengesellschaft mbH
title
BIDDEX Immobiliengesellschaft mbH
Mit einer persönlichen Nachricht hast du bessere Chancen auf eine Antwort.
Mit der Nutzung der oben angegebenen Telefonnummer oder durch Klicken auf „Kontaktieren“ akzeptierst Du die Allgemeinen Nutzungsbedingungen, denen Du jederzeit widersprechen kannst. Weitere Informationen zum Datenschutz
MediumRectangleTop
MediumRectangleBottom
MediumRectangleTop
Wie zufrieden bist du mit dieser Seite (nicht mit der Immobilie selbst)?