Sonstige Immobilie in Torrevieja
Neubauwohnungen im Herzen von Torrevieja Nur 400 m von Playa del Cura entfernt
Erstklassige Lage im Zentrum von Torrevieja
Dieses neue Wohngebäude genießt eine unschlagbare Lage im Zentrum von Torrevieja, nur 400 m vom Strand Playa del Cura entfernt. Umgeben von Geschäften, Supermärkten, Restaurants und Dienstleistern des täglichen Bedarfs bietet es alles, was Sie brauchen, in fußläufiger Entfernung. Die Gegend bietet auch Zugang zu Parks, Freizeitbereichen und Grünflächen und schafft so eine perfekte Balance zwischen urbaner Bequemlichkeit und Momenten der Entspannung.
Moderne Wohnungen mit 2 und 3 Schlafzimmern
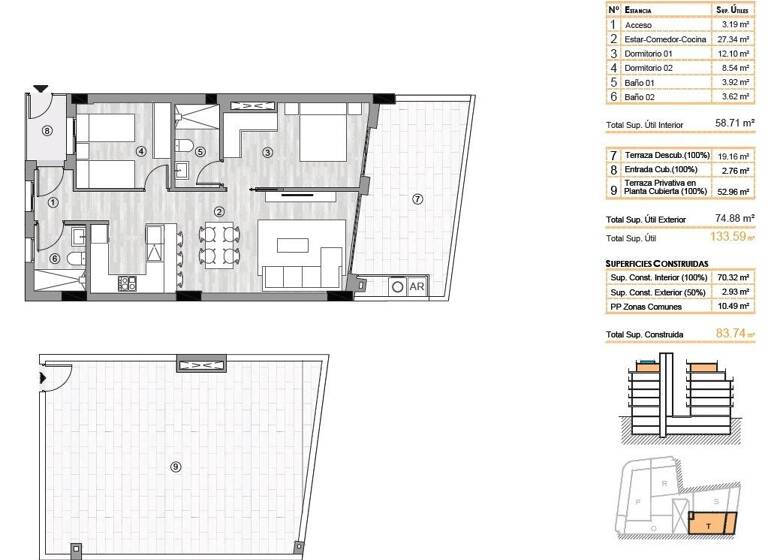
Die Wohnanlage bietet eine Auswahl an Wohnungen mit 2 und 3 Schlafzimmern, darunter Penthäuser, von denen einige über private Sonnenterrassen verfügen. Jede Wohnung ist in einem zeitgemäßen Stil gestaltet und verfügt über offene Grundrisse, große Terrassen und integrierte Küchen im amerikanischen Stil. Die Badezimmer sind komplett mit Möbeln, Duschwänden und Fußbodenheizung ausgestattet. Die Küchen sind mit Geräten ausgestattet, und jede Wohnung verfügt über eine Vorinstallation für eine Klimaanlage. Optional sind Tiefgaragenstellplätze und Abstellräume verfügbar.
Resort-ähnliche Einrichtungen für Ihr Wohlbefinden
Die Bewohner können eine Reihe exklusiver Annehmlichkeiten genießen. Im Erdgeschoss befindet sich ein voll ausgestatteter Fitnessraum, ideal für das tägliche Training. Die Dachterrasse ist mit Sonnenliegen, einer finnischen Sauna und einem Minipool eine wahre Oase der Entspannung. Sowohl der Aufzug als auch die Treppe verbinden direkt mit der Dachterrasse und bieten so maximalen Komfort und Zugänglichkeit.
Leben in einer einzigartigen natürlichen und küstennahen Umgebung
Torrevieja ist bekannt für sein warmes mediterranes Klima mit einer durchschnittlichen Jahrestemperatur von 20 °C, was es zu einem perfekten Ort macht, um das ganze Jahr über zu leben. Die Stadt ist berühmt für ihre natürlichen Salzlagunen und den geschützten Naturpark La Mata und Torrevieja, der nur 4 km von der Anlage entfernt liegt. Seine rosa und grünen Seen, malerischen Wanderwege und seine reiche Artenvielfalt bieten einen gesunden und inspirierenden Lebensstil.
Entfernungen zu wichtigen Sehenswürdigkeiten
Playa del Cura 0,4 km
Yachthafen von Torrevieja 1 km
Naturpark La Mata 4 km
Villamartin Golf 8 km
Flughafen Alicante 45 km
Flughafen Murcia 60 km
Erleben Sie den mediterranen Lebensstil
Verpassen Sie nicht die Gelegenheit, ein modernes Haus in einer der begehrtesten Küstenstädte der Costa Blanca zu erwerben. Kontaktieren Sie uns noch heute, um einen Besichtigungstermin zu vereinbaren und sich Ihren Platz in dieser außergewöhnlichen neuen Wohnanlage zu sichern.