
Heimat Österreich gemeinnützige Wohnungs- u. Siedlungsges. mbH
Frau Theresa Günzl
+43 ···
Nr. anzeigenPreise & Kosten
Warum sehe ich diese Anzeige? – Du siehst diese Anzeige basierend auf Ihrer Navigation auf unserer Website und den Suchkriterien, die du verwendet hast.
Lage
Mitten im Grünen und doch mitten im Leben: Das Wohnprojekt "ein viertel grün" vereint modernen Wohnkomfort mit einer erstklassigen Lage - direkt gegenüber der Merkurcity in Wiener Neustadt. Hier treffen Ruhe, Natur und Stadtleben aufeinander - und schaffen einen Wohnraum, der keine Wünsche offen lässt.
In diesem neuen...
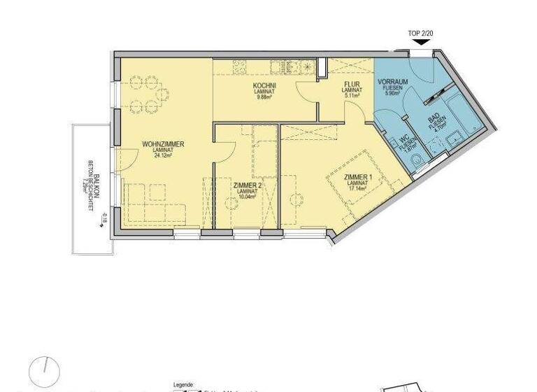
Die Wohnung
Wohnungslage
3. Geschoss
Bezug
Frühjahr 2026
Wohnanlage
Energie & Heizung
Warum sehe ich diese Anzeige? – Du siehst diese Anzeige basierend auf Ihrer Navigation auf unserer Website und den Suchkriterien, die du verwendet hast.
Heizwärmebedarf (HWB)
26,26 kWh/(m²·a)
Gesamtenergieeffizienz (fGEE)
0,63
Weitere Energiedaten
Energieträger
Solar
Details
Objektbeschreibung
Willkommen in Ihrem neuen Zuhause in Wiener Neustadt!
In unserem neuen Wohnquartier trifft modernes Wohnen auf naturnahe Umgebung - ideal für junge Familien, Paare sowie Einzelpersonen die Wert auf Lebensqualität, Gemeinschaft und Nachhaltigkeit legen.
Das Projekt bietet besten Wohnkomfort für Familien, direkt...
Preisinformation
1 Stellplatz
Weitere Informationen
Stichworte
Tiefgarage vorhanden, Fahrradraum, Anzahl der Badezimmer: 1, Anzahl der separaten WCs: 1, Anzahl Balkone: 1, Balkon-Terrassen-Fläche: 7,29 m², Kellerfläche: 3,00 m², Bundesland: Niederösterreich, 4 Etagen, Wohnungsnr.: 20
Dokumente
Anbieter der Immobilie
Heimat Österreich gemeinnützige Wohnungs- u. Siedlungsges. mbH
Plainstr. 55, 5020 Salzburg
Online-ID: 2mkne54
Referenznummer: OBGC20251031090232030cef39084bd
Finde Angebote wie dieses
Hier geht es zu unserem Impressum, den Allgemeinen Geschäftsbedingungen, den Hinweisen zum Datenschutz und nutzungsbasierter Online-Werbung.