

EMA IMMOBILIEN GmbH
Herr Mario Hesse
+49 ···
Nr. anzeigenPreise & Kosten
Provision für Käufer
3,57 % inkl. MwSt.
Lage
Falkensee ist eine sehr beliebte und familienfreundliche Stadt am westlichen Berliner Stadtrand, welche in eine tolle Naturlandschaft eingebettet ist und zu ausgedehnten Spaziergängen und abwechslungsreichen Freizeitaktivitäten an frischer Luft einlädt.
Falkensee gehörte im Jahr 2017 zu den am schnellsten wachsenden...
Das Haus
Kategorie
Reihenmittelhaus
Baujahr
2025
Energie & Heizung
Warum sehe ich diese Anzeige? – Du siehst diese Anzeige basierend auf Ihrer Navigation auf unserer Website und den Suchkriterien, die du verwendet hast.
Energieausweistyp
Bedarfsausweis
Gebäudetyp
Wohngebäude
Baujahr laut Energieausweis
2025
Wesentliche Energieträger
LUFTWP
Gültigkeit
bis 30.01.2035
Effizienzklasse
A+
Endenergiebedarf
21,80 kWh/(m²·a)
Weitere Energiedaten
Heizungsart
Fußbodenheizung, Luft-/Wasser-Wärmepumpe
Details
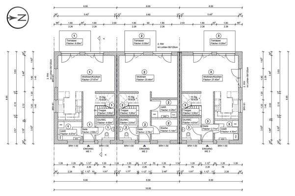
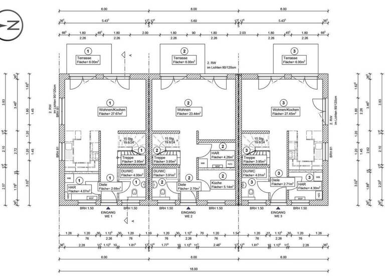
Objektbeschreibung
Hinweis: Im nachfolgenden Text werden alle drei Wohneinheiten beschrieben.
Das moderne Reihenhaus befindet sich in einer begehrten Wohnlage nur wenige Gehminuten von der Reit- und Poloanlage Falkensee-Finkenkrug entfernt. Es wurde im 2025 in moderner Architektur und grundsolider Massivbauweise errichtet.
Die...
Ausstattung
- hochwertige Massivbauweise mit Porenbeton und Kalksandstein
- moderne Architektur Baujahr 2025 mit Erstbezug
- bezugsfertige Übergabe inklusive Außenanlagen und Gartengestaltung
- Hauseingangstür mit Dreifachverriegelung
- Fenster mit Dreifachverglasung
- elektrische Alu-Rollläden an allen Fenstern (außer...
Preisinformation
2 Stellplätze
Weitere Informationen
Sonstiges
Die Courtage in Höhe von 3,57 % des Kaufpreises (inklusive 19% MwSt.) wird vom Käufer getragen und ist verdient und zahlbar an die EMA IMMOBILIEN GmbH nach Beurkundung des notariellen Kaufvertrages. Wir freuen uns über Ihren Anruf oder Ihre Anfrage.
Wir bieten Ihnen diese Immobilie zu unseren Allgemeinen...
Anbieter der Immobilie

Online-ID: 2mlae5n
Referenznummer: 6360PS
Finde Angebote wie dieses
Hier geht es zu unserem Impressum, den Allgemeinen Geschäftsbedingungen, den Hinweisen zum Datenschutz und nutzungsbasierter Online-Werbung.