Moderne Etagenwohnung mit großer Terrasse - stilvoll wohnen in Albstadt
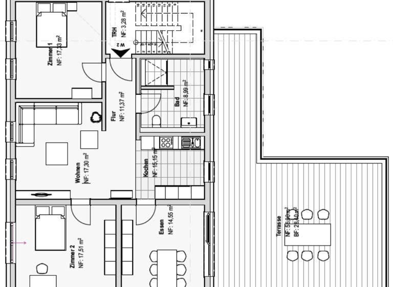
Diese hochwertig sanierte Wohnung im ersten Obergeschoss bietet auf ca. 126 m² ein modernes und zugleich behagliches Zuhause. Der helle Wohn-, Ess- und Küchenbereich (ca. 45 m²) bildet das Herzstück der Wohnung, ergänzt durch zwei Schlafzimmer und ein stilvoll ausgestattetes Badezimmer. Hochwertige Materialien wie Eichenparkett, moderne Elektroinstallationen und eine Fußbodenheizung prägen das Ambiente. Die ca. 32 m² große Terrasse erweitert den Wohnraum nach draußen - perfekt für sonnige Stunden. Ein Carport-Stellplatz sowie die hochwertige Einbauküche müssen für jeweils 10.000 € dazuerworben werden.
Objekt: Das Haus wurde 1959 in massiver Bauweise errichtet und im Jahr 2022 vollständig und hochwertig kernsaniert. Die Immobilie erreicht nun den KfW-70-Effizienzhausstandard. Zu den Ausstattungsmerkmalen zählen eine umweltfreundliche Pelletheizung, moderne Elektroinstallationen, großzügige Außenflächen und exklusive Details wie elektrische Rollläden. Die Lage in Albstadt punktet durch hervorragende Anbindung, vielfältige Einkaufsmöglichkeiten und naturnahe Freizeitangebote.
Moderne Elektroinstallation mit Netzwerkanschlüssen und multimedialen Steckdosen
Gegensprechanlage
Hochwertige Sanitärausstattung:
Bodenebene Duschen
Wandtiefspül-WCs aus Kristallporzellan
Helle, moderne Fliesen
Eichenparkettböden in Wohn- und Schlafbereichen
Sichtbare Holzbalkendecken und Galerieebenen (Dachgeschosswohnung)
Großzügige Terrassen und Balkone mit robusten Stahlkonstruktionen und hochwertigen Belägen
Vorbereitung der Küchenanschlüsse für individuelle Gestaltung
Pelletheizung (nachhaltiges Heizsystem)
Grundrisse
Grundrisse
1 / 1
Realisiere Dein Projekt
Bausubstanz und Energie
Energieausweis
C
Baujahr1959
Zustand der Immobilierenoviert / saniert
EnergieträgerPellets
Preisdetails
Kaufpreis
369000 €369.000 €
2.928,57 €/m²
Provision für Käufer
3,57 inkl. MwSt.
Geschätzte Gesamtkosten
408.003 €1
Kaufpreis
369.000 €
Kaufnebenkosten
39.003 €
2
Notarkosten (1,5%)
5.535 €
Grunderwerbsteuer (5%)
18.450 €
Provision für Käufer (3,57%)
13.173 €
Grundbucheintrag (0,5%)
1.845 €
1Der angezeigte Wert ist eine automatisch berechnete Schätzung von immowelt.
2Bei den Angaben handelt es sich um ortsübliche Werte. Individuelle Kosten können abweichen.
Lage
Ebingen, Albstadt (72458)
Der Anbieter hat die genaue Adresse nicht freigegeben
Die Kantstraße 81 in Albstadt bietet eine erstklassige Wohnlage, die städtisches Leben mit der Nähe zur Natur vereint. Gelegen auf der Schwäbischen Alb, zeichnet sich Albstadt durch eine hohe Lebensqualität aus, die durch die umgebenden dichten Wälder und offenen Landschaften unterstrichen wird. Diese Stadt vereint die Ruhe einer ländlichen Region mit den Annehmlichkeiten urbaner Infrastruktur.
Die Gegend um die Kantstraße 81 ist attraktiv durch ihre vielfältigen Einkaufsmöglichkeiten, von großen Supermärkten bis hin zu kleinen Spezialitätengeschäften. Cafés und Restaurants bieten lokale sowie internationale Küche, was das gastronomische Angebot reich und vielfältig macht. Diese Vorzüge machen die Kantstraße zu einem lebendigen und begehrten Wohnort.
Für Familien ist die Infrastruktur ideal: Kindergärten und Schulen sind leicht erreichbar, ebenso medizinische Einrichtungen, die eine umfassende Versorgung garantieren. Sportanlagen und Vereine in der Nähe bieten ein breites Spektrum an Freizeitaktivitäten, von Fußball bis Klettern, was den Wohnort auch für Aktive attraktiv macht.
Die Verkehrsanbindung ist hervorragend. Über lokale Buslinien und nahe Bahnstationen sind andere Stadtteile und umliegende Städte gut erreichbar. Die Anbindung an überregionale Straßen ermöglicht es auch Pendlern, größere Städte wie Stuttgart effizient zu erreichen.
Die Kantstraße 81 profitiert zudem von einem starken Gemeinschaftsgefühl. Viele lokale Feste und Veranstaltungen, kulturelle Darbietungen und Vereinsaktivitäten fördern den sozialen Zusammenhalt und bieten reichhaltige Möglichkeiten zur Freizeitgestaltung. Die umliegenden Naturparks und Wanderwege laden zu Erholung und Aktivitäten in der freien Natur ein. Insgesamt ist die Kantstraße 81 in Albstadt ein idealer Wohnort für diejenigen, die eine ausgewogene Mischung aus städtischem Komfort und ländlicher Idylle suchen. Die Kombination aus einer gut entwickelten Infrastruktur, einer starken lokalen Gemeinschaft und der unmittelbaren Nähe zur Natur macht diese Adresse besonders attraktiv für Familien, Berufstätige und Naturliebhaber. Hier finden Menschen aller Altersgruppen einen Platz für ein erfülltes und aktives Leben.
Weitere Informationen
Sonstiges
Alle Angaben in diesem Exposé basieren auf den Informationen des Verkäufers. Eine Haftung für deren Richtigkeit und Vollständigkeit wird nicht übernommen.
Stichworte
Anzahl der Schlafzimmer: 2, Anzahl der Badezimmer: 1, Anzahl Balkone: 1, Balkon-Terrassen-Fläche: 32,00 m², Bundesland: Baden-Württemberg, 3 Etagen