

Bürofläche zur Miete • provisionsfrei1.000 €140 m² Bürofläche
1.000 €
140 m² Bürofläche
AUMÜLLER-Immobilien - Charmante Büro-/Praxisfläche mit zwei großen Schaufenstern in zentraler Lage
Merkmale
- vermietet
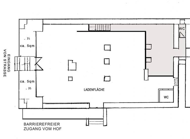
Grundrisse
Grundrisse
1 / 1
Realisiere Dein Projekt
Bausubstanz und Energie
Der Anbieter hat keine Informationen zum Energieverbrauch bereit gestellt.
- Baujahr1572
- EnergieträgerFernwärme
Mietkosten
Nettomiete
1.000 €
Nebenkosten
250 €
Heizkosten
in Warmmiete enthalten
Provision für Mieter
provisionsfrei
Kaution
2000 €
Lage

Wächtersbach (63607)
Der Anbieter hat die genaue Adresse nicht freigegeben
Weitere Informationen
Weitere Services
Lust auf eine Besichtigung?
Eine Frage zur Immobilie?
Über den Anbieter
Aumüller ImmobilienMaklerbüro
Bachstraße 4, 63607 Wächtersbach
Partnerschaft
Frau Enesa AumüllerDein Kontakt
Online-ID: 2l85x5q
Referenznummer: 372238

Aumüller Immobilien
Bewertung: 5 von 5 Sternen
Wie zufrieden bist du mit dieser Seite (nicht mit der Immobilie selbst)?

