Version: 8.22.4Navigation überspringen
40.100 €
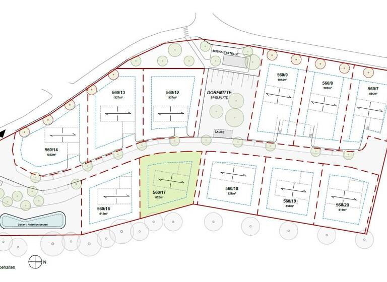
802 m² Grundstück
Immowelt logo

Grundstück zum Kauf
40100 €
50 €/m²
802 m² Grundstück

Wohnen am Pöllauberg! Bauplätze in bester Lage mit Aussicht und Lebensqualität!

Am Pöllauberg entstehen insgesamt 11 neue, sonnige Bauparzellen von 802-1.033m² in wunderschöner Aussichtslage.

Das neue Siedlungsgebiet liegt ruhig am Rande des Ortes, mit einer Bushaltestelle direkt vor der Haustür und nur wenigen Minuten Entfernung ins Dorfzentrum von Pöllauberg bzw. Pöllau.


Die Grundstücke liegen in leichter Hanglage, was nicht nur für eine angenehme Besonnung sorgt, sondern auch einen schönen Blick über das Tal ermöglicht.


Alle Parzellen sind voll aufgeschlossen (Kanal, Wasser, Strom - der Glasfaserausbau für die Gemeinde Pöllauberg wird aktuell umgesetzt) und über eine verkehrsberuhigte Zufahrtsstraße erreichbar.

Ein neu angelegter Spielplatz und Dorfplatz schaffen zusätzlich Lebensqualität für Familien und Nachbarn.

Egal ob man aus der Umgebung kommt oder neu in die Region zieht, am Pöllauberg lebt man ruhig und sonnig, mit schöner Aussicht und in unmittelbarer Nähe zum Dorf und zur Natur.

Merkmale

  • 802 m² Grundstück
  • voll erschlossen

Grundrisse

Grundrisse
1 / 1

Realisiere Dein Projekt

Bausubstanz und Energie

Der Anbieter hat keine Informationen zu Energieverbrauch oder Zustand der Immobilie bereit gestellt.
Immowelt logo

Preisdetails

Kaufpreis
40100 €
50 €/m²
Provision für Käufer
3% + USt.

Lage

address-icon
Pöllauberg (8225)
Der Anbieter hat die genaue Adresse nicht freigegeben
Das neue Siedlungsgebiet am Salberg befindet sich im Gemeindegebiet von Pöllauberg, einer der schönsten Wohnlagen im Bezirk Hartberg-Fürstenfeld.

Infrastruktur:
Kindergarten, Volksschule, Nahversorgung und hervorragende Gastronomie sind in wenigen Minuten erreichbar, ebenso das Ortszentrum von Pöllau und Hartberg, mit weiterführenden Schulen, Ärzten und umfangreichen Einkaufsmöglichkeiten.

Die Bezirkshauptstadt Hartberg liegt nur etwa 15 Fahrminuten entfernt, die A2-Autobahn (Anschluss Sebersdorf oder Hartberg) ist in rund 20 Minuten erreichbar.

Die leichte Hanglage ermöglicht einen wunderschönen Ausblick über das Tal.

Am Pöllauberg genießt man höchste Lebensqualität.

Weitere Informationen

Sonstiges KP: 50,-/m²


HIGHLIGHTS

• Insgesamt 11 sonnige Bauparzellen (802–1.033 m²) - eines bereits verkauft

• Voll aufgeschlossen: Kanal, Wasser, Strom

• Ruhige Südostlage mit Blick über das Tal

• Spielplatz & Dorfplatz im Zentrum des Areals

• Bebauungsdichte 0,2–0,4 / max. 2 Geschosse

• Wenige Minuten nach Pöllau und Hartberg

• Bauzwang innerhalb von 5 Jahren

Weitere Services

Lust auf eine Besichtigung?
Eine Frage zur Immobilie?
Nachricht hinzufügen
Mit der Nutzung der oben angegebenen Telefonnummer oder durch Klicken auf „Kontaktieren“ akzeptierst Du die Allgemeinen Nutzungsbedingungen, denen Du jederzeit widersprechen kannst. Weitere Informationen zum Datenschutz

Über den Anbieter

Ressavarstraße 44, 8230 HARTBERG
partner badge
Partnerschaft
Frau Akad. IM. Barbara  Lebenbauer
Frau Akad. IM. Barbara LebenbauerDein Kontakt
Online-ID: 2mfpy5a
L&S Immobilienservice
title
L&S Immobilienservice
Nachricht hinzufügen
Mit der Nutzung der oben angegebenen Telefonnummer oder durch Klicken auf „Kontaktieren“ akzeptierst Du die Allgemeinen Nutzungsbedingungen, denen Du jederzeit widersprechen kannst. Weitere Informationen zum Datenschutz
Wie zufrieden bist du mit dieser Seite (nicht mit der Immobilie selbst)?