Version: 8.25.1Navigation überspringen
392.000 €
1 Zimmer  •  476 m²  •  1.300 m² Grundstück
Immowelt logo

Mehrfamilienhaus zum Kauf • als Kapitalanlage geeignet
392000 €
824 €/m²
1 Zimmer  •  476 m²  •  1.300 m² Grundstück

Top Rendite Objekt mit 8WE, voll vermietet !

Zum Verkauf steht ein in den 1990er‑Jahren umfassend umgebauter ehemaliger Kindergarten, der heute acht gut geschnittene und vollständig vermietete Wohneinheiten beherbergt. Das dreigeschossige, voll unterkellerte Gebäude überzeugt durch seine solide Bauweise und funktionalen Grundrisse, die aus der ursprünglichen Nutzung als Kindertagesstätte ein großzügiges Raumgefühl mitbringen. Die Immobilie wird über eine Gaszentralheizung beheizt und präsentiert sich in einem gepflegten Gesamtzustand. Das große Grundstück umfasst einen gemeinschaftlich nutzbaren Garten, der den Bewohnern viel Platz zur Erholung im Grünen bietet. Zusätzlich stehen Stellplätze direkt auf dem Grundstück zur Verfügung – ein attraktives Plus in dieser Lage. Der Frauensteiner Ortsteil Nassau liegt malerisch am Rand des Osterzgebirges und bietet eine ruhige, naturnahe Wohnumgebung. Das Ortsbild ist geprägt von gepflegten Wohnhäusern, viel Grün und einer entspannten dörflichen Atmosphäre – ideal für Mieter, die Wert auf Erholung und ein harmonisches Umfeld legen.

Merkmale

  • frei ab sofort
  • vermietet
  • 1.300 m² Grundstück
  • Keller
  • 8 Außen-Stellplätze
  • 8 WCs
  • Gartenanteil
  • DSL-Anschluss

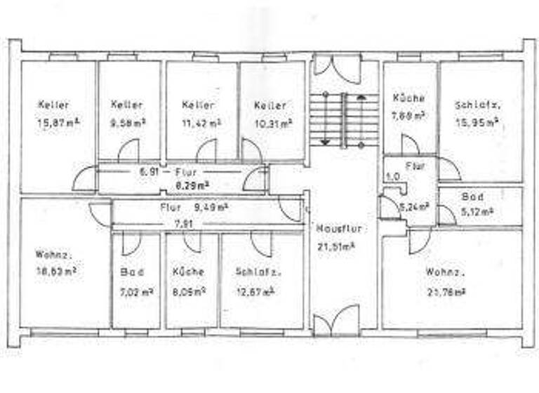
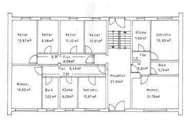
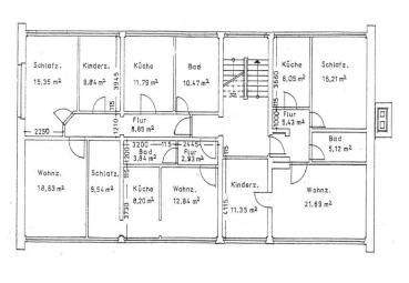
Grundrisse

Grundrisse
1 / 2

Realisiere Dein Projekt

Bausubstanz und Energie

Energieausweis

C
  • Baujahr1983
  • Letzte Modernisierung2015
  • Zustand der ImmobilieSaniert
  • HeizungsartZentralheizung: Heizkörper
  • EnergieträgerGas, fossile Brennstoffe
Immowelt logo

Preisdetails

Kaufpreis
392000 €
823,53 €/m²
Provision für Käufer
5,95 % inkl. Mehrwertsteuer
Geschätzte Gesamtkosten
435.394 €1
Kaufpreis
392.000 €
Notarkosten (1,5%)
5.880 €
Grunderwerbsteuer (5,5%)
21.560 €
Provision für Käufer (3,57%)
13.994 €
Grundbucheintrag (0,5%)
1.960 €
1Der angezeigte Wert ist eine automatisch berechnete Schätzung von immowelt.
2Bei den Angaben handelt es sich um ortsübliche Werte. Individuelle Kosten können abweichen.

Lage

address-icon
NassauFrauenstein (09623)
Der Anbieter hat die genaue Adresse nicht freigegeben
Die Versorgung des täglichen Bedarfs erfolgt im nahegelegenen Frauenstein, wo Einkaufsmöglichkeiten, medizinische Einrichtungen, Schulen und gastronomische Angebote vorhanden sind. Die historische Altstadt sowie die Burg Frauenstein setzen kulturelle Akzente und steigern die Attraktivität des Wohnstandortes. Über die B171 bestehen gute Anbindungen nach Freiberg, Dippoldiswalde und Dresden. Gleichzeitig bietet die Lage am Erzgebirgskamm vielfältige Freizeitmöglichkeiten: Wanderwege, Radstrecken und Wintersportangebote befinden sich in unmittelbarer Umgebung. Nassau verbindet ruhiges Wohnen im Grünen mit einer soliden Infrastruktur und guter Erreichbarkeit – ein Standort, der sowohl für Familien als auch für Pendler und Naturliebhaber attraktiv ist.

Weitere Informationen

Aktuell sind alle 8 Einheiten vermietet. Kaltmiete (Ist): 26.684,28 € p.a.

Weitere Services

Lust auf eine Besichtigung?
Eine Frage zur Immobilie?
Nachricht hinzufügen
Mit der Nutzung der oben angegebenen Telefonnummer oder durch Klicken auf „Kontaktieren“ akzeptierst Du die Allgemeinen Nutzungsbedingungen, denen Du jederzeit widersprechen kannst. Weitere Informationen zum Datenschutz

Über den Anbieter

Feldweg 3, 01640 Coswig
partner badge
3 Jahre Partnerschaft
Sven ThielemannDein Kontakt
Online-ID: 26FHFCVD9S1E
ST Immobilien
Nachricht hinzufügen
Mit der Nutzung der oben angegebenen Telefonnummer oder durch Klicken auf „Kontaktieren“ akzeptierst Du die Allgemeinen Nutzungsbedingungen, denen Du jederzeit widersprechen kannst. Weitere Informationen zum Datenschutz
Wie zufrieden bist du mit dieser Seite (nicht mit der Immobilie selbst)?