Version: 8.25.1Navigation überspringen
Schwabenhaus Schwarzwald - Fabian Schwendemann - Handelsvertreter für die Schwabenhaus GmbH
670.302 €
5 Zimmer  •  140 m²  •  545 m² Grundstück

Einfamilienhaus zum Kauf • provisionsfrei
670302 €
4.788 €/m²
5 Zimmer  •  140 m²  •  545 m² Grundstück

Mit Präzision zu Ihrem Traumhaus

Herzlich willkommen in Ihrem technologisch hochwertigen Zuhause, wo Innovation und Komfort Hand in Hand gehen. Dieses Meisterwerk vereint modernste Technologie mit elegantem Design und erfüllt selbst die anspruchsvollsten Standards. Die Wohnräume sind mit innovativer Technologie ausgestattet, die den Komfort maximieren. Ihr Haus wird außerdem in der höchsten Effizienzklasse 40-KFN+QNG gebaut. Bei der individuellen Planung mit unseren Architekten kann alles an Ihre Wünsche, Bedürfnisse und Details angepasst werden. Das ist die Zukunft des Wohnens!

Merkmale

  • 545 m² Grundstück
  • Gäste-WC
.Architektonische Präzision: Die Immobilie besticht durch klare Linien und eine durchdachte Raumaufteilung, die höchsten Ansprüchen an Eleganz und Funktionalität gerecht wird.
.Hochwertige Materialien: Die Verwendung erstklassiger Materialien spiegelt das Streben nach Qualität und Langlebigkeit wider.
.Effiziente Raumnutzung: Jeder Quadratmeter ist optimal genutzt, um eine effiziente und dennoch großzügige Raumgestaltung zu ermöglichen.
.Nachhaltige Technologien: Innovative Energiesysteme und umweltfreundliche Technologien unterstreichen das Engagement für eine nachhaltige Lebensweise.
.Fortschrittliche Heiz- und Kühlsysteme: Intelligente Klimasteuerung für höchsten Komfort und maximale Energieeffizienz.

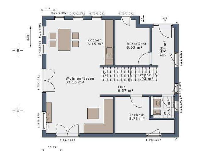
Grundrisse

Grundrisse
1 / 2

Realisiere Dein Projekt

Bausubstanz und Energie

Möchtest du Details zum Energieverbrauch?info_energy_calculation-icon
  • Zustand der ImmobilieNeubau, Projektiert
  • HeizungsartFußbodenheizung

Preisdetails

Kaufpreis
670302 €
4.787,87 €/m²
Provision für Käufer
provisionsfrei
Geschätzte Gesamtkosten
717.224 €1
Kaufpreis
670.302 €
Notarkosten (1,5%)
10.055 €
Grunderwerbsteuer (5%)
33.515 €
Grundbucheintrag (0,5%)
3.352 €
1Der angezeigte Wert ist eine automatisch berechnete Schätzung von immowelt.
2Bei den Angaben handelt es sich um ortsübliche Werte. Individuelle Kosten können abweichen.

Lage

address-icon
Rust (77977)
Der Anbieter hat die genaue Adresse nicht freigegeben
Baugrundstück in Rust - ca. 546 m² in Top-Lage!

Weitere Informationen

Sonstiges Zzgl. Kauf-Nebenkosten und Bau-Nebenkosten.

Bitte senden Sie uns eine schriftliche Anfrage über die Nachrichtenfunktion, wir werden Sie schnellstmöglich kontaktieren. Deshalb achten Sie bei Ihrer Anfrage bitte auf die Vollständigkeit und Richtigkeit Ihrer Daten, insbesondere auf die Angabe einer Telefonnummer.
Anfragen zur genauen Adresse des Objektes beantworten wir ihnen dann umgehend.

Anbauteile, Carport, Garage und Keller können Extras sein, die als Sonderausstattung angeboten werden. Abbildungen, Grundrisse und Flächenangaben sind beispielhaft und können Extras zeigen. Flächenangaben nach DIN 277.

Profitieren Sie jetzt von der Schwabenhaus Online Beratung und verwirklichen Sie Ihr Traumhaus https://www.schwabenhaus.de/anmeldung-hausbau-beratung-online/ Stichworte Anzahl der Schlafzimmer: 3, Anzahl der Badezimmer: 1, Anzahl der separaten WCs: 1

Weitere Services

Lust auf eine Besichtigung?
Eine Frage zur Immobilie?
Nachricht hinzufügen
Mit der Nutzung der oben angegebenen Telefonnummer oder durch Klicken auf „Kontaktieren“ akzeptierst Du die Allgemeinen Nutzungsbedingungen, denen Du jederzeit widersprechen kannst. Weitere Informationen zum Datenschutz

Über den Anbieter

Fischergasse 4/1, 77743 Altenheim
partner badge
Partnerschaft
Herr Fabian Schwendemann
Herr Fabian SchwendemannDein Kontakt
Online-ID: 26F9L81TVJHP
Referenznummer: SH-373354-Rust
Schwabenhaus Schwarzwald - Fabian Schwendemann - Handelsvertreter für die Schwabenhaus GmbH
title
Schwabenhaus Schwarzwald - Fabian Schwendemann - Handelsvertreter für die Schwabenhaus GmbH
Bewertung: 5 von 5 Sternen
Nachricht hinzufügen
Mit der Nutzung der oben angegebenen Telefonnummer oder durch Klicken auf „Kontaktieren“ akzeptierst Du die Allgemeinen Nutzungsbedingungen, denen Du jederzeit widersprechen kannst. Weitere Informationen zum Datenschutz
Wie zufrieden bist du mit dieser Seite (nicht mit der Immobilie selbst)?