Version: 8.25.1Navigation überspringen
BUWOG Immobilien Treuhand GmbH­
1.302 €
3 Zimmer  •  86,4 m²  •  3. Geschoss

Wohnung zur Miete
1.302 €
3 Zimmer  •  86,4 m²  •  3. Geschoss

Lichterfüllte 3-Zi.-Wohnung mit Balkon und elegantem Tageslichtbad *ERSTBEZUG*

Diese großzügige Etagenwohnung überzeugt mit lichtdurchfluteten Wohn- und Schlafräumen, die dank hochwertigem Parkett ein stilvolles Ambiente bieten. Die offene Küche ist mit einer modernen, neuen Einbauküche ausgestattet und schafft das perfekte Umfeld für kulinarische Genussmomente. Zwei weitläufige Schlafzimmer mit durchdachtem Schnitt bieten viel Raum zur persönlichen Entfaltung. Das elegante Tageslichtbad verfügt über Dusche und WC, ergänzt durch eine separate Gästetoilette. Ein praktischer Abstellraum sorgt für Ordnung, während ein eigener Waschmaschinenanschluss zusätzlichen Komfort bietet. Der sonnige Balkon lädt zum Entspannen ein. Ein Tiefgaragenstellplatz kann auf Wunsch angemietet werden.
Erfahren Sie mehr auf unserer Projektseite: https://eutighofer-tor.buwog.com/

Auf dem ehemaligen "Brücke"-Areal der Gmünder Weststadt entsteht das Neubau-Ensemble "Eutighofer Tor" aus 7 modernen Wohn- und Geschäftshäusern mit insgesamt 88 Wohnungen. Die Ausstattung der Wohnungen lässt keine Wünsche offen: Eichenparkettboden mit Fußbodenheizung, dreifachverglaste Schallschutzfenster, hochwertige und vollständig ausgestattete Einbauküchen mit Markengeräten, Malerflies als Wandverkleidung, modern geflieste Bäder mit Markenarmaturen, Gegensprechanlage mit Videofunktion, Breitbandkabelanschluss in allen Räumen und viele Annehmlichkeiten mehr. Die meisten Wohnungen verfügen über einen Außenbereich in Form einer Terrasse, einem Balkon oder einer Dachterrasse. Ein Hausmeisterservice kümmert sich liebevoll um die Pflege und Instandhaltung des Objektes und der Außenanlagen.

Merkmale

  • Bezug: sofort
  • 3. Geschoss
  • Personenaufzug
  • Einbauküche
  • Gäste-WC
  • Balkon
Barrierearmes Gebäude; Aufzug; Balkon; Gäste WC; Einbauküche; offene Küche; Abstellraum; Fahrradabstellraum; Videosprechanlage; vollständige Wärmedämmung; Spielplatz; Mehrfamilienhaus;

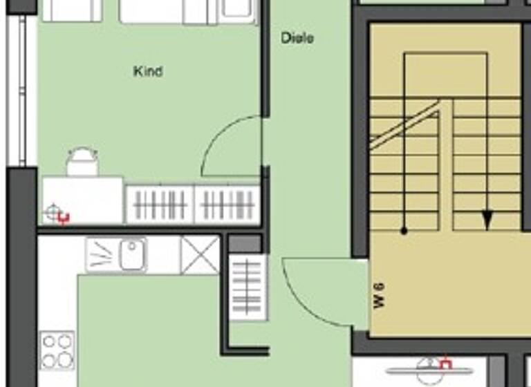
Grundrisse

Grundrisse
1 / 1

Realisiere Dein Projekt

Bausubstanz und Energie

Energieausweis

B
  • Baujahr2025
  • EnergieträgerPellets
MediumRectangleTop

Mietkosten

Warmmiete
1.590,26 €
Kaltmiete
15,07 €/m²
1.301,60 €
Nebenkosten
172,74 €
Heizkosten
115,92 €
Kaution
3904.8 €

Lage

address-icon
Eutighofer Straße 21Schwäbisch Gmünd (73525)
Schwäbisch Gmünd, die älteste Stauferstadt, liegt malerisch am Fuße der Schwäbischen Alb in Baden-Württemberg. Die Stadt besticht durch ihre historische Altstadt mit prächtigen Fachwerkhäusern, beeindruckenden Kirchen und idyllischen Plätzen. Bekannt für ihre Gold- und Silberschmiedetradition, bietet Schwäbisch Gmünd eine hohe Lebensqualität mit viel Grün, kulturellen Angeboten und einer lebendigen Innenstadt. Naturfreunde genießen die Nähe zum Remstal und zahlreiche Freizeitmöglichkeiten. Dank guter Verkehrsanbindung an Stuttgart und Ulm ist die Stadt ein attraktiver Wohn- und Wirtschaftsstandort.

Weitere Informationen

Sonstiges Hinweise darüber, wie die BUWOG-Immobilien Treuhand Ihre personenbezogenen Daten als Interessent verarbeitet, erhalten Sie unter www.buwog-immobilientreuhand.de/datenschutz. Alle Angaben in diesem Exposé wurden sorgfältig und so vollständig wie möglich gemacht. Gleichwohl kann das Vorhandensein von Fehlern nicht ausgeschlossen werden. Die Angaben in diesem Expose erfolgen daher ohne jede Gewähr. Maßgeblich sind die im Mietvertrag geschlossenen Vereinbarungen. Soweit die Grundrissgrafiken Maßangaben und Einrichtungen enthalten, wird auch für diese jegliche Haftung ausgeschlossen. Mietverhandlungen sind ausschließlich über den benannten Ansprechpartner zu führen. Mietpreisänderungen bleiben vorbehalten.

Weitere Immobilienangebote finden Sie unter www.buwog-immobilientreuhand.de und in der BUWOG HOME App.

Stichworte Fahrradraum, Anzahl Balkone: 1

Weitere Services

Lust auf eine Besichtigung?
Eine Frage zur Immobilie?
Mit einer persönlichen Nachricht hast du bessere Chancen auf eine Antwort.
Mit der Nutzung der oben angegebenen Telefonnummer oder durch Klicken auf „Kontaktieren“ akzeptierst Du die Allgemeinen Nutzungsbedingungen, denen Du jederzeit widersprechen kannst. Weitere Informationen zum Datenschutz

Über den Anbieter

Bramfelder Chaussee 104 a, 22177 Hamburg
partner badge
10 Jahre Partnerschaft
Herr Felix StäblerDein Kontakt
Keine Telefonnummer hinterlegt
Keine Telefonnummer hinterlegt
Online-ID: 26UD2FZQNMIG
Referenznummer: 90-1795720006
BUWOG Immobilien Treuhand GmbH­
BUWOG Immobilien Treuhand GmbH­
Bewertung: 3,8 von 5 Sternen
Mit einer persönlichen Nachricht hast du bessere Chancen auf eine Antwort.
Mit der Nutzung der oben angegebenen Telefonnummer oder durch Klicken auf „Kontaktieren“ akzeptierst Du die Allgemeinen Nutzungsbedingungen, denen Du jederzeit widersprechen kannst. Weitere Informationen zum Datenschutz
MediumRectangleTop
MediumRectangleBottom
MediumRectangleTop
Wie zufrieden bist du mit dieser Seite (nicht mit der Immobilie selbst)?