Version: 8.25.1Navigation überspringen
384.150 €
3 Zimmer  •  90,8 m²  •  Geschoss 3/4

Wohnung zum Kauf - Erstbezug • provisionsfrei
384150 €
4.230 €/m²
3 Zimmer  •  90,8 m²  •  Geschoss 3/4

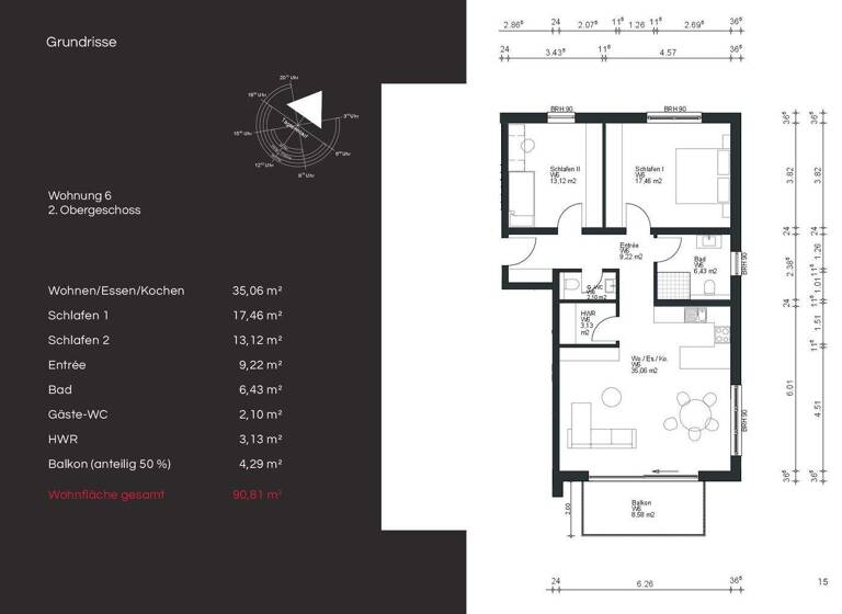
WE6: moderne 3-Zimmer-Wohnung mit Balkon in Trier-Biewer

Willkommen in dieser einladenden Wohnung in Trier-Biewer! Dieses attraktive Angebot umfasst eine großzügige Wohnfläche von 91 m², die sich ideal für Familien oder Paare eignet. Mit 3 hellen Zimmern, einem Badezimmer und einem separaten WC bietet diese Wohnung alles, was Sie für ein komfortables Leben benötigen. Die Wohnung befindet sich im 2. Stock eines gepflegten 4-stöckigen Gebäudes, dass dieses Jahr gebaut werden soll.

Merkmale

  • 3. Geschoss/4 Geschossen
  • offene Küche
  • Personenaufzug
  • Keller (gesamt 5,2 m²)
  • 9 Carports, Außen-Stellplatz
  • 1 WC, Gäste-WC
  • Balkon (gesamt 8,6 m²)
  • Fernblick

Grundrisse

Grundrisse
1 / 2

Realisiere Dein Projekt

Bausubstanz und Energie

Energieausweis

A+
  • Zustand der ImmobilieErstbezug
  • HaustypKfW 55
  • HeizungsartFußbodenheizung
  • EnergieträgerElektro, Luft-/Wasser-Wärmepumpe
MediumRectangleTop

Preisdetails

Kaufpreis
384150 €
4.230,26 €/m²
Preis pro Stellplatz
22000 €
Provision für Käufer
provisionsfrei
Geschätzte Gesamtkosten
411.041 €1
Kaufpreis
384.150 €
Notarkosten (1,5%)
5.762 €
Grunderwerbsteuer (5%)
19.208 €
Grundbucheintrag (0,5%)
1.921 €
1Der angezeigte Wert ist eine automatisch berechnete Schätzung von immowelt.
2Bei den Angaben handelt es sich um ortsübliche Werte. Individuelle Kosten können abweichen.

Lage

address-icon
Im Litzelholz 13BiewerTrier (54293)
Neben der atemberaubenden Kulisse der roten Sandsteinfelsen auf der linken Moselseite liegt der zentrale Ortsteil Biewer. Er ist einer von 19 Ortsteilen der Stadt Trier und hat ca. 2.000 Einwohner. Biewer verfügt über eine gute Anbindung an öffentliche Verkehrsmittel sowie eine verkehrsgünstige Lage zu Bundesstraßen und Autobahnanschlüssen nach Luxemburg, Saarbrücken und Koblenz. Die Landschaft und das kulturelle Angebot rund um den Ort haben einiges zu bieten. Familien finden in Biewer ein lebendiges Umfeld mit Musik-, Sport- und Kulturvereinen, Spielplätzen, der Kindertagesstätte St. Jakobus und der Grundschule Biewer.

Weitere Services

Lust auf eine Besichtigung?
Eine Frage zur Immobilie?
Nachricht hinzufügen
Mit der Nutzung der oben angegebenen Telefonnummer oder durch Klicken auf „Kontaktieren“ akzeptierst Du die Allgemeinen Nutzungsbedingungen, denen Du jederzeit widersprechen kannst. Weitere Informationen zum Datenschutz

Über den Anbieter

Sauerstaden 40, 54669 Bollendorf
partner badge
10 Jahre Partnerschaft
Herr Andreas FaberDein Kontakt
Online-ID: 25HBZDKTYK9K
Faberhaus GmbH
Bewertung: 2,8 von 5 Sternen
Nachricht hinzufügen
Mit der Nutzung der oben angegebenen Telefonnummer oder durch Klicken auf „Kontaktieren“ akzeptierst Du die Allgemeinen Nutzungsbedingungen, denen Du jederzeit widersprechen kannst. Weitere Informationen zum Datenschutz
MediumRectangleTop
MediumRectangleBottom
MediumRectangleTop
Wie zufrieden bist du mit dieser Seite (nicht mit der Immobilie selbst)?