Version: 8.24.0Navigation überspringen
Preis auf Anfrage
2 Zimmer  •  41,8 m²
Immowelt logo

Bungalow zum Kauf • provisionsfrei
2 Zimmer  •  41,8 m²

KFW 55 - Neubau Service Bungalows - Geiselbach



In Geiselbach entsteht in Kürze
der Neubau von 25 Service-Bungalows und einer Tagespflege
für ein selbstbestimmtes gutes Leben bis ins hohe Alter !

Die Einzel - und Reihenbungalows haben eine unterschiedliche Größe
von 2-3 Zimmer mit Wohnfläche von ca 41 qm bis zu 98 qm.
Ein Stellplatz, sowie die Außenanlagen gehören zum diesem schlüsselfertigen Angebot.

Zahlreiche Wunschleistungen
bis hin zu ambulanten Pflege sind möglich und optional buchbar.


Die gute Infrastruktur nahe Hanau / Aschaffenburg macht das
Neubau - Projekt auch für Kapitalanleger attraktiv !

Baustart geplant: 2026
Baufertigstellung geplant: 2028

Merkmale

  • Bezug: 2028
  • 1 Geschoss
  • offene Küche
  • Kein Keller
  • Außen-Stellplatz
  • Gartenanteil
  • Terrasse
  • Barrierefrei

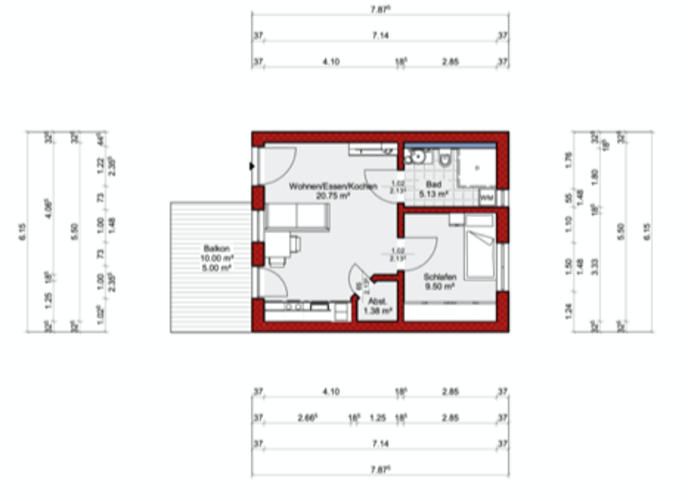
Grundrisse

Grundrisse
1 / 3

Realisiere Dein Projekt

Bausubstanz und Energie

Der Anbieter hat keine Informationen zum Energieverbrauch bereit gestellt.
  • Baujahr2026
  • Zustand der ImmobilieNeubau, Holzhaus
  • HeizungsartFußbodenheizung
  • EnergieträgerFernwärme
Immowelt logo

Preisdetails

Provision für Käufer
provisionsfrei

Lage

address-icon
OmersbachGeiselbach (63826)
Der Anbieter hat die genaue Adresse nicht freigegeben
Geiselbach
Geiselbach ist eine kleine Gemeinde im unterfränkischen Landkreis Aschaffenburg in Bayern, Deutschland. Sie liegt im nordwestlichen Teil Bayerns, direkt an der Grenze zu Hessen und gehört zur Region Bayerischer Untermain. Die Gemeinde besteht aus den Ortsteilen Geiselbach und Omersbach und hat eine ländlich geprägte Struktur mit zahlreichen Einfamilienhäusern, kleinen Bauernhöfen und Naturflächen.

Lage

Geiselbach befindet sich etwa 15 Kilometer nordöstlich von Aschaffenburg und etwa 50 Kilometer östlich von Frankfurt am Main. Die Nähe zu diesen beiden Städten bietet für die Bewohner gute Anbindungen an größere urbane Zentren, während sie dennoch in einer eher ruhigen und naturnahen Umgebung leben können. Die Region um Geiselbach ist geprägt von hügeligen Landschaften, dichten Wäldern und weiten Feldern, was sie besonders attraktiv für Naturliebhaber macht.

Geografisch liegt Geiselbach im Kahlgrund, einer fruchtbaren Talsenke, die von dem kleinen Fluss Kahl durchflossen wird. Die Region um den Kahlgrund ist bekannt für ihre malerischen Dörfer, Weinberge und Streuobstwiesen. Die natürliche Umgebung bietet zahlreiche Möglichkeiten für Wanderungen, Fahrradtouren und andere Freizeitaktivitäten im Freien. Durch seine Lage im bayerischen Teil des Spessarts grenzt Geiselbach an eines der größten zusammenhängenden Waldgebiete Deutschlands, was einen hohen Erholungswert bietet.

Verkehrsanbindung und Infrastruktur

Trotz ihrer ländlichen Prägung ist die Gemeinde Geiselbach verkehrstechnisch gut angebunden. Sie profitiert von der Nähe zur Autobahn A3, einer der wichtigsten Verkehrsadern Süddeutschlands, die die Städte Frankfurt und Würzburg verbindet. Über die Anschlussstelle „Hösbach“ ist die A3 in etwa 10 bis 15 Minuten erreichbar, was den Bewohnern schnelle Verbindungen sowohl nach Aschaffenburg als auch nach Frankfurt und Würzburg ermöglicht.

Für den öffentlichen Nahverkehr ist Geiselbach über Buslinien mit umliegenden Städten und Gemeinden wie Schöllkrippen, Mömbris und Aschaffenburg verbunden. Die Buslinien werden in der Regel vom Verkehrsverbund Rhein-Main (RMV) betrieben, was es Pendlern ermöglicht, bequem zu den größeren Bahnhöfen zu gelangen. Der nächstgelegene Bahnhof befindet sich in Schöllkrippen, etwa zehn Kilometer entfernt, und bietet regelmäßige Zugverbindungen nach Aschaffenburg. Von dort bestehen direkte Zugverbindungen in Richtung Frankfurt, Hanau, Würzburg und andere größere Städte.

Bildungseinrichtungen

Geiselbach verfügt über eine Grundschule, die für die jüngeren Schüler der Gemeinde zuständig ist. Für die weiterführende Schulbildung besuchen die meisten Schüler Schulen in den nahegelegenen Städten wie Aschaffenburg, Alzenau oder Mömbris. Dort stehen ihnen Realschulen, Gymnasien und Berufsschulen zur Verfügung.

Die Gemeinde bietet zudem Zugang zu mehreren Kindergärten und Betreuungseinrichtungen für Kleinkinder. Die Anbindung an größere Schulzentren ist durch den öffentlichen Nahverkehr gut gesichert, sodass Schüler aus Geiselbach relativ unkompliziert weiterführende Schulen in den Nachbarstädten besuchen können.

Einkaufsmöglichkeiten und medizinische Versorgung

In Geiselbach selbst gibt es eine begrenzte Auswahl an Einkaufsmöglichkeiten, darunter kleinere Lebensmittelgeschäfte und Bäckereien, die die Grundversorgung der Bewohner sichern. Für größere Einkäufe fahren die Bewohner oft nach Aschaffenburg, Alzenau oder Schöllkrippen, wo es Supermärkte, Einkaufszentren und Fachgeschäfte gibt. Auch in Sachen Gastronomie bietet Geiselbach einige traditionelle bayerische Gasthäuser und kleinere Cafés, die das Ortsbild bereichern.

Die medizinische Versorgung ist in Geiselbach ebenfalls gewährleistet, allerdings nur in Form von Hausärzten und Apotheken. Für spezialisierte Facharztbesuche oder Krankenhausaufenthalte ist Aschaffenburg die nächstgelegene Option. In der Stadt befinden sich mehrere Kliniken und Facharztpraxen, die alle medizinischen Bedürfnisse abdecken. Ein Rettungsdienst und eine Apotheke vor Ort sorgen dafür, dass die Notfallversorgung in der Gemeinde gewährleistet ist.

Freizeit und Kultur

Geiselbach und die umliegende Region bieten viele Freizeitmöglichkeiten, besonders im Bereich Natur und Erholung. Wandern, Radfahren und Spaziergänge in den nahegelegenen Wäldern und auf den Hügeln des Spessarts sind bei den Bewohnern und Besuchern besonders beliebt. Die Landschaft ist geprägt von einer abwechslungsreichen Flora und Fauna, die besonders Naturfreunde und Familien anspricht.

Kulturell gesehen bietet Geiselbach kleinere regionale Feste und Veranstaltungen, die vor allem durch die lokale Gemeinschaft und die Vereine organisiert werden. Es gibt mehrere Sportvereine, Musikgruppen und Schützenvereine, die das kulturelle Leben der Gemeinde prägen. Besonders in den Sommermonaten finden oft Dorffeste, Märkte und traditionelle Veranstaltungen statt, die von den Bewohnern gerne besucht werden.

Zusammenfassung

Geiselbach ist eine idyllisch gelegene Gemeinde mit guter Verkehrsanbindung an größere Städte, einer überschaubaren, aber ausreichenden Infrastruktur und einem hohen Freizeitwert in der Natur. Durch die Nähe zur A3 und zum Rhein-Main-Gebiet ist die Gemeinde besonders attraktiv für Pendler, die naturnah wohnen, aber trotzdem schnell zu urbanen Zentren gelangen möchten.

Weitere Informationen

INFOS - die Service Bungalows Service-Bungalows: Komfortabel und barrierefrei

Die neuen Bungalows haben unterschiedliche Größen von ca 40 qm bis zu 90 qm mit 2 oder 3 Zimmern und sind speziell auf die Anforderungen für ältere Bewohner ausgerichtet. Sie sind barrierefrei gestaltet und bieten viel Bewegungsfreiheit. Die moderne Ausstattung und großzügige Raumaufteilung bietet ein Höchstmaß an Komfort. Dank der optional buchbaren Serviceleistungen und der Sicherheit des Projektes können Senioren ein selbstbestimmtes und unabhängiges Leben bis ins hohe Alter führen .

Die Service-Bungalows in Geiselbach zeichnen sich durch ihre hochwertige energieeffiziente Bauweise aus.
Die ruhige und naturnahe Lage lädt die Bewohner ein, die Umgebung zu genießen und gleichzeitig am sozialen Leben der Gemeinde teilzunehmen.

Tagespflege durch die Caritas

Ein besonderes Highlight des Projekts ist die integrierte Tagespflegeeinrichtung, die von der Caritas betrieben wird. Die Caritas ist bekannt für ihre langjährige Erfahrung und ihr Engagement im Bereich der Pflege und Betreuung älterer Menschen. In der Tagespflege wird den Bewohnern und auch externen Tagesgästen eine professionelle Betreuung durch qualifiziertes Pflegepersonal geboten.

Die Tagespflege bietet Seniorinnen und Senioren die Möglichkeit, ihren Alltag abwechslungsreich und in Gesellschaft zu gestalten. Neben verschiedenen Aktivitäten wie gemeinsames Essen, Spielen, Kreativangeboten und Bewegungstherapien wird auch auf die individuellen Bedürfnisse jedes einzelnen eingegangen. Die Betreuung erfolgt in einer familiären Atmosphäre, die den Alltag bereichert und neue soziale Kontakte fördert.

Mehr als nur Wohnen: Ein Rundum-Sorglos-Paket

Das Konzept der seniorengerechten Service-Bungalows mit der angeschlossenen Tagespflege durch die Caritas bietet älteren Menschen und deren Angehörigen ein Rundum-Sorglos-Paket. Die Kombination aus einem eigenständigen Wohnen in den Service-Bungalows und der Möglichkeit der Tagespflege vor Ort schafft ein hohes Maß an Flexibilität und Sicherheit. Die Bewohner haben jederzeit die Option, bei Bedarf zusätzliche Unterstützung in Anspruch zu nehmen, und gleichzeitig die Gewissheit, in einer Gemeinschaft gut aufgehoben zu sein.
Zusatzleistungen sind optional buchbar. Von häuslicher Pflege, bis zum Rasen mähen, oder Gartenarbeit sind alle Leistungen zubuchbar.

Insgesamt stellt dieses Projekt eine wertvolle Ergänzung für die Gemeinde Geiselbach dar. Es bietet eine neue Perspektive für das Wohnen im Alter und fördert die Lebensqualität der Senioren in einem angenehmen und sicheren Umfeld.

Hilfe und Unterstützung
Komfort & Service
Wenn körperliche Arbeit immer schwerer fällt, können Sie einen Hausmeisterservice beauftragen. Dieser übernimmt auf Wunsch alle anfallenden Arbeiten rund ums Haus - von der kompletten Gartenpflege, über kleinere Reparaturen bis hin zum Winterdienst. Ebenso ist eine Unterstützung bei der Hausreinigung und dem Einkaufen möglich. Gerne erhalten Sie auch komplette Mahlzeiten, die Ihnen ganz frisch zubereitet geliefert werden.

Gesundheit und Pflege
Wenn es nötig ist können Sie alle mobilen Pflegeleistungen mit kürzesten Wegen vom benachbarten Pflegedienst Wehner erhalten. So ist immer eine bestmögliche Versorgung gewährleistet und in Verbindung mit einem Notrufsystem können Sie so lange wie nur möglich den Lebensabend in der eigenen Umgebung verbringen.

Besichtigungstermine Sie sind interessiert ?
Wir sind vor Ort -
buchen Sie einen Beratungstermin mit uns.
Wir finden Ihren Wunsch Bungalow - Ihr Wunschzuhause.

Gerne berate ich Sie
Elke Rohde
0172 8969557
Datenschutz - Einwilligung Verkauf & Vermietung
Mit Absenden des Formulars, bin ich damit einverstanden, dass meine Daten zur weiteren Bearbeitung meiner Anfrage gespeichert und verarbeitet werden. Eine Weitergabe an Dritte erfolgt nicht. Haftung und Copyright Bei dieser Anzeige handelt sich um eine Vorab Information.
Eventuelle Änderungen sind vorbehalten.
Maßgeblich ist immer die notariellen Unterlagen samt aller Pläne und Berechnungen.
Bilder und Textmaterial sind geschützt,
eine Weitergabe nur nach Genehmigung von uns .

Weitere Services

Lust auf eine Besichtigung?
Eine Frage zur Immobilie?
Nachricht hinzufügen
Mit der Nutzung der oben angegebenen Telefonnummer oder durch Klicken auf „Kontaktieren“ akzeptierst Du die Allgemeinen Nutzungsbedingungen, denen Du jederzeit widersprechen kannst. Weitere Informationen zum Datenschutz

Über den Anbieter

Balthasar-Neumann-Straße 4, 97299 Zell am Main
partner badgepartner badge
Partnerschaft + Diamond Partner
Frau Elke Rohde Dipl.-Kauffrau Elke E. Rohde
Frau Elke Rohde Dipl.-Kauffrau Elke E. RohdeDein Kontakt

Weitere Unterlagen

Online-ID: 2nwxu5k
Referenznummer: 2026-2081
Rohde Immobilien - www.rohde-immo.de
title
Rohde Immobilien - www.rohde-immo.de
Bewertung: 4,7 von 5 Sternen
Nachricht hinzufügen
Mit der Nutzung der oben angegebenen Telefonnummer oder durch Klicken auf „Kontaktieren“ akzeptierst Du die Allgemeinen Nutzungsbedingungen, denen Du jederzeit widersprechen kannst. Weitere Informationen zum Datenschutz
Wie zufrieden bist du mit dieser Seite (nicht mit der Immobilie selbst)?