
Sinnfalt Immobilien GmbH
Herr Björn Giesel
004 ···
Nr. anzeigenPreise & Kosten
Provision für Käufer
3,57 % inkl. MwSt. inkl. MwSt.
Lage
Das schöne Reihenendhaus liegt in der Gemeinde Auggen im Herzen des Markgräflerlands im Landkreis Breisgau-Hochschwarzwald - einer der sonnenreichsten Regionen Deutschlands. Eingebettet zwischen Weinbergen, sanften Hügeln und der Nähe zum Schwarzwald bietet Auggen eine besonders reizvolle Wohnlage mit hohem Freizeitwert und...
Das Haus
Kategorie
Reihenendhaus
Baujahr
1992
Bezug
sofort
Energie & Heizung
Warum sehe ich diese Anzeige? – Du siehst diese Anzeige basierend auf Ihrer Navigation auf unserer Website und den Suchkriterien, die du verwendet hast.
Energieausweistyp
Verbrauchsausweis
Gebäudetyp
Wohngebäude
Baujahr laut Energieausweis
1992
Wesentliche Energieträger
GAS
Gültigkeit
bis 07.07.2035
Effizienzklasse
E
Endenergieverbrauch
149,73 kWh/(m²·a)
Weitere Energiedaten
Energieträger
Gas, Solar
Details
Objektbeschreibung
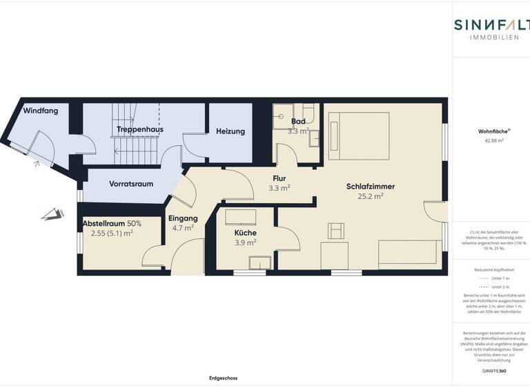
Dieses gepflegte, massiv gebaute Reihenendhaus von 1992 im Wein- und Erholungsort Auggen bietet viel Raum und flexible Nutzungsmöglichkeiten. Auf 3 Ebenen verteilen sich zwei separate Wohneinheiten: eine großzügige 4-Zimmer-Maisonettewohnung mit ca. 113 m² Wohnfläche und eine ca. 43 m² große 1-Zimmer-Einliegerwohnung mit...
Ausstattung
- Massives Reihenendhaus aus 1992 mit 2 Wohneinheiten
- 4 Zimmer-Maisonettewohnung im Obergeschoss und Dachgeschoss ca. 113 m² mit Einbauküche, 2 Balkone
- 1 Zimmer-Einliegerwohnung im Erdgeschoss ca. 43 m² mit großer Terrasse/Gartenbereich
- Fußbodenheizung im Erdgeschoss und Obergeschoss, Heizkörper im...
Preisinformation
1 Carportplatz
1 Garagenstellplatz
Weitere Informationen
Stichworte
Anzahl der Schlafzimmer: 4, Anzahl der Badezimmer: 2, Anzahl der separaten WCs: 1, Anzahl Balkone: 2, Anzahl Terrassen: 1, 2 Etagen, Distanz zum Kindergarten: 0.60, Distanz zur Grundschule: 0.80, Distanz zur Realschule: 5.00, Distanz zum Gymnasium: 5.00, Distanz zur Autobahn: 5.00, Distanz vom Zentrum...
Anbieter der Immobilie
Sinnfalt Immobilien GmbH
Staufener Straße 25, 79189 Bad Krozingen
Online-ID: 2kyd25x
Referenznummer: SF-07-25-68-BG
Finde Angebote wie dieses
Hier geht es zu unserem Impressum, den Allgemeinen Geschäftsbedingungen, den Hinweisen zum Datenschutz und nutzungsbasierter Online-Werbung.