Version: 8.24.0Navigation ĂĽberspringen
1.500 €
238 m² Bürofläche
Immowelt logo

Büro zur Miete • provisionsfrei
1.500 €
238 m² Bürofläche

!! ca. 240 m² Bürofläche in Frankenberg mit PKW-Stellplätzen !!

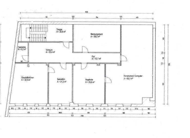
Objektbeschreibung Hierbei handelt es sich um eine ca. 238 m² große Bürofläche im 1. OG eines Bürogebäudes in Frankenberg. Die gesamte Fläche kann noch mit neuem Fußbodenbelag ausgestattet werden. Das Büro besteht derzeit aus fünf Räumen. Durch Einbau einer Trennwand könnten sechs Zimmer entstehen. Weiterhin ist eine Teeküche mit Einbauküche vorhanden. Im EG befinden sich die getrennten Damen- und Herren-WC-Anlagen. Die Fläche im EG kann auch sehr gut z. B.als Ausstellungs- oder Beratungsfläche genutzt werde. Vor dem Gebäude stehen ausreichend PKW-Stellplätze zur Verfügung.
Weiterhin können auch Lagerflächen und Gewerbeflächen sowie eine ca. 1000 m² große Gewerbehalle angemietet werden. Raumaufteilung 5 bis 6 Zimmer, Teeküche, WC-Anlagen, zusätzlich auch Gewerbe- oder Lagerflächen anmietbar

Merkmale

  • 1. Geschoss
  • TeekĂĽche
  • 10 Stellplätze: AuĂźen-Stellplatz
  • LKW-Zufahrt
  • Bodenbelag: Fliesen, Laminat
  • Beleuchtung: Deckenbeleuchtung

Grundrisse

Grundrisse
1 / 1

Realisiere Dein Projekt

Bausubstanz und Energie

Energieausweis

Endenergieverbrauch (Wärme)

Endenergieverbrauch (Strom)

  • HeizungsartZentralheizung
Immowelt logo

Mietkosten

Warmmiete
2.150 €
Nettomiete
1.500 €
Nebenkosten
650 €
Heizkosten
in Nebenkosten enthalten
Provision fĂĽr Mieter
provisionsfrei
Kaution
2 Monatskaltmieten

Lage

address-icon
Jochen-Köhler-Straße 3, Frankenberg (09669)
Frankenberg, in wenigen Minuten Anschluss zur BAB 4 erreichbar

Weitere Informationen

Besichtigungstermine Gern beantworte ich Ihre Fragen oder ermögliche Ihnen einen Besichtigungstermin. Sie erreichen mich unter der Rufnummer 0371 / 57 39 87 66. Stichworte Serviceleistungen: Hausmeister Sonstiges: Getrennte Damen- und Herren-WCs

Weitere Services

Lust auf eine Besichtigung?
Eine Frage zur Immobilie?
Nachricht hinzufĂĽgen
Mit der Nutzung der oben angegebenen Telefonnummer oder durch Klicken auf „Kontaktieren“ akzeptierst Du die Allgemeinen Nutzungsbedingungen, denen Du jederzeit widersprechen kannst. Weitere Informationen zum Datenschutz

Ăśber den Anbieter

FĂĽrstenstr. 28, 09130 Chemnitz
partner badge
Partnerschaft
Herr Andreas NaglerDein Kontakt
Online-ID: 2nvmf5p
Referenznummer: J-59-F-B;
Immobilienservice Nagler
Immobilienservice Nagler
Bewertung: 4,5 von 5 Sternen
Nachricht hinzufĂĽgen
Mit der Nutzung der oben angegebenen Telefonnummer oder durch Klicken auf „Kontaktieren“ akzeptierst Du die Allgemeinen Nutzungsbedingungen, denen Du jederzeit widersprechen kannst. Weitere Informationen zum Datenschutz
Wie zufrieden bist du mit dieser Seite (nicht mit der Immobilie selbst)?