Ihr neues Zuhause: Reihenendhaus mit Garten und Carport
Dieses gepflegte Reihenendhaus aus dem Jahr 2001 vereint großzügigen Wohnraum mit einer durchdachten Raumaufteilung - ideal für Familien, die Wert auf Komfort und Stil legen.
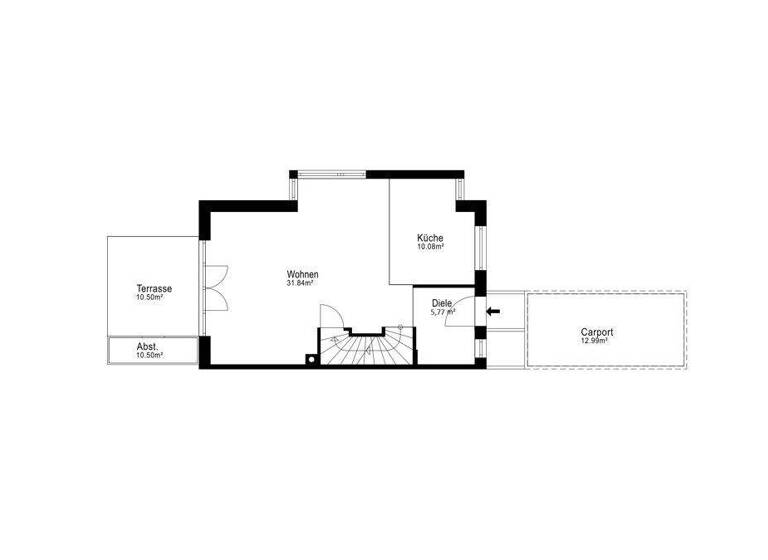
Auf ca. 136,00 m² Wohnfläche verteilt über drei Etagen bietet das Haus auf einem 212,00 m² großen Grundstück alles, was modernes Wohnen ausmacht. Das Erdgeschoss empfängt mit einem einladenden Flur, einer hochwertigen Einbauküche mit schwarzer Granit-Arbeitsplatte sowie einem lichtdurchfluteten Wohn- und Essbereich, der sich nahtlos zur Terrasse und dem Garten öffnet. Besonders ins Auge fallen die exklusiven Fliesen aus Italien, die dem Erdgeschoss eine elegante, mediterrane Note verleihen.
Im Obergeschoss befinden sich drei gut geschnittene Schlafzimmer sowie ein Wannenbad. Das ausgebaute Dachgeschoss bietet zwei weitere helle Zimmer und ein Duschbad - flexibel nutzbar als Kinderzimmer, Gästebereiche oder Homeoffice. Insgesamt stehen sechs Zimmer zur Verfügung.
Beheizt wird die Immobilie per Fernwärme; im Erdgeschoss und im Obergeschossbad ergänzt eine Fußbodenheizung das Heizkonzept. Für ein ruhiges und energieeffizientes Wohnumfeld sorgen Kunststofffenster mit Isolierverglasung. Das Objekt befindet sich in gepflegtem Zustand und wartet nahezu einzugsbereit darauf, Ihr neues Zuhause zu werden.
Abgerundet wird das Angebot durch einen Carport sowie einen zusätzlichen Außenstellplatz. Die Einbauküche ist im Kaufpreis inbegriffen.
Merkmale
212 m² Grundstück
Einbauküche, offene Küche
Kein Keller
Garten
Terrasse
Badezimmer: Badewanne, Bad mit Fenster
Bodenbelag: Fliesen, Laminat, Teppich
Fenster: Kunststoffrahmen mit Isolierverglasung
Heizung und Warmwasser Fernwärmeanlage, Fußbodenheizung im Erdgeschoss und im Bad
Küche helle, hochwertige Einbauküche, schwarze Granit-Arbeitsplatte, vollständig ausgestattet mit Elektrogeräten
Bäder: Wannenbad im Obergeschoss, Duschbad im Dachgeschoss
Besonderheiten: zwei Pkw-Stellplätze (ein Carport, ein Außenstellplatz) Garten, Eckhaus, Einbauküche inklusive, familienfreundliche Lage
Grundrisse
Grundrisse
1 / 3
Realisiere Dein Projekt
Bausubstanz und Energie
Energieausweis
C
Baujahr2001
Zustand der ImmobilieGepflegt
HeizungsartFußbodenheizung
EnergieträgerFernwärme
Preisdetails
Kaufpreis
564000 €564.000 €
4.137,02 €/m²
Provision für Käufer
3,00 % inkl. MwSt.
Geschätzte Gesamtkosten
623.220 €1
Kaufpreis
564.000 €
Kaufnebenkosten
59.220 €
2
Notarkosten (1,5%)
8.460 €
Grunderwerbsteuer (5,5%)
31.020 €
Provision für Käufer (3%)
16.920 €
Grundbucheintrag (0,5%)
2.820 €
1Der angezeigte Wert ist eine automatisch berechnete Schätzung von immowelt.
2Bei den Angaben handelt es sich um ortsübliche Werte. Individuelle Kosten können abweichen.
Lage
Lohbrügge, Hamburg-Boberg (21031)
Der Anbieter hat die genaue Adresse nicht freigegeben
Lohbrügge zählt seit Jahren zu den gefragtesten Stadtteilen Hamburgs - und das aus gutem Grund. Die Nähe zur Innenstadt, eine hervorragende Infrastruktur mit vielfältigen Einkaufsmöglichkeiten sowie die direkte Anbindung an das Bergedorfer Einkaufscenter (CCB) machen den Stadtteil besonders attraktiv. Ob Supermärkte, Fachgeschäfte oder alteingesessene Läden des täglichen Bedarfs - hier ist alles bequem erreichbar.
Familien finden in Lohbrügge ideale Bedingungen: Ein breites Angebot an Kindergärten, Grund- und weiterführenden Schulen sowie eine gute ärztliche Versorgung sorgen dafür, dass alle Generationen bestens aufgehoben sind.
Die Immobilie liegt in einem naturnahen Teil des begehrten Boberg - einer der grünsten und ruhigsten Ecken Lohbrügges. Das nahegelegene Landschaftsschutzgebiet Boberger Niederung mit seinen einzigartigen Dünen ist ein wahres Naturjuwel - und das direkt vor der Haustür. Ob Familienausflug, Morgenspaziergang oder Feierabendlauf: Die Natur gehört hier einfach zum Alltag.
Die Verkehrsanbindung überzeugt auf ganzer Linie: Über die A25 und die B5 erreichen Sie die Hamburger Innenstadt in ca. 20 Minuten, ebenso schnell und bequem per S-Bahn ab der Station Nettelnburg. Auch die Autobahnen A24 und A1 sind in kurzer Zeit erreichbar. Eine zuverlässige Busverbindung nach Bergedorf mit dem dortigen Einkaufszentrum CCB rundet die hervorragende Anbindung ab.
Fazit: Boberg vereint das Beste aus zwei Welten - urbane Lebensqualität und naturnahes Wohnen. Wer hier lebt, muss auf nichts verzichten.
Weitere Informationen
Sonstiges
Die Courtage in Höhe von 3,00 % inkl. der gesetzl. gültigen MwSt. ist vom Käufer an die Sparda Immobilien GmbH zu zahlen.
Weitere attraktive Angebote finden Sie auch auf www.spardaimmobilien.de
Stichworte
Carport vorhanden, Stellplatz vorhanden, Anzahl der Schlafzimmer: 5, Anzahl der Badezimmer: 2, Anzahl Terrassen: 1, 3 Etagen